Рівненська обл., Рівненський р-н, с. Здовбиця, вул. Шосова, 107. Оренда – нежитлові приміщення площею 80,3 м. кв. (В)

1 388.39 грн
17.29 грн / м2
Україна, Рівненська обл., Рівненський р-н, с. Здовбиця, вул. Шосова, 107
Перейти до аукціону на сайті
  • Інформація
  • Опис
  • Документи
Дата оголошення пропозиції:
24 квітня 2023
Площа:
80.30 м2
Тип об’єкта:
Приміщення
Тип аукціону:
Англійський аукціон
Статус аукціону:
Аукціон не відбувся
Тип угоди:
Оренда
Розмір мінімального кроку:
100.00 ₴
Розмір гарантійного внеску:
833.03 ₴
Початок прийому пропозицій:
24.04.2023 14:38:46
Завершення прийому пропозицій:
24.05.2023 20:00:00
Проведення аукціону:
25.05.2023 12:00:00
Лот:
CLE001-UA-20230424-50044
№ лоту (УТК):
UTK260821_04P
Лот виставляється на торги (раз):
10
Стислий опис майна:
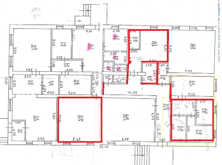
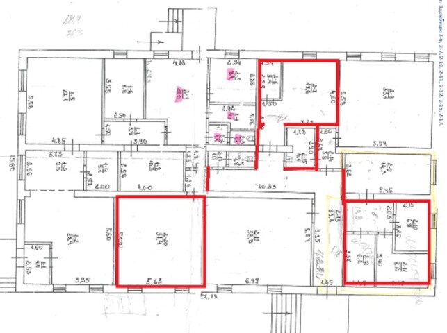
Пропонується до оренди нежитлові приміщення 1го поверху площею 80,3 м. кв. Будівля знаходиться в центральній частині села., досить розвинена інфраструктура. Розглядається можливість облаштування окремого входу. Приміщення потребують реконструкції системи електропостачання. Опалення відсутнє. Характеристики: Кількість поверхів – 1 ; Загальна площа – 246,1 м. кв.; Площа, запропонована до оренди – 80,3 м.кв.; Земельна ділянка - площа 0,1304 га.
Адреса місцезнаходження майна:
Україна, Рівненська обл., Рівненський р-н, с. Здовбиця, вул. Шосова, 107
Схожі пропозиції
15.09.2022
Рівненська обл., м. Рівне. вул. Волинської Дивізії, 1. Оренда – торгово-офісні приміщення на 1-му поверсі площею 98,9 кв.м. (В)
8 610.23 грн
87.06 грн / м2
Приміщення
Рівненська обл., м. Рівне. вул. Волинської Дивізії, 1. Оренда – торгово-офісні приміщення на 1-му поверсі площею 98,9 кв.м. (В)
Україна, Рівненська обл., м. Рівне, вул. Волинської Дивізії, 1
Рівненська обл., м. Рівне вул. Волинської Дивізії, 1. Оренда – торгово-офісні приміщення 1-го поверху площею 98,9 кв.м. (В)
7 274.10 грн
73.55 грн / м2
Приміщення
Рівненська обл., м. Рівне вул. Волинської Дивізії, 1. Оренда – торгово-офісні приміщення 1-го поверху площею 98,9 кв.м. (В)
Україна, Рівненська обл., м. Рівне, вул. Волинської Дивізії, 1
21.06.2024
Рівненська обл., Рівненський р-н, с.Тучин, вул.Поштова, 4. Оренда – виробничі приміщення загальною площею 243,1 кв.м. (В)
3 882.31 грн
15.97 грн / м2
Приміщення
Рівненська обл., Рівненський р-н, с.Тучин, вул.Поштова, 4. Оренда – виробничі приміщення загальною площею 243,1 кв.м. (В)
Україна, Рівненська обл., Рівненський р-н, с.Тучин, вул.Поштова, 4
22.08.2023
Рівненська обл., Рівненський р-н, с. Великі Межирічі, вул. Гагаріна, 12 . Оренда –  приміщення гаражів загальною площею 123 кв.м. (В)
3 542.40 грн
28.80 грн / м2
Приміщення
Рівненська обл., Рівненський р-н, с. Великі Межирічі, вул. Гагаріна, 12 . Оренда – приміщення гаражів загальною площею 123 кв.м. (В)
Україна, Рівненська обл., Рівненський р-н, с. Великі Межирічі, вул. Гагаріна, 12
Переглянуті пропозиції
14.05.2024
Львівська обл., м. Львів, вул. Виговського, 29а. Оренда – приміщення 3-го поверху площею 508,20 кв.м. (В)
45 743.08 грн
90.01 грн / м2
Приміщення
Львівська обл., м. Львів, вул. Виговського, 29а. Оренда – приміщення 3-го поверху площею 508,20 кв.м. (В)
Україна, Львівська обл., м. Львів, вул. Виговського, 29а
01.02.2023
Полтавська обл., Кременчуцький р-н., м. Горішні Плавні, вул. Миру, 18. Оренда – Приміщення 2-го поверху, площею 19,90 кв.м. (В)
398.00 грн
20.00 грн / м2
Приміщення
Полтавська обл., Кременчуцький р-н., м. Горішні Плавні, вул. Миру, 18. Оренда – Приміщення 2-го поверху, площею 19,90 кв.м. (В)
Україна, Полтавська обл., Кременчуцький р-н., м. Горішні Плавні, вул. Миру, 18
м. Рівне вул. Соборна, 56. Оренда – цокольне приміщення площею 124,2 кв.м. (В)
1 269.32 грн
10.22 грн / м2
Приміщення
м. Рівне вул. Соборна, 56. Оренда – цокольне приміщення площею 124,2 кв.м. (В)
Україна, Рівненська обл., м. Рівне, вул. Соборна, 56