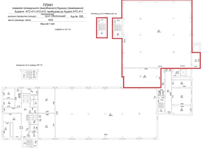
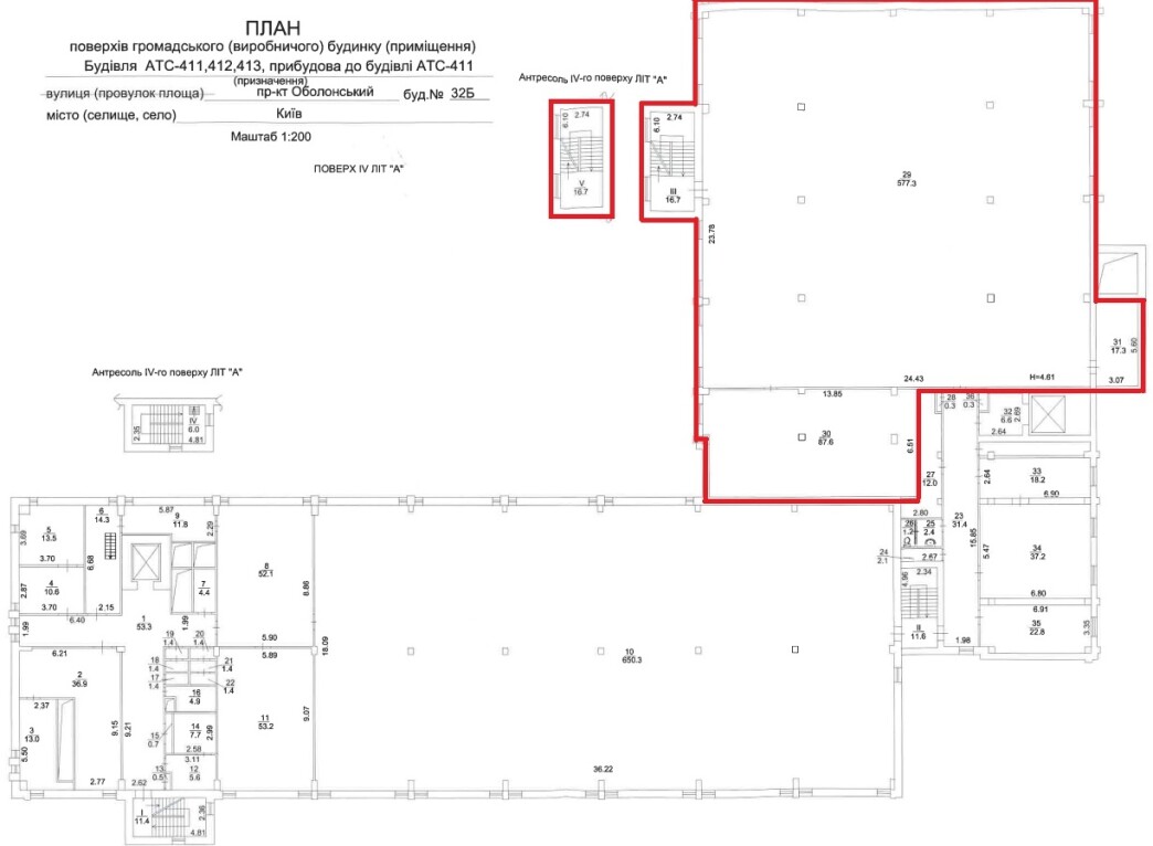
м. Київ, пр-т. Оболонський, 32-Б. Оренда – приміщення 4-го поверху, площею 715,6 м2 (В)

33 060.72 грн
46.20 грн / м2
Україна, м.Київ, м. Київ, пр-т. Оболонський, 32-Б
Перейти до аукціону на сайті
  • Інформація
  • Опис
  • Документи
Дата оголошення пропозиції:
27 квітня 2023
Площа:
715.60 м2
Тип об’єкта:
Приміщення
Тип аукціону:
Англійський аукціон
Статус аукціону:
Аукціон відмінено
Тип угоди:
Оренда
Розмір мінімального кроку:
200.00 ₴
Розмір гарантійного внеску:
19 836.43 ₴
Початок прийому пропозицій:
27.04.2023 08:48:23
Завершення прийому пропозицій:
30.05.2023 20:00:00
Проведення аукціону:
31.05.2023 11:45:00
Лот:
CLE001-UA-20230427-22115
№ лоту (УТК):
UTK150722_02T
Лот виставляється на торги (раз):
9
Стислий опис майна:
Пропонуються до оренди приміщення 4-го поверху, площею 715,6 м2 Будівля знаходиться в Оболонському районі міста Києва, житловий масив Оболонь, розвинена інфраструктура, високі автомобільний та пішохідний потоки, в 5 хв. від ст. м. Героїв Дніпра та Мінська (синя гілка), Торгівельно-розважальні центри. Характеристики: • загальна площа будівлі – 9462,6 м2 • кількість поверхів – 4; • опалення централізоване (міське); • земельна ділянка – 0,6695 га; • водопостачання, каналізація, сан. вузол – присутнє.
Адреса місцезнаходження майна:
Україна, м.Київ, м. Київ, пр-т. Оболонський, 32-Б
Схожі пропозиції
19.03.2025
м. Київ, бульв. Шевченка Тараса, 18, літ.: «Б» (Шевченківський р-н). Оренда – приміщення 2-го поверху, загальною площею - 280,90 м2 (В)
25.01.2024
 ДОВГОСТРОКОВА ОРЕНДА!   м. Київ, бульвар Бучми Амвросія, 5;  Оренда – приміщення 2-го поверху, площею 671,20 м2 (П)
33 700.95 грн
50.21 грн / м2
Приміщення
ДОВГОСТРОКОВА ОРЕНДА! м. Київ, бульвар Бучми Амвросія, 5; Оренда – приміщення 2-го поверху, площею 671,20 м2 (П)
Україна, м.Київ, Київ, вулиця Амвросія Бучми, 5
30.04.2025
 м. Київ, вул. Архітектора Вербицького, 3 (Дарницький р-н). Оренда – Приміщення підвалу, площею 198,70 кв.м. (В)
19 027.51 грн
95.76 грн / м2
Приміщення
м. Київ, вул. Архітектора Вербицького, 3 (Дарницький р-н). Оренда – Приміщення підвалу, площею 198,70 кв.м. (В)
Україна, м.Київ, Київ, 02091, м. Київ, вул. Архітектора Вербицького , 3
08.04.2025
м. Київ, вул. Макіївська, 3, літ. «А» (Оболонський р-н). Оренда – група приміщень у підвалі, площею 135,40 кв.м(В)
18 205.88 грн
134.46 грн / м2
Приміщення
м. Київ, вул. Макіївська, 3, літ. «А» (Оболонський р-н). Оренда – група приміщень у підвалі, площею 135,40 кв.м(В)
Україна, м.Київ, Київ, 04082, м. Київ, вул. Макіївська, 3, літ. «А» (Оболонський р-н)