м. Київ, вул. Архітектора Вербицького, 3 (Дарницький р-н). Оренда – Приміщення підвалу, площею 198,70 кв.м. (В)

19 027.51 грн
95.76 грн / м2
Україна, м.Київ, Київ, 02091, м. Київ, вул. Архітектора Вербицького , 3
Перейти до аукціону на сайті
  • Інформація
  • Опис
  • Документи
Дата оголошення пропозиції:
28 березня 2025
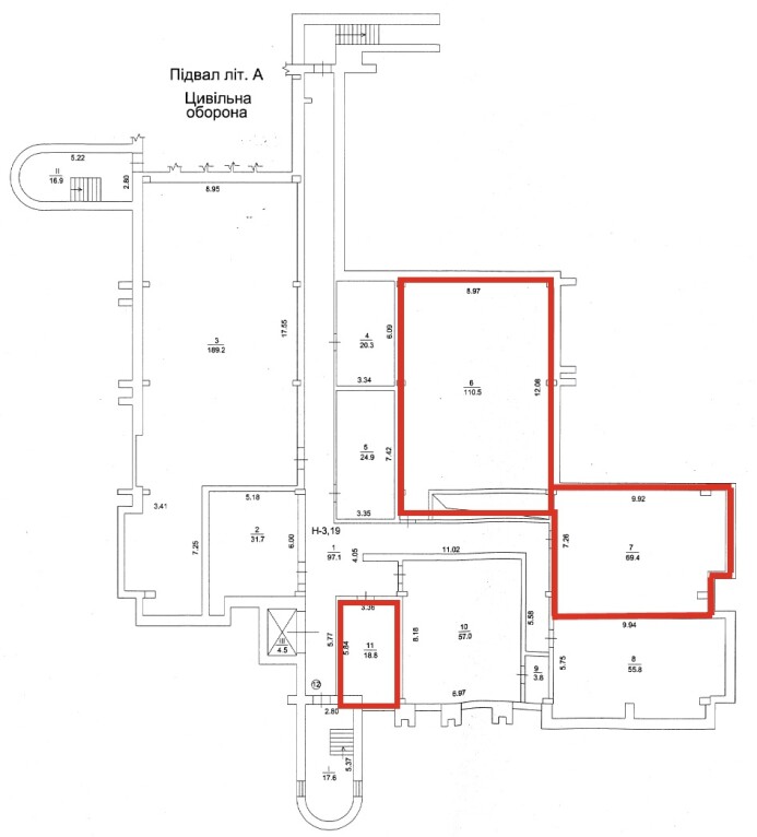
Площа:
198.70 м2
Тип об’єкта:
Приміщення
Тип аукціону:
Англійський аукціон
Статус аукціону:
Аукціон не відбувся
Тип угоди:
Оренда
Розмір мінімального кроку:
300.00 ₴
Розмір гарантійного внеску:
11 416.51 ₴
Початок прийому пропозицій:
28.03.2025 15:39:27
Завершення прийому пропозицій:
29.04.2025 20:00:00
Проведення аукціону:
30.04.2025 12:15:00
Лот:
CLE001-UA-20250328-87436
№ лоту (УТК):
UTK200225_40U
Лот виставляється на торги (раз):
2
Стислий опис майна:
Пропонується до оренди приміщення підвалу, площею 198,70кв.м. Будівля знаходиться в Дарницькому районі міста Києва, житловий масив Харківський. Зупинки маршрутного транспорту, супермаркети, торгово-розважальні центри. Найближчі станції метро «Харківська», «Вирлиця». Вхід з двору. Характеристики: • загальна площа будівлі – 4804,70 кв.м. ; • кількість поверхів – 5; • опалення централізоване (міське); • земельна ділянка – 0,55 га; • каналізація, водозабезпечення, сан. вузол – відсутні;
Адреса місцезнаходження майна:
Україна, м.Київ, Київ, 02091, м. Київ, вул. Архітектора Вербицького , 3
Схожі пропозиції
05.12.2023
м.Київ, вул. Миколи Голего,8;   Оренда–приміщення 3-го поверху площею 79,7кв.м.(В)
11 301.46 грн
141.80 грн / м2
Приміщення
м.Київ, вул. Миколи Голего,8; Оренда–приміщення 3-го поверху площею 79,7кв.м.(В)
Україна, м.Київ, Київ, вулиця Миколи Голего, 8
18.10.2022
м. Київ, вул. Дегтярівська, 28-А. Оренда – приміщення 1-го поверху площею 115,95 кв.м. (В)
12 453.03 грн
107.40 грн / м2
Приміщення
м. Київ, вул. Дегтярівська, 28-А. Оренда – приміщення 1-го поверху площею 115,95 кв.м. (В)
Україна, м.Київ, Київ, вулиця Дегтярівська, 28А
23.02.2023
ДОВГОСТРОКОВА ОРЕНДА! м. Київ, вул. Антоновича, 40, оренда – приміщення 2-го поверху, площею 757,9 кв.м. (В)
161 872.28 грн
213.58 грн / м2
Приміщення
ДОВГОСТРОКОВА ОРЕНДА! м. Київ, вул. Антоновича, 40, оренда – приміщення 2-го поверху, площею 757,9 кв.м. (В)
Україна, м.Київ, Київ, вул. Антоновича, 40
21.10.2022
м. Київ, вул. Н. Ужвій, 1. Оренда – приміщення 3-го поверху, площею 21,90 кв.м. (В)
1 432.26 грн
65.40 грн / м2
Приміщення
м. Київ, вул. Н. Ужвій, 1. Оренда – приміщення 3-го поверху, площею 21,90 кв.м. (В)
Україна, м.Київ, Київ, вулиця Наталії Ужвій, 1