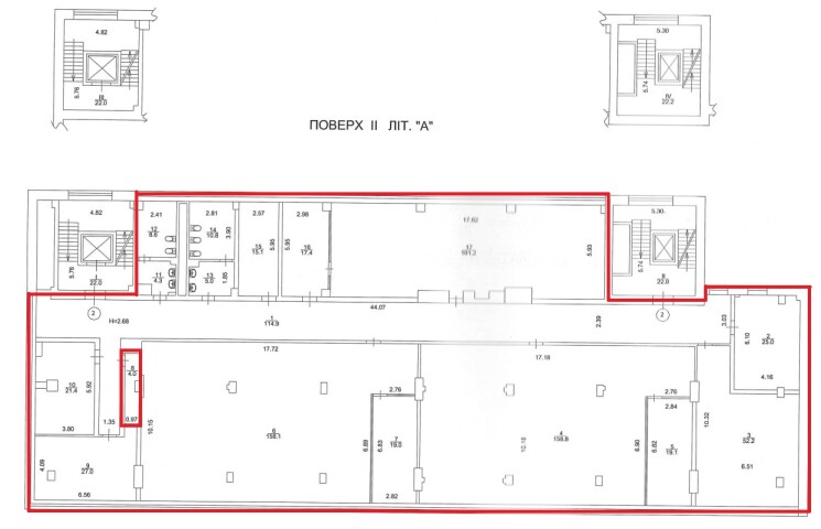
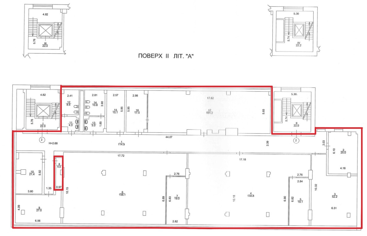
ДОВГОСТРОКОВА ОРЕНДА! м. Київ, вул. Антоновича, 40, оренда – приміщення 2-го поверху, площею 757,9 кв.м. (В)

161 872.28 грн
213.58 грн / м2
Україна, м.Київ, Київ, вул. Антоновича, 40
Перейти до аукціону на сайті
  • Інформація
  • Опис
  • Документи
Дата оголошення пропозиції:
23 січня 2023
Площа:
757.90 м2
Тип об’єкта:
Приміщення
Тип аукціону:
Англійський аукціон
Статус аукціону:
Аукціон не відбувся
Тип угоди:
Оренда
Розмір мінімального кроку:
2 000.00 ₴
Розмір гарантійного внеску:
97 123.37 ₴
Початок прийому пропозицій:
23.01.2023 13:33:20
Завершення прийому пропозицій:
22.02.2023 20:00:00
Проведення аукціону:
23.02.2023 12:15:00
Лот:
CLE001-UA-20230123-94496
№ лоту (УТК):
UTK120721_01T
Лот виставляється на торги (раз):
10
Стислий опис майна:
Пропонуються до оренди приміщення 2-го, площею 757,9 кв.м. Стан приміщень задовільний. Кондиціонування присутнє в приміщенні. Будівля знаходиться у центрі міста на перехресті вулиць Жилянська та Антоновича. Поруч з БЦ розташована зупинка міського автотранспорту, в 5-ти хвилинах ходьби знаходиться станція метро «Олімпійська», парк Тараса Шевченка. Зарядна станція Utrecharge. Вхід з вул. Антоновича. Характеристики: • кількість поверхів – 9; • загальна площа будівлі – 7649,3 м2; • опалення централізоване (міське); • земельна ділянка – 0,2099 га; • сан. вузол, водопостачання, каналізація - присутні;
Адреса місцезнаходження майна:
Україна, м.Київ, Київ, вул. Антоновича, 40
Схожі пропозиції
28.10.2025
 м. Київ, вулиця Академіка Шалімова, 39/8. Оренда – приміщення 1-го поверху, площею 54,30 м. кв.(В)
7 012.85 грн
129.15 грн / м2
Приміщення
м. Київ, вулиця Академіка Шалімова, 39/8. Оренда – приміщення 1-го поверху, площею 54,30 м. кв.(В)
Україна, м.Київ, Київ, вулиця Академіка Шалімова, 39/8
09.07.2025
м. Київ, вул. Наталії Ужвій 1 (Подільський р-н). Оренда – приміщення 1-го поверху, загальною площею – 41,00 м. кв.(В)
3 753.96 грн
91.56 грн / м2
Приміщення
м. Київ, вул. Наталії Ужвій 1 (Подільський р-н). Оренда – приміщення 1-го поверху, загальною площею – 41,00 м. кв.(В)
Україна, м.Київ, Київ, 04108, м. Київ, вул. Наталії Ужвій 1
17.06.2025
м. Київ, вул. Курінного Петра, 2Б, літ. «А» (Святошинський р-н). Оренда – приміщення на 1-му поверсі, площею – 160,70 кв.м (В)
16 958.99 грн
105.53 грн / м2
Приміщення
м. Київ, вул. Курінного Петра, 2Б, літ. «А» (Святошинський р-н). Оренда – приміщення на 1-му поверсі, площею – 160,70 кв.м (В)
Україна, м.Київ, Київ, 03148, м. Київ, вул. Курінного Петра, 2Б (Святошинський р-н)
м. Київ, вул. Будівельників, 8-Б, оренда – приміщення підвалу, площею 452,60 кв.м. (В)
20 910.12 грн
46.20 грн / м2
Приміщення
м. Київ, вул. Будівельників, 8-Б, оренда – приміщення підвалу, площею 452,60 кв.м. (В)
Україна, м.Київ, Київ, вул. Будівельників, 8-Б
Переглянуті пропозиції
Полтавська обл., Полтавський р-н., м. Решетилівка, вул. Полтавська, 50. Оренда – підсобне приміщення та гараж площею 50,30 кв.м. (В)
503.00 грн
10.00 грн / м2
Приміщення
Полтавська обл., Полтавський р-н., м. Решетилівка, вул. Полтавська, 50. Оренда – підсобне приміщення та гараж площею 50,30 кв.м. (В)
Україна, Полтавська обл., Полтавський р-н., м. Решетилівка, вул. Полтавська, 50
Львівська обл., м. Новояворівськ, вул. Шевченка,7. Оренда – приміщення 3-го поверху площею 314 кв.м. (В)
7 912.80 грн
25.20 грн / м2
Приміщення
Львівська обл., м. Новояворівськ, вул. Шевченка,7. Оренда – приміщення 3-го поверху площею 314 кв.м. (В)
Україна, Львівська обл., Новояворівськ, вул. Шевченка,7
24.01.2025
ДОВГОСТРОКОВА ОРЕНДА!  м. Київ, пр-т Оболонський, 32-Б ;  Оренда – приміщення 4-го поверху, площею 772,40 м2 (В)
149 179.01 грн
193.14 грн / м2
Приміщення
ДОВГОСТРОКОВА ОРЕНДА! м. Київ, пр-т Оболонський, 32-Б ; Оренда – приміщення 4-го поверху, площею 772,40 м2 (В)
Україна, м.Київ, Київ, Оболонський проспект, 32-Б
10.10.2023
Сумська обл., м. Суми, вул. Івана Сірка, буд. 9. Оренда – частина нежитлової будівлі 2-го поверху площею 566,00 кв.м. (В)
26 828.40 грн
47.40 грн / м2
Будівля
Сумська обл., м. Суми, вул. Івана Сірка, буд. 9. Оренда – частина нежитлової будівлі 2-го поверху площею 566,00 кв.м. (В)
Україна, Сумська обл., м. Суми, вул. Івана Сірка, буд. 9