Полтавська обл., Полтавський р-н., м. Решетилівка, вул. Полтавська, 50. Оренда – підсобне приміщення та гараж площею 50,30 кв.м. (В)

503.00 грн
10.00 грн / м2
Україна, Полтавська обл., Полтавський р-н., м. Решетилівка, вул. Полтавська, 50
Перейти до аукціону на сайті
  • Інформація
  • Опис
  • Документи
Дата оголошення пропозиції:
24 листопада 2021
Площа:
50.30 м2
Тип об’єкта:
Приміщення
Тип аукціону:
Англійський аукціон
Статус аукціону:
Аукціон не відбувся
Тип угоди:
Оренда
Розмір мінімального кроку:
30.00 ₴
Розмір гарантійного внеску:
301.80 ₴
Початок прийому пропозицій:
24.11.2021 14:12:47
Завершення прийому пропозицій:
23.12.2021 20:00:00
Лот:
UA-PS-2021-11-24-000023-3
№ лоту (УТК):
UTK130721_03P
Лот виставляється на торги (раз):
5
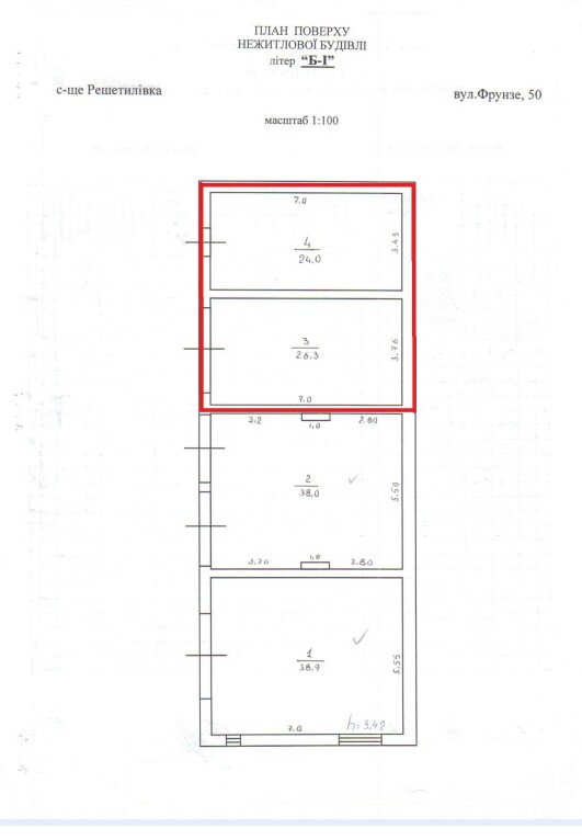
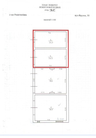
Стислий опис майна:
Пропонується до оренди підсобне приміщення та гараж площею 50,30 кв.м. Приміщення знаходиться в центрі м. Решетилівка. Характеристики: Кількість поверхів – 1; Загальна площа – 127,20 кв.м.; Площа запропонована до оренди 50,30 кв.м.; Опалення – відсутнє; Дозволена потужність – відсутня; Земельна ділянка – 0,2039 га (договір оренди)
Адреса місцезнаходження майна:
Україна, Полтавська обл., Полтавський р-н., м. Решетилівка, вул. Полтавська, 50
Схожі пропозиції
12.11.2020
ГОЛЛАНДСЬКИЙ АУКЦІОН. Полтавська обл., м. Решетилівка, вул. Старокиївська, 2. Оренда - приміщення 2-го поверху площею 14,5 кв.м. (В)
332.63 грн
22.94 грн / м2
Приміщення
ГОЛЛАНДСЬКИЙ АУКЦІОН. Полтавська обл., м. Решетилівка, вул. Старокиївська, 2. Оренда - приміщення 2-го поверху площею 14,5 кв.м. (В)
Україна, Полтавська обл., м. Решетилівка, вул. Старокиївська, буд. 2
19.05.2023
Полтавська обл., м. Решетилівка, вул. Старокиївська, 2. Оренда – приміщення 1-го поверху площею 30,70 кв.м. (В)
686.45 грн
8.00 грн / м2
Приміщення
Полтавська обл., м. Решетилівка, вул. Старокиївська, 2. Оренда – приміщення 1-го поверху площею 30,70 кв.м. (В)
Україна, Полтавська обл., м. Решетилівка, вул. Старокиївська, 2
21.03.2025
Полтавська обл., Миргородський р-н, м. Заводське, вулиця Європейська, 18. Оренда –приміщення 2-го поверху загальною площею 105,00 кв.м. (В)
2 247.00 грн
21.40 грн / м2
Приміщення
Полтавська обл., Миргородський р-н, м. Заводське, вулиця Європейська, 18. Оренда –приміщення 2-го поверху загальною площею 105,00 кв.м. (В)
Україна, Полтавська обл., Заводське, 37240, Полтавська обл., Миргородський р-н, м. Заводське вул. Європейська, 18
15.10.2025
Полтавська обл., Полтавський р-н, смт. Диканька, вулиця Незалежності, 93. Оренда – приміщення 1-го поверху загальною площею 164,35 кв.м. (В)
3 418.48 грн
20.80 грн / м2
Приміщення
Полтавська обл., Полтавський р-н, смт. Диканька, вулиця Незалежності, 93. Оренда – приміщення 1-го поверху загальною площею 164,35 кв.м. (В)
Україна, Полтавська обл., Полтавський р-н, смт. Диканька, вулиця Незалежності, 93
Переглянуті пропозиції
Львівська обл., м. Новояворівськ, вул. Шевченка,7. Оренда – приміщення 3-го поверху площею 314 кв.м. (В)
7 912.80 грн
25.20 грн / м2
Приміщення
Львівська обл., м. Новояворівськ, вул. Шевченка,7. Оренда – приміщення 3-го поверху площею 314 кв.м. (В)
Україна, Львівська обл., Новояворівськ, вул. Шевченка,7
24.01.2025
ДОВГОСТРОКОВА ОРЕНДА!  м. Київ, пр-т Оболонський, 32-Б ;  Оренда – приміщення 4-го поверху, площею 772,40 м2 (В)
149 179.01 грн
193.14 грн / м2
Приміщення
ДОВГОСТРОКОВА ОРЕНДА! м. Київ, пр-т Оболонський, 32-Б ; Оренда – приміщення 4-го поверху, площею 772,40 м2 (В)
Україна, м.Київ, Київ, Оболонський проспект, 32-Б
10.10.2023
Сумська обл., м. Суми, вул. Івана Сірка, буд. 9. Оренда – частина нежитлової будівлі 2-го поверху площею 566,00 кв.м. (В)
26 828.40 грн
47.40 грн / м2
Будівля
Сумська обл., м. Суми, вул. Івана Сірка, буд. 9. Оренда – частина нежитлової будівлі 2-го поверху площею 566,00 кв.м. (В)
Україна, Сумська обл., м. Суми, вул. Івана Сірка, буд. 9
20.12.2024
Полтавська обл., Миргородський р-н, с. Великі Сорочинці, вулиця Краснопільська, 8. Оренда – приміщення будівлі, загальною площею 36,60 кв.м. (В)
1 238.18 грн
33.83 грн / м2
Приміщення
Полтавська обл., Миргородський р-н, с. Великі Сорочинці, вулиця Краснопільська, 8. Оренда – приміщення будівлі, загальною площею 36,60 кв.м. (В)
Україна, Полтавська обл., Миргородський р-н, с. Великі Сорочинці, вулиця Краснопільська, 8