Полтавська обл., Кременчуцький р-н, с. Іванове Селище, вул. Новоукраїнська, буд.7. Оренда – Гараж площею 24,20 кв.м. (В)

508.20 грн
21.00 грн / м2
Україна, Полтавська обл., Кременчуцький р-н, с. Іванове Селище, вул. Новоукраїнська, буд.7
Перейти до аукціону на сайті
  • Інформація
  • Опис
  • Документи
Дата оголошення пропозиції:
04 травня 2023
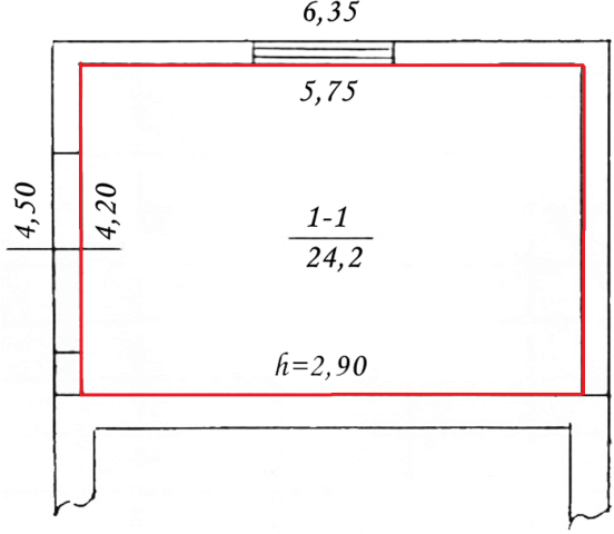
Площа:
24.20 м2
Тип об’єкта:
Гараж
Тип аукціону:
Англійський аукціон
Статус аукціону:
Аукціон не відбувся
Тип угоди:
Оренда
Розмір мінімального кроку:
20.00 ₴
Розмір гарантійного внеску:
304.92 ₴
Початок прийому пропозицій:
04.05.2023 12:59:34
Завершення прийому пропозицій:
06.06.2023 20:00:00
Проведення аукціону:
07.06.2023 12:20:00
Лот:
CLE001-UA-20230504-25523
№ лоту (УТК):
UTK140721_12P
Лот виставляється на торги (раз):
10
Стислий опис майна:
Пропонується до оренди гараж площею 24,20 кв.м, який розташовано по вул. Новоукраїнській с. Іванове Селище. Характеристики: кількість поверхів – 1; загальна площа – 24,20 кв.м.; площа запропонована до оренди 24,20 кв.м.; опалення – відсутнє; електропостачання - відсутнє; земельна ділянка – 0, 0040 га (договір оренди ЗД)
Адреса місцезнаходження майна:
Україна, Полтавська обл., Кременчуцький р-н, с. Іванове Селище, вул. Новоукраїнська, буд.7
Схожі пропозиції
01.11.2022
Полтавська обл., Кременчуцький р-н, с. Іванове Селище, вул. Новоукраїнська, буд.7. Оренда – Гараж площею 24,20 кв.м. (В)
470.45 грн
19.44 грн / м2
Гараж
Полтавська обл., Кременчуцький р-н, с. Іванове Селище, вул. Новоукраїнська, буд.7. Оренда – Гараж площею 24,20 кв.м. (В)
Україна, Полтавська обл., Кременчуцький р-н, с. Іванове Селище, вул. Новоукраїнська, буд.7
21.01.2025
Полтавська обл., Кременчуцький р-н, с. Іванове Селище, вул. Новоукраїнська, буд.7. Оренда – Гараж площею 24,20 кв.м. (В)
508.20 грн
21.00 грн / м2
Гараж
Полтавська обл., Кременчуцький р-н, с. Іванове Селище, вул. Новоукраїнська, буд.7. Оренда – Гараж площею 24,20 кв.м. (В)
Україна, Полтавська обл., Кременчуцький р-н, с. Іванове Селище, вул. Новоукраїнська, буд.7
16.09.2025
Полтавська обл., м. Решетилівка, вулиця Старокиївська, 2. Оренда –приміщення гаража загальною площею 77,60 кв.м. (В)
1 880.25 грн
24.23 грн / м2
Гараж
Полтавська обл., м. Решетилівка, вулиця Старокиївська, 2. Оренда –приміщення гаража загальною площею 77,60 кв.м. (В)
Україна, Полтавська обл., Решетилівка, Решетилівка, вулиця Старокиївська 2
10.10.2023
Полтавська обл., Кременчуцький р-н, с. Іванове Селище, вул. Новоукраїнська, буд.7. Оренда – Гараж площею 24,20 кв.м. (В)
508.20 грн
21.00 грн / м2
Гараж
Полтавська обл., Кременчуцький р-н, с. Іванове Селище, вул. Новоукраїнська, буд.7. Оренда – Гараж площею 24,20 кв.м. (В)
Україна, Полтавська обл., Кременчуцький р-н, с. Іванове Селище, вул. Новоукраїнська, буд.7
Переглянуті пропозиції
Івано-Франківська обл., смт. Верховина, вул. Франка, 6. Оренда – Приміщення 2-го поверху 10,9 кв.м.
202.74 грн
18.60 грн / м2
Приміщення
Івано-Франківська обл., смт. Верховина, вул. Франка, 6. Оренда – Приміщення 2-го поверху 10,9 кв.м.
Україна, Івано-Франківська обл., смт. Верховина, вул. Франка, 6
Сумська обл., м. Конотоп, пл. Миру, буд. 4. Оренда – приміщення 2-го поверху площею 17,40 кв.м. (В)
736.02 грн
42.30 грн / м2
Приміщення
Сумська обл., м. Конотоп, пл. Миру, буд. 4. Оренда – приміщення 2-го поверху площею 17,40 кв.м. (В)
Україна, Сумська обл., Конотоп, пл. Миру, буд. 4