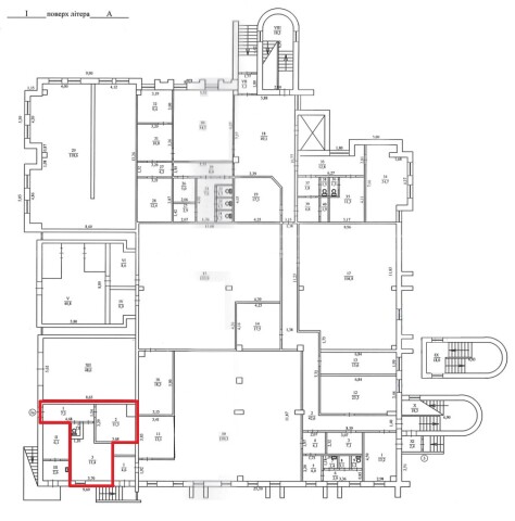
м. Київ, вул. Миколи Голего, 8. Оренда – приміщення 1-го поверху площею 30,9 м2 (В)

3 129.86 грн
101.29 грн / м2
Україна, м.Київ, Київ, вулиця Миколи Голего, 8
Перейти до аукціону на сайті
  • Інформація
  • Опис
  • Документи
Дата оголошення пропозиції:
11 травня 2023
Площа:
30.90 м2
Тип об’єкта:
Приміщення
Тип аукціону:
Англійський аукціон
Статус аукціону:
Аукціон не відбувся
Тип угоди:
Оренда
Розмір мінімального кроку:
35.00 ₴
Розмір гарантійного внеску:
1 877.92 ₴
Початок прийому пропозицій:
11.05.2023 12:04:29
Завершення прийому пропозицій:
14.06.2023 20:00:00
Проведення аукціону:
15.06.2023 11:30:00
Лот:
CLE001-UA-20230511-76244
№ лоту (УТК):
UTK050822_6T
Лот виставляється на торги (раз):
9
Стислий опис майна:
Пропонуються до оренди приміщення 1-го поверху площею 30,9 м2 . Розташування будівлі: у Солом'янському районі міста Києва, місцевість Караваєві дачі. Поруч розвинена інфраструктура, зупинки маршрутного транспорту, магазини, кафе, аптеки, середній автомобільний і пішохідний потоки. Характеристики • загальна площа будівлі – 5639,8 м2 ; • сан. вузол, каналізація, водопостачання – присутне; • кількість поверхів – 4; • енергетична потужність – 3 кВт; • опалення централізоване (міське); • площа земельної ділянки – 0,3625 га*; *земельна ділянка не є предметом оренди;
Адреса місцезнаходження майна:
Україна, м.Київ, Київ, вулиця Миколи Голего, 8
Схожі пропозиції
26.10.2023
м. Київ, бульвар Бучми Амвросія, 5. Оренда – приміщення 3-го та 4-го поверхів технічної будівлі АТС-550 (літ. «Б»), площею 1006,83 кв.м. (В)
10.06.2025
м. Київ, бульвар Академіка Вернадського, 79-А (В). Оренда – приміщення 2-го поверху, загальною площею – 37,70 кв.м.
4 496.86 грн
119.28 грн / м2
Приміщення
м. Київ, бульвар Академіка Вернадського, 79-А (В). Оренда – приміщення 2-го поверху, загальною площею – 37,70 кв.м.
Україна, м.Київ, Київ, бульвар Академіка Вернадського, 79А
19.09.2023
ДОВГОСТРОКОВА ОРЕНДА! м. Київ, вул. Антоновича, 40, оренда – приміщення 2-го поверху, площею 757,9 кв.м. (В)
233 478.67 грн
308.06 грн / м2
Приміщення
ДОВГОСТРОКОВА ОРЕНДА! м. Київ, вул. Антоновича, 40, оренда – приміщення 2-го поверху, площею 757,9 кв.м. (В)
Україна, м.Київ, Київ, вул. Антоновича, 40
06.05.2021
м. Київ, вул. Героїв Севастополя, №39/8, Оренда – приміщення гаражу, будівлі літ. «Б» площею 16,70 м2, (П)
396.79 грн
23.76 грн / м2
Приміщення
м. Київ, вул. Героїв Севастополя, №39/8, Оренда – приміщення гаражу, будівлі літ. «Б» площею 16,70 м2, (П)
Україна, м.Київ, Київ, вул. Героїв Севастополя, 39/8
Переглянуті пропозиції
27.11.2025
Рівненська обл., смт. Володимирець, вул. Поштова, 23В. Оренда – приміщення гаража площею 16,90 кв.м (В)
385.32 грн
22.80 грн / м2
Приміщення
Рівненська обл., смт. Володимирець, вул. Поштова, 23В. Оренда – приміщення гаража площею 16,90 кв.м (В)
Україна, Рівненська обл., Володимирець, вулиця Поштова, 23В