Полтавська обл., Миргородський р-н., смт. Велика Багачка, вул. Чекалових, 17. Оренда – Приміщення 1-го поверху, загальною площею 113,90 кв.м. (В)

3 510.40 грн
30.82 грн / м2
Україна, Полтавська обл., Миргородський р-н., смт. Велика Багачка, вул. Чекалових, 17
Перейти до аукціону на сайті
  • Інформація
  • Опис
  • Документи
Дата оголошення пропозиції:
23 травня 2023
Площа:
113.90 м2
Тип об’єкта:
Приміщення
Тип аукціону:
Англійський аукціон
Статус аукціону:
Аукціон не відбувся
Тип угоди:
Оренда
Розмір мінімального кроку:
50.00 ₴
Розмір гарантійного внеску:
2 106.24 ₴
Початок прийому пропозицій:
23.05.2023 14:14:28
Завершення прийому пропозицій:
22.06.2023 20:00:00
Проведення аукціону:
23.06.2023 11:15:00
Лот:
CLE001-UA-20230523-93257
№ лоту (УТК):
UTK080722_06P
Лот виставляється на торги (раз):
9
Стислий опис майна:
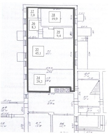
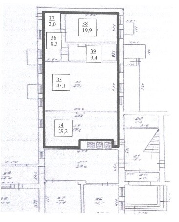
Пропонується до оренди приміщення 1-го поверху, загальною площею 113,90 кв.м., будівля знаходиться в центральній частині смт.Велика Багачка. Характеристики кількість поверхів – 2 загальна площа – 856,40 кв.м.; площа запропонована до оренди 113,90 кв.м.; опалення – наявне; електропостачання – дозволена потужність до 3 кВт; земельна ділянка – 0, 2926 га
Адреса місцезнаходження майна:
Україна, Полтавська обл., Миргородський р-н., смт. Велика Багачка, вул. Чекалових, 17
Схожі пропозиції
22.04.2025
Полтавська обл., Миргородський район, смт. Комишня, вул. Миру, 101. Оренда – приміщення загальною площею 552,90 кв.м. (В)
10 018.55 грн
18.12 грн / м2
Приміщення
Полтавська обл., Миргородський район, смт. Комишня, вул. Миру, 101. Оренда – приміщення загальною площею 552,90 кв.м. (В)
Україна, Полтавська обл., Миргородський район, смт. Комишня, вул. Миру, 101
12.07.2024
Полтавська обл., м. Полтава, вулиця Головка, 3.Оренда – група приміщень першого поверху загальною площею 93,00 кв.м. (В)
4 408.20 грн
47.40 грн / м2
Приміщення
Полтавська обл., м. Полтава, вулиця Головка, 3.Оренда – група приміщень першого поверху загальною площею 93,00 кв.м. (В)
Україна, Полтавська обл., м. Полтава, вул. Головка, 3
10.10.2023
Полтавська обл., Миргородський р-н., смт. Шишаки, вул. Корніліча, буд.10. Оренда – приміщення 2-го поверху площею 187,70 кв.м. (В)
1 535.39 грн
8.18 грн / м2
Приміщення
Полтавська обл., Миргородський р-н., смт. Шишаки, вул. Корніліча, буд.10. Оренда – приміщення 2-го поверху площею 187,70 кв.м. (В)
Україна, Полтавська обл., Миргородський р-н., смт. Шишаки, вул. Корніліча, буд.10
10.12.2024
Полтавська обл., Кременчуцький р-н, м. Горішні Плавні, вулиця Миру, 18. Оренда – приміщення 1-го поверху, площею 247,60 кв.м. (П)
23 034.23 грн
93.03 грн / м2
Приміщення
Полтавська обл., Кременчуцький р-н, м. Горішні Плавні, вулиця Миру, 18. Оренда – приміщення 1-го поверху, площею 247,60 кв.м. (П)
Україна, Полтавська обл., Кременчуцький р-н, м. Горішні Плавні, вул. Миру, 18
Переглянуті пропозиції
31.08.2023
Івано-Франківська обл., м. Івано-Франківськ, вул. Ребета, 2                 Оренда – приміщення складу площею 70,2 кв.м. (В)
5 986.66 грн
85.28 грн / м2
Приміщення
Івано-Франківська обл., м. Івано-Франківськ, вул. Ребета, 2 Оренда – приміщення складу площею 70,2 кв.м. (В)
Україна, Івано-Франківська обл., Івано-Франківськ, вулиця Ребета, 2
Львівська обл., м. Радехів, вул. Львівська, 24. Оренда - приміщення 2 поверху
1 163.51 грн
11.06 грн / м2
Приміщення
Львівська обл., м. Радехів, вул. Львівська, 24. Оренда - приміщення 2 поверху
Україна, Львівська обл., м. Радехів, вул. Львівська, 24
26.11.2025
м. Харків, пр-т Ювілейний, 66. Оренда – приміщення 2-го поверху площею 35,3 кв.м. (В)
1 059.00 грн
30.00 грн / м2
Приміщення
м. Харків, пр-т Ювілейний, 66. Оренда – приміщення 2-го поверху площею 35,3 кв.м. (В)
Україна, Харківська обл., Харків, Ювілейний проспект, 66