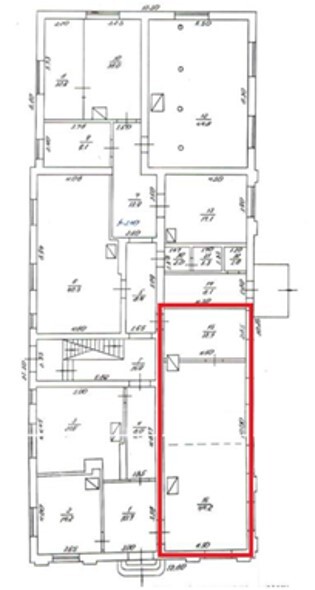
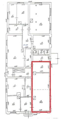
Львівська обл., м. Кам’янка Бузька, вул. Грушевського, 15. Оренда – приміщення 1-го поверху площею 56,90 кв.м. (В)

1 481.68 грн
26.04 грн / м2
Україна, Львівська обл., м. Кам’янка Бузька, вул. Грушевського, 15
Перейти до аукціону на сайті
  • Інформація
  • Опис
  • Документи
Дата оголошення пропозиції:
12 червня 2023
Площа:
56.90 м2
Тип об’єкта:
Приміщення
Тип аукціону:
Англійський аукціон
Статус аукціону:
Аукціон не відбувся
Тип угоди:
Оренда
Розмір мінімального кроку:
100.00 ₴
Розмір гарантійного внеску:
889.01 ₴
Початок прийому пропозицій:
12.06.2023 11:35:24
Завершення прийому пропозицій:
12.07.2023 20:00:00
Проведення аукціону:
13.07.2023 12:40:00
Лот:
CLE001-UA-20230612-28752
№ лоту (УТК):
UTK040423_07P
Лот виставляється на торги (раз):
3
Стислий опис майна:
Пропонуються до оренди приміщення 1-го поверху площею 56,90 кв. м. нежитлової будівлі. Будівля знаходиться в центрі міста, розвинута інфраструктура. Характеристики: Кількість поверхів – 2 Стан будівлі - задовільний Електропостачання
Адреса місцезнаходження майна:
Україна, Львівська обл., м. Кам’янка Бузька, вул. Грушевського, 15
Схожі пропозиції
14.05.2024
Львівська обл., м. Белз, вул. Домініканська (Савенка), 8.Оренда – приміщення 1-го поверху площею 14,50 кв.м. (В)
1 044.58 грн
72.04 грн / м2
Приміщення
Львівська обл., м. Белз, вул. Домініканська (Савенка), 8.Оренда – приміщення 1-го поверху площею 14,50 кв.м. (В)
Україна, Львівська обл., м. Белз, вул. Домініканська, 8
03.04.2024
Львівська обл., м. Стрий, вул. Бачинської, 4Б. Оренда – приміщення площею 80,70 кв.м. (В)
3 190.88 грн
39.54 грн / м2
Приміщення
Львівська обл., м. Стрий, вул. Бачинської, 4Б. Оренда – приміщення площею 80,70 кв.м. (В)
Україна, Львівська обл., м. Стрий, вул. Бачинської, 4Б
11.10.2022
Львівська обл. м. Радехів, вул. Львівська, 24. Оренда – приміщення 3-го поверху площею 167,90 кв.м. (В)
2 518.50 грн
15.04 грн / м2
Приміщення
Львівська обл. м. Радехів, вул. Львівська, 24. Оренда – приміщення 3-го поверху площею 167,90 кв.м. (В)
Україна, Львівська обл., м. Радехів, вул. Львівська, 24
Львівська обл., Яворівський р-н, смт. Івано-Франкове, вул. Львівська, 32. Оренда – приміщення 1-го поверху
540.29 грн
11.52 грн / м2
Приміщення
Львівська обл., Яворівський р-н, смт. Івано-Франкове, вул. Львівська, 32. Оренда – приміщення 1-го поверху
Україна, Львівська обл., Яворівський р-н, смт. Івано-Франкове, вул. Львівська, 32
Переглянуті пропозиції
26.08.2025
Полтавська обл., м. Зіньків, вулиця Воздвиженська, 36. Оренда – приміщення 2-го поверху площею 22,00 кв.м. (В)
607.20 грн
27.60 грн / м2
Приміщення
Полтавська обл., м. Зіньків, вулиця Воздвиженська, 36. Оренда – приміщення 2-го поверху площею 22,00 кв.м. (В)
Україна, Полтавська обл., Зіньків, вулиця Воздвиженська, 36
21.08.2024
м. Харків, вул. Конторська,14.Оренда – приміщення 2-го поверху площею 20,5 кв.м (В)
1 420.65 грн
69.30 грн / м2
Приміщення
м. Харків, вул. Конторська,14.Оренда – приміщення 2-го поверху площею 20,5 кв.м (В)
Україна, Харківська обл., м. Харків, вул. Конторська,14