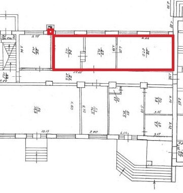
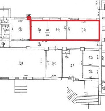
Рівненська обл., Вараський р-н. смт. Володимирець вул. Поштова, 23. Оренда – приміщення 1-го поверху площею 52,8 кв.м. (В)

1 172.16 грн
22.20 грн / м2
Україна, Рівненська обл., Вараський р-н. смт. Володимирець, смт. Володимирець вул. Поштова, 23
Перейти до аукціону на сайті
  • Інформація
  • Опис
  • Документи
Дата оголошення пропозиції:
21 червня 2023
Площа:
52.80 м2
Тип об’єкта:
Приміщення
Тип аукціону:
Англійський аукціон
Статус аукціону:
Аукціон не відбувся
Тип угоди:
Оренда
Розмір мінімального кроку:
50.00 ₴
Розмір гарантійного внеску:
703.30 ₴
Початок прийому пропозицій:
21.06.2023 12:34:22
Завершення прийому пропозицій:
24.07.2023 20:00:00
Проведення аукціону:
25.07.2023 12:50:00
Лот:
CLE001-UA-20230621-54577
№ лоту (УТК):
UTK020721_11P
Лот виставляється на торги (раз):
10
Стислий опис майна:
Пропонується до оренди приміщення 1-го поверху, площею 52,8 м.кв. Будівля знаходиться в центральній частині смт. , розвинена інфраструктура, поряд відділення Укрпошти, магазини та адміністративні приміщення. Територія огороджена та частково впорядкована. Характеристики: Кількість поверхів – 2; Загальна площа – 1183,4 м.кв.; Площа, запропонована до оренди – 52,8 м.кв.; Земельна ділянка - площа 0,2703 га.
Адреса місцезнаходження майна:
Україна, Рівненська обл., Вараський р-н. смт. Володимирець, смт. Володимирець вул. Поштова, 23
Схожі пропозиції
03.04.2024
Рівненська обл., м. Дубровиця, вул. Шевченка, 53. Оренда – приміщення 2-го та 3-го поверху площею 163,7 кв.м. (В)
649.89 грн
3.97 грн / м2
Приміщення
Рівненська обл., м. Дубровиця, вул. Шевченка, 53. Оренда – приміщення 2-го та 3-го поверху площею 163,7 кв.м. (В)
Україна, Рівненська обл., м. Дубровиця, вул. Шевченка, 53
20.10.2022
Рівненська обл., м. Рівне. вул. Волинської Дивізії, 1. Оренда – торгово-офісні приміщення на 1-му поверсі площею 98,9 кв.м. (В)
8 610.23 грн
87.06 грн / м2
Приміщення
Рівненська обл., м. Рівне. вул. Волинської Дивізії, 1. Оренда – торгово-офісні приміщення на 1-му поверсі площею 98,9 кв.м. (В)
Україна, Рівненська обл., м. Рівне, вул. Волинської Дивізії, 1
Рівненська обл., смт. Демидівка, вул. Миру, 28.Оренда – складські приміщення площею 128,0 кв.м.
1 795.84 грн
14.03 грн / м2
Приміщення
Рівненська обл., смт. Демидівка, вул. Миру, 28.Оренда – складські приміщення площею 128,0 кв.м.
Україна, Рівненська обл., смт. Демидівка, вул. Миру, 28
Рівненська обл., м. Острог, просп. Незалежності, 7. Оренда – приміщення 2-го поверху
178.18 грн
15.36 грн / м2
Приміщення
Рівненська обл., м. Острог, просп. Незалежності, 7. Оренда – приміщення 2-го поверху
Україна, Рівненська обл., м. Острог, просп. Незалежності, буд. 7
Переглянуті пропозиції
03.06.2025
м.Харків, вул. Конторська,14. Оренда – приміщення 2-го поверху площею 14,8 кв.м (В)
518.00 грн
35.00 грн / м2
Приміщення
м.Харків, вул. Конторська,14. Оренда – приміщення 2-го поверху площею 14,8 кв.м (В)
Україна, Харківська обл., м. Харків, вул. Конторська,14
28.12.2023
Рівненська обл., Рівненський р-н, с. Моквин, вул. Шевченка, 3. Оренда – виробничі приміщення загальною площею 144,7 м.кв. (В)
2 144.45 грн
14.82 грн / м2
Приміщення
Рівненська обл., Рівненський р-н, с. Моквин, вул. Шевченка, 3. Оренда – виробничі приміщення загальною площею 144,7 м.кв. (В)
Україна, Рівненська обл., Рівненський р-н, с. Моквин, вул. Шевченка, 3
14.09.2022
Сумська обл., Сумський р-н., с. Річки, вул. Центральна, буд. 6. Оренда – приміщення 2-го поверху площею 20,90 кв. м
404.62 грн
19.36 грн / м2
Приміщення
Сумська обл., Сумський р-н., с. Річки, вул. Центральна, буд. 6. Оренда – приміщення 2-го поверху площею 20,90 кв. м
Україна, Сумська обл., Річки, вул. Центральна, буд. 6
19.01.2023
Одеська обл., м. Одеса, вул. Генерала Петрова, 30/2. Оренда – приміщення гаражу, майстерні загальною площею 79,20 кв.м та 2 парко-місця (В)
3 659.04 грн
46.20 грн / м2
Приміщення
Одеська обл., м. Одеса, вул. Генерала Петрова, 30/2. Оренда – приміщення гаражу, майстерні загальною площею 79,20 кв.м та 2 парко-місця (В)
Україна, Одеська обл., м. Одеса, вул. Генерала Петрова, 30/2