Полтавська обл., м. Кременчук, вулиця Соборна, 17.Оренда приміщення 1-го поверху площею 21,70 кв.м. (В)

2 820.57 грн
129.98 грн / м2
Україна, Полтавська обл., м. Кременчук, вулиця Соборна, 17
Перейти до аукціону на сайті
  • Інформація
  • Опис
  • Документи
Дата оголошення пропозиції:
26 червня 2023
Площа:
21.70 м2
Тип об’єкта:
Приміщення
Тип аукціону:
Англійський аукціон
Статус аукціону:
Аукціон не відбувся
Тип угоди:
Оренда
Розмір мінімального кроку:
100.00 ₴
Розмір гарантійного внеску:
1 692.34 ₴
Початок прийому пропозицій:
26.06.2023 12:03:22
Завершення прийому пропозицій:
26.07.2023 20:00:00
Проведення аукціону:
27.07.2023 12:15:00
Лот:
CLE001-UA-20230626-51362
№ лоту (УТК):
UTK260623_11P
Лот виставляється на торги (раз):
1
Стислий опис майна:
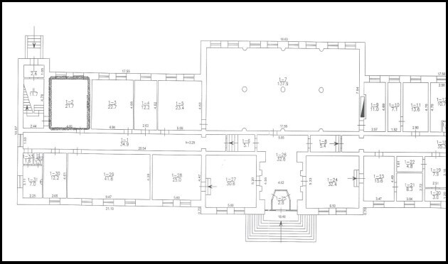
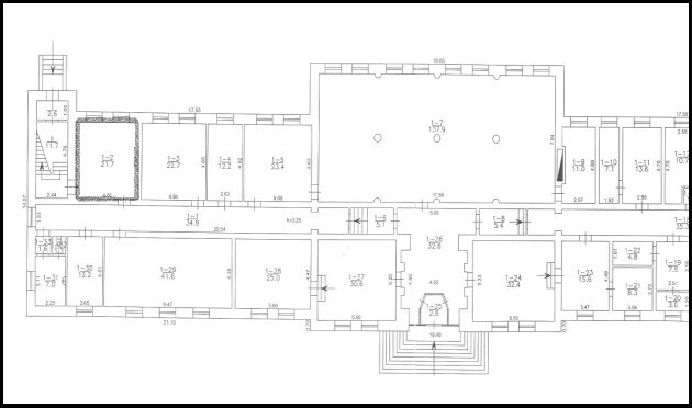
Пропонується до оренди приміщення площею 21,70 кв.м. Приміщення розташоване на 1 поверсі 3-х поверхової адміністративної будівлі, яка знаходиться в центрі м. Кременчук. Вхід з вулиці. Характеристики Кількість поверхів – 3; Загальна площа – 2757,60 кв. м.; Площа запропонована до оренди 21,70 кв. м.; Опалення – наявне; Дозволена потужність – до 5 кВт; Земельна ділянка – 0,5591 га (договір оренди)
Адреса місцезнаходження майна:
Україна, Полтавська обл., м. Кременчук, вулиця Соборна, 17
Схожі пропозиції
23.09.2025
Полтавська обл., м. Полтава, вулиця Загородня, 30. Оренда – приміщення 2-го поверху загальною площею 373,20 кв.м. (В)
22 392.00 грн
60.00 грн / м2
Приміщення
Полтавська обл., м. Полтава, вулиця Загородня, 30. Оренда – приміщення 2-го поверху загальною площею 373,20 кв.м. (В)
Україна, Полтавська обл., м. Полтава, вулиця Загородня, 30
21.07.2023
Полтавська обл., Кременчуцький р-н., м. Кременчук, вулиця Вадима Пугачова, буд. 12. Оренда – приміщення 3-го поверху площею 646,40 кв.м. (В)
3 361.28 грн
5.20 грн / м2
Приміщення
Полтавська обл., Кременчуцький р-н., м. Кременчук, вулиця Вадима Пугачова, буд. 12. Оренда – приміщення 3-го поверху площею 646,40 кв.м. (В)
Україна, Полтавська обл., Кременчуцький р-н., м. Кременчук, вулиця Вадима Пугачова, буд. 12
Полтавська обл., м. Полтава, вул. Юрія Побєдоносцева, буд.17. Оренда – приміщення на 1-му поверсі площею 97,20 кв.м. (В)
4 490.64 грн
46.20 грн / м2
Приміщення
Полтавська обл., м. Полтава, вул. Юрія Побєдоносцева, буд.17. Оренда – приміщення на 1-му поверсі площею 97,20 кв.м. (В)
Україна, Полтавська обл., м. Полтава, вул. Юрія Побєдоносцева, буд.17
13.09.2022
Полтавська обл., Полтавський р-н, с-ще. Покровське, вул. Освітянська, 8. Оренда – приміщення 1-го поверху площею 17,50 кв.м. (В)
389.20 грн
22.24 грн / м2
Приміщення
Полтавська обл., Полтавський р-н, с-ще. Покровське, вул. Освітянська, 8. Оренда – приміщення 1-го поверху площею 17,50 кв.м. (В)
Україна, Полтавська обл., Покровське, вул. Освітянська, 8
Переглянуті пропозиції
15.07.2025
Сумська обл., Шосткинський р-н, с. Тиманівка, вул. Перемоги, 37. Оренда – нежитлова будівля площею 55,30 кв.м. (В)
663.60 грн
12.00 грн / м2
Будівля
Сумська обл., Шосткинський р-н, с. Тиманівка, вул. Перемоги, 37. Оренда – нежитлова будівля площею 55,30 кв.м. (В)
Україна, Сумська обл., Шосткинський р-н, с. Тиманівка, вул. Перемоги, 37
23.02.2023
Вінницька обл., м. Вінниця, вул. Соборна, 8. Оренда – приміщення підвалу площею 174,7 кв.м. (В)
8 071.14 грн
46.20 грн / м2
Приміщення
Вінницька обл., м. Вінниця, вул. Соборна, 8. Оренда – приміщення підвалу площею 174,7 кв.м. (В)
Україна, Вінницька обл., Вінниця, вулиця Соборна, 8
21.08.2024
м.Харків, вул.Конторська,14 ;     Оренда–приміщення 2-го поверху площею 26,1 кв.м (В)
1 808.73 грн
69.30 грн / м2
Приміщення
м.Харків, вул.Конторська,14 ; Оренда–приміщення 2-го поверху площею 26,1 кв.м (В)
Україна, Харківська обл., Харків, вулиця Конторська, 14