Дніпропетровська обл., м. Жовті Води, вул. Свободи, 39. Оренда – приміщення 3-го поверху площею 34,1 кв.м. (В)

854.75 грн
25.07 грн / м2
Україна, Дніпропетровська обл., Жовті Води, бульвар Свободи, 39
Перейти до аукціону на сайті
  • Інформація
  • Опис
  • Документи
Дата оголошення пропозиції:
29 червня 2023
Площа:
34.10 м2
Тип об’єкта:
Приміщення
Тип аукціону:
Англійський аукціон
Статус аукціону:
Аукціон не відбувся
Тип угоди:
Оренда
Розмір мінімального кроку:
15.00 ₴
Розмір гарантійного внеску:
512.85 ₴
Початок прийому пропозицій:
29.06.2023 12:25:48
Завершення прийому пропозицій:
30.07.2023 20:00:00
Проведення аукціону:
31.07.2023 12:45:00
Лот:
CLE001-UA-20230629-91329
№ лоту (УТК):
UTK011122_4T
Лот виставляється на торги (раз):
8
Стислий опис майна:
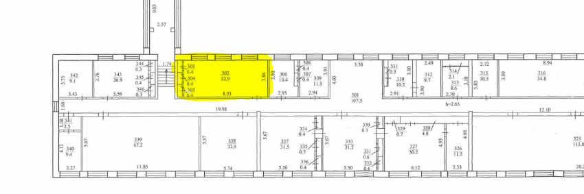
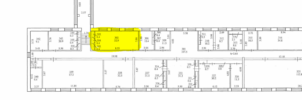
Пропонується до оренди приміщення 3-го поверху площею 34,1 кв.м. Розташування – 3-поверхова будівля (літ.А-Б-В, приміщ.№302 - 32,9 кв.м та вбудовані шафи №№303-305 площею 1,2 кв.м), знаходиться в центральному районі міста. Поруч знаходяться відділення банку, високий автомобільний і пішохідний потоки. Стан приміщення задовільний, підходить для офісу, Ідеальне місце під розвиток будь-якого бізнесу. Можливість передачі приміщень в суборенду. Характеристики: • Кількість поверхів – 3 • Загальна площа – 3622,5 кв.м. • Площа запропонована до оренди – 34,1 кв.м. • Електропостачання, водопостачання, теплопостачанняцентралізоване; • Земельна ділянка – 0, 603 га (договір оренди)
Адреса місцезнаходження майна:
Україна, Дніпропетровська обл., Жовті Води, бульвар Свободи, 39
Схожі пропозиції
26.03.2024
Дніпропетровська обл., м. Кам’янське, просп. Свободи, 44. Оренда – приміщення 2-го поверху загальною площею 95,30 кв.м
6 061.08 грн
63.60 грн / м2
Приміщення
Дніпропетровська обл., м. Кам’янське, просп. Свободи, 44. Оренда – приміщення 2-го поверху загальною площею 95,30 кв.м
Україна, Дніпропетровська обл., м. Кам’янське, просп. Свободи, 44
07.02.2025
Дніпропетровська обл., м. Кривий Ріг, вул. Водоп`янова, 1а;   Оренда – приміщення 5-го поверху, площею 809,7 кв.м. (В)
7 287.30 грн
9.00 грн / м2
Приміщення
Дніпропетровська обл., м. Кривий Ріг, вул. Водоп`янова, 1а; Оренда – приміщення 5-го поверху, площею 809,7 кв.м. (В)
Україна, Дніпропетровська обл., Кривий Ріг, вулиця Водоп'янова, 1а
02.08.2024
Дніпропетровська обл., смт Софіївка, бул. Шевченка, 17А. Оренда – приміщення гаражу (Г-2) площею 33,00 кв.м.(В)
429.00 грн
13.00 грн / м2
Приміщення
Дніпропетровська обл., смт Софіївка, бул. Шевченка, 17А. Оренда – приміщення гаражу (Г-2) площею 33,00 кв.м.(В)
Україна, Дніпропетровська обл., смт Софіївка, ул. Шевченка, 17А
10.01.2023
Дніпропетровська обл., м. Дніпро, вул. Князя Ярослава Мудрого, 3. Оренда – приміщення 5-го поверху площею 58,20 кв.м. (В)
3 887.76 грн
66.80 грн / м2
Приміщення
Дніпропетровська обл., м. Дніпро, вул. Князя Ярослава Мудрого, 3. Оренда – приміщення 5-го поверху площею 58,20 кв.м. (В)
Україна, Дніпропетровська обл., м. Дніпро, вул. Князя Ярослава Мудрого, 3, вул. Дніпровська, 226
Переглянуті пропозиції
м. Київ, вул. Джона Маккейна, №40, оренда – приміщення 2-го поверху, площею 920,80 м2 (В)
251 645.43 грн
273.29 грн / м2
Приміщення
м. Київ, вул. Джона Маккейна, №40, оренда – приміщення 2-го поверху, площею 920,80 м2 (В)
Україна, м.Київ, Київ, вул. Джона Маккейна, 40