Дніпропетровська обл., м. Кам’янське, просп. Свободи, 44. Оренда – приміщення 2-го поверху загальною площею 95,30 кв.м

6 061.08 грн
63.60 грн / м2
Україна, Дніпропетровська обл., м. Кам’янське, просп. Свободи, 44
Перейти до аукціону на сайті
  • Інформація
  • Опис
  • Документи
Дата оголошення пропозиції:
23 лютого 2024
Площа:
95.30 м2
Тип об’єкта:
Приміщення
Тип аукціону:
Англійський аукціон
Статус аукціону:
Аукціон не відбувся
Тип угоди:
Оренда
Розмір мінімального кроку:
200.00 ₴
Розмір гарантійного внеску:
3 636.65 ₴
Початок прийому пропозицій:
23.02.2024 14:54:24
Завершення прийому пропозицій:
25.03.2024 20:00:00
Проведення аукціону:
26.03.2024 12:50:00
Лот:
CLE001-UA-20240223-64311
№ лоту (УТК):
UTK230224_18P
Лот виставляється на торги (раз):
1
Стислий опис майна:
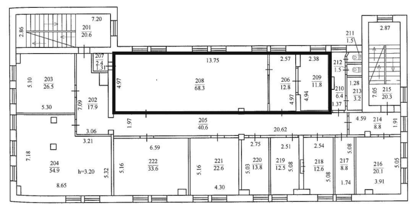
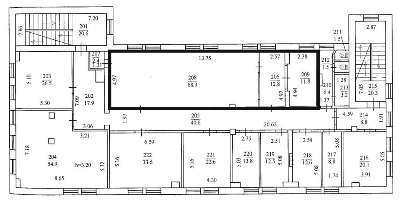
Пропонується до оренди приміщення 2-го поверху площею 95,30 кв.м (прим.№№206-209). Будівля в центрі міста. Поруч знаходяться об’єкти соціальної інфраструктури: відділення пошти та банку, клініка, магазини, ринок тощо. Стан приміщення відмінний, підходить для офісу, ідеальне місце під розвиток будь-якого бізнесу. Зручна транспортна розв’язка та інфраструктура. Характеристики: Кількість поверхів – 5 Загальна площа – 2506,00 кв.м Площа запропонована до оренди – 95,30 кв.м Електропостачання, водопостачання, теплопостачання Земельна ділянка – 0,2324 га (договір оренди) Ресурсні податки – 2,68 грн за 1 кв.м
Адреса місцезнаходження майна:
Україна, Дніпропетровська обл., м. Кам’янське, просп. Свободи, 44
Схожі пропозиції
18.03.2025
Дніпропетровська обл., м. Кривий Ріг, вул. Водоп`янова, 1а;  Оренда – приміщення 2-го поверху, площею 569,4 кв.м. (В)
6 832.80 грн
12.00 грн / м2
Приміщення
Дніпропетровська обл., м. Кривий Ріг, вул. Водоп`янова, 1а; Оренда – приміщення 2-го поверху, площею 569,4 кв.м. (В)
Україна, Дніпропетровська обл., Кривий Ріг, вулиця Водоп'янова, 1а
Дніпропетровська обл., м. Дніпро, вулиця Князя Ярослава Мудрого, 3. Оренда – приміщення 5-го поверху, площею 58,20 кв.м. (В)
2 310.54 грн
39.70 грн / м2
Приміщення
Дніпропетровська обл., м. Дніпро, вулиця Князя Ярослава Мудрого, 3. Оренда – приміщення 5-го поверху, площею 58,20 кв.м. (В)
Україна, Дніпропетровська обл., м. Дніпро, вулиця Князя Ярослава Мудрого, 3
26.04.2024
Дніпропетровська обл., м. Кам’янське, просп. Героїв АТО, 1. Оренда –  приміщення 3-го поверху загальною площею 112,0 кв.м (В)
5 369.28 грн
47.94 грн / м2
Приміщення
Дніпропетровська обл., м. Кам’янське, просп. Героїв АТО, 1. Оренда – приміщення 3-го поверху загальною площею 112,0 кв.м (В)
Україна, Дніпропетровська обл., м. Кам’янське, просп. Героїв АТО, 1
25.11.2022
Дніпропетровська обл., м. Дніпро, вул. Князя Ярослава Мудрого, 3. Оренда – приміщення 4-го поверху площею 21,60 кв.м. (В)
1 442.88 грн
66.80 грн / м2
Приміщення
Дніпропетровська обл., м. Дніпро, вул. Князя Ярослава Мудрого, 3. Оренда – приміщення 4-го поверху площею 21,60 кв.м. (В)
Україна, Дніпропетровська обл., м. Дніпро, вул. Князя Ярослава Мудрого, 3