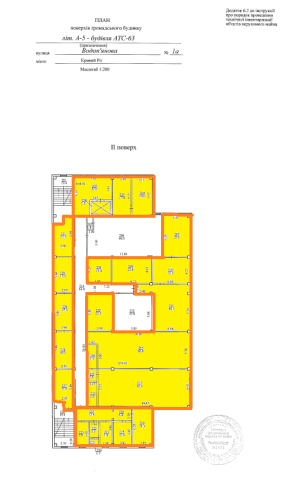
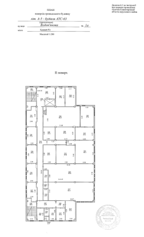
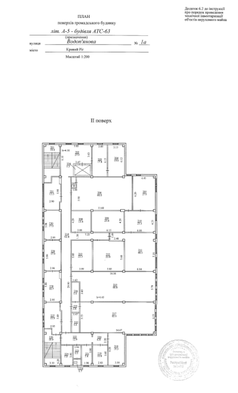
Дніпропетровська обл., м. Кривий Ріг, вул. Водоп`янова, 1а; Оренда – приміщення 2-го поверху, площею 569,4 кв.м. (В)

6 832.80 грн
12.00 грн / м2
Україна, Дніпропетровська обл., Кривий Ріг, вулиця Водоп'янова, 1а
Перейти до аукціону на сайті
  • Інформація
  • Опис
  • Документи
Дата оголошення пропозиції:
13 лютого 2025
Площа:
569.40 м2
Тип об’єкта:
Приміщення
Тип аукціону:
Англійський аукціон
Статус аукціону:
Аукціон не відбувся
Тип угоди:
Оренда
Розмір мінімального кроку:
200.00 ₴
Розмір гарантійного внеску:
4 099.68 ₴
Початок прийому пропозицій:
13.02.2025 17:48:24
Завершення прийому пропозицій:
17.03.2025 20:00:00
Проведення аукціону:
18.03.2025 11:25:00
Лот:
CLE001-UA-20250213-78390
№ лоту (УТК):
UTK081021_11T
Лот виставляється на торги (раз):
10
Стислий опис майна:
Пропонується до оренди приміщення 2-го поверху, площею 569,4 кв.м. Будівля в діловому центрі міста. Поруч розташовані відділення пошт, магазини тощо. Вхід в приміщення спільний. Зручна транспортна розв’язка та інфраструктура. Характеристики: -Кількість поверхів – 5; -Загальна площа – 4559,8 кв.м_ -Площа запропонована до оренди – 569,4 кв.м -Електропостачання, водопостачання. -Теплопостачання відсутнє -Земельна ділянка – 0,3093 га (договір оренди)
Адреса місцезнаходження майна:
Україна, Дніпропетровська обл., Кривий Ріг, вулиця Водоп'янова, 1а
Схожі пропозиції
20.08.2024
Дніпропетровська обл., м. Кам’янське, просп. Свободи, 44. Оренда – приміщення 5-го поверху загальною площею 237,20 кв.м (В)
6 034.37 грн
25.44 грн / м2
Приміщення
Дніпропетровська обл., м. Кам’янське, просп. Свободи, 44. Оренда – приміщення 5-го поверху загальною площею 237,20 кв.м (В)
Україна, Дніпропетровська обл., м. Кам’янське, просп. Свободи, 44
31.12.2024
Дніпропетровська обл., м. Кам’янське, просп. Героїв АТО, 1. Оренда – приміщення 2-го поверху загальною площею 161,0 кв.м (В)
3 381.00 грн
21.00 грн / м2
Приміщення
Дніпропетровська обл., м. Кам’янське, просп. Героїв АТО, 1. Оренда – приміщення 2-го поверху загальною площею 161,0 кв.м (В)
Україна, Дніпропетровська обл., м. Кам’янське, просп. Героїв АТО, 1
06.06.2025
Дніпропетровська обл., м. Жовті Води, вул. Свободи, 39. Оренда – приміщення 3-го поверху площею 104,40 кв.м. (В)
1 252.80 грн
12.00 грн / м2
Приміщення
Дніпропетровська обл., м. Жовті Води, вул. Свободи, 39. Оренда – приміщення 3-го поверху площею 104,40 кв.м. (В)
Україна, Дніпропетровська обл., м. Жовті Води, вул. Свободи, 39
25.08.2022
Дніпропетровська обл., м. Дніпро, вул.Князя Ярослава Мудрого, 3. Оренда – приміщення 5-го поверху площею 68,20 кв.м. (В)
5 694.70 грн
83.50 грн / м2
Приміщення
Дніпропетровська обл., м. Дніпро, вул.Князя Ярослава Мудрого, 3. Оренда – приміщення 5-го поверху площею 68,20 кв.м. (В)
Україна, Дніпропетровська обл., м. Дніпро, вул.Князя Ярослава Мудрого, 3
Переглянуті пропозиції
23.07.2024
м. Київ, вул. Василя Макуха (Івана Шевцова), 5;   Оренда – приміщення 1-го поверху будівлі, площею 401,5 кв.м. (В)
83 720.78 грн
208.52 грн / м2
Приміщення
м. Київ, вул. Василя Макуха (Івана Шевцова), 5; Оренда – приміщення 1-го поверху будівлі, площею 401,5 кв.м. (В)
Україна, м.Київ, м. Київ, вулиця Василя Макуха (Івана Шевцова), 5
ДОВГОСТРОКОВА ОРЕНДА! м. Київ, вул. Салютна, 5а, літ. «Б». Оренда – приміщення 3-го та 4-го поверхів площею 992,80 кв.м. (В)
104 114.94 грн
104.87 грн / м2
Приміщення
ДОВГОСТРОКОВА ОРЕНДА! м. Київ, вул. Салютна, 5а, літ. «Б». Оренда – приміщення 3-го та 4-го поверхів площею 992,80 кв.м. (В)
Україна, м.Київ, Київ, вул. Салютна, 5а, літ. «Б»
 м. Київ, вул. Джона Маккейна, №40, оренда – приміщення 2-го поверху, площею 920,80 кв.м. (В)
179 749.37 грн
195.21 грн / м2
Приміщення
м. Київ, вул. Джона Маккейна, №40, оренда – приміщення 2-го поверху, площею 920,80 кв.м. (В)
Україна, м.Київ, Київ, вул. Джона Маккейна, 40
Дніпропетровська обл., м. Дніпро, вул. Січових Стрільців, 10. Оренда – приміщення цокольного поверху площею 47,90 кв.м. (В)
8 559.25 грн
178.69 грн / м2
Приміщення
Дніпропетровська обл., м. Дніпро, вул. Січових Стрільців, 10. Оренда – приміщення цокольного поверху площею 47,90 кв.м. (В)
Україна, Дніпропетровська обл., м. Дніпро, вул. Січових Стрільців, 10