Дніпропетровська обл., м. Жовті Води, вул. Свободи, 39. Оренда – приміщення 3-го поверху площею 104,40 кв.м. (В)

1 252.80 грн
12.00 грн / м2
Україна, Дніпропетровська обл., м. Жовті Води, вул. Свободи, 39
Перейти до аукціону на сайті
  • Інформація
  • Опис
  • Документи
Дата оголошення пропозиції:
07 травня 2025
Площа:
104.40 м2
Тип об’єкта:
Приміщення
Тип аукціону:
Англійський аукціон
Статус аукціону:
Аукціон не відбувся
Тип угоди:
Оренда
Розмір мінімального кроку:
50.00 ₴
Розмір гарантійного внеску:
751.68 ₴
Початок прийому пропозицій:
07.05.2025 14:07:45
Завершення прийому пропозицій:
05.06.2025 20:00:00
Проведення аукціону:
06.06.2025 12:55:00
Лот:
CLE001-UA-20250507-68831
№ лоту (УТК):
UTK181122_02P
Лот виставляється на торги (раз):
10
Стислий опис майна:
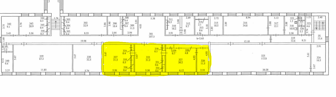
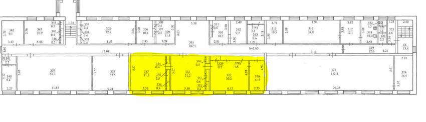
Пропонується до оренди приміщення 3-го поверху площею 104,40 кв.м. Розташування – 3-поверхова будівля (літ.А-Б-В, приміщ.№ 327, 333, 337, 326), знаходиться в центральному районі міста. Поруч знаходяться відділення банку, високий автомобільний і пішохідний потоки. Стан приміщення задовільний, підходить для офісу, Ідеальне місце під розвиток будь-якого бізнесу. Можливість передачі приміщень в суборенду. Характеристики: Кількість поверхів – 3; Загальна площа – 3622,50 кв.м.; Площа запропонована до оренди – 104,40 кв.м.; Електропостачання, водопостачання, теплопостачання-централізоване; Земельна ділянка – 0, 603 га (договір оренди)
Адреса місцезнаходження майна:
Україна, Дніпропетровська обл., м. Жовті Води, вул. Свободи, 39
Схожі пропозиції
Дніпропетровська обл., м. Дніпро, пр. Пушкіна, 75 а. Оренда – приміщення  1-го  поверху площею 27,10 кв.м.(В)
2 509.73 грн
92.61 грн / м2
Приміщення
Дніпропетровська обл., м. Дніпро, пр. Пушкіна, 75 а. Оренда – приміщення 1-го поверху площею 27,10 кв.м.(В)
Україна, Дніпропетровська обл., м. Дніпро, пр. Пушкіна, 75 а
10.09.2024
Дніпропетровська обл., м. Кам’янське, вул. Героїв АТО, 1;  Оренда – приміщення 3-го поверху площею 17,3 кв.м. (В)
259.50 грн
15.00 грн / м2
Приміщення
Дніпропетровська обл., м. Кам’янське, вул. Героїв АТО, 1; Оренда – приміщення 3-го поверху площею 17,3 кв.м. (В)
Україна, Дніпропетровська обл., Кам’янське, Героїв АТО, 1
22.11.2023
Дніпропетровська обл., м. Дніпро, пр. Богдана Хмельницького, 28а.Оренда – приміщення 2-го поверху площею 74,90 кв.м. (В)
7 370.16 грн
98.40 грн / м2
Приміщення
Дніпропетровська обл., м. Дніпро, пр. Богдана Хмельницького, 28а.Оренда – приміщення 2-го поверху площею 74,90 кв.м. (В)
Україна, Дніпропетровська обл., м. Дніпро, пр. Богдана Хмельницького, 28а
08.08.2023
Дніпропетровська обл., м. Дніпро, вул.Січових Стрільців, 10. Оренда – приміщення цокольного поверху площею 31,20 кв.м. (В)
1 478.88 грн
47.40 грн / м2
Приміщення
Дніпропетровська обл., м. Дніпро, вул.Січових Стрільців, 10. Оренда – приміщення цокольного поверху площею 31,20 кв.м. (В)
Україна, Дніпропетровська обл., м. Дніпро, вул.Січових Стрільців, 10
Переглянуті пропозиції
05.12.2023
м. Київ, вул. Архітектора Вербицького, 3;   Оренда – приміщення 1-го та 3-го поверху площею 263,7 кв.м. (В)
25 251.91 грн
95.76 грн / м2
Приміщення
м. Київ, вул. Архітектора Вербицького, 3; Оренда – приміщення 1-го та 3-го поверху площею 263,7 кв.м. (В)
Україна, м.Київ, Київ, вулиця Архітектора Вербицького, 3
03.09.2025
Дніпропетровська обл., м. Кам’янське, просп. Свободи, 44. Оренда – приміщення 5-го поверху загальною площею 26,10 кв.м (В)
522.00 грн
20.00 грн / м2
Приміщення
Дніпропетровська обл., м. Кам’янське, просп. Свободи, 44. Оренда – приміщення 5-го поверху загальною площею 26,10 кв.м (В)
Україна, Дніпропетровська обл., м. Кам’янське, просп. Свободи, 44