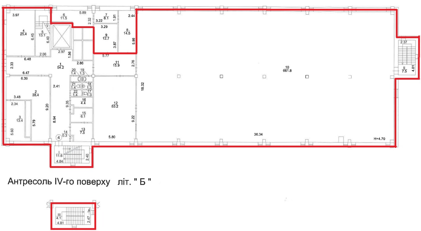
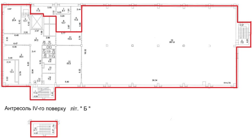
ДОВГОСТРОКОВА ОРЕНДА! м. Київ, вул. Салютна, 5а, літ. «Б». Оренда – приміщення 3-го та 4-го поверхів площею 992,80 кв.м. (В)

104 114.94 грн
104.87 грн / м2
Україна, м.Київ, Київ, вул. Салютна, 5а, літ. «Б»
Перейти до аукціону на сайті
  • Інформація
  • Опис
  • Документи
Дата оголошення пропозиції:
10 червня 2022
Площа:
992.80 м2
Тип об’єкта:
Приміщення
Тип аукціону:
Англійський аукціон
Статус аукціону:
Аукціон не відбувся
Тип угоди:
Оренда
Розмір мінімального кроку:
1 000.00 ₴
Розмір гарантійного внеску:
62 468.96 ₴
Початок прийому пропозицій:
10.06.2022 14:00:49
Завершення прийому пропозицій:
12.07.2022 20:00:00
Лот:
UA-PS-2022-06-10-000014-1
№ лоту (УТК):
UTK040422_06T
Лот виставляється на торги (раз):
3
Стислий опис майна:
Пропонуються до оренди приміщення 3-го та 4-го поверху, літ. «Б», площею 992,80 м2 . Будівля розташована в Шевченківському районі міста Києва, місцевість Нивки. Поруч розвинена інфраструктура, зупинки маршрутного транспорту, супермаркети, бізнес-центри, фінансові заклади, 5 хв. від ст. м. «Нивки». Вхід з двору. Доступ 24/7. Характеристики • кількість поверхів – 4; • сан. вузол, каналізація – присутні; • площа будівлі – літ. «Б» - 4892,10 м2; • опалення централізоване (міське); • земельна ділянка – 0,6317 га;
Адреса місцезнаходження майна:
Україна, м.Київ, Київ, вул. Салютна, 5а, літ. «Б»
Схожі пропозиції
ДОВГОСТРОКОВА ОРЕНДА! м. Київ, вул. Ісаакяна, 3. Оренда – Приміщення 3-го поверху площею 501,50 кв.м. (В)
113 930.77 грн
227.18 грн / м2
Приміщення
ДОВГОСТРОКОВА ОРЕНДА! м. Київ, вул. Ісаакяна, 3. Оренда – Приміщення 3-го поверху площею 501,50 кв.м. (В)
Україна, м.Київ, Київ, вул. Ісаакяна, 3
м. Київ, вул. Джона Маккейна, №40, оренда – приміщення 2-го поверху, площею 920,80 м2 (В)
251 645.43 грн
273.29 грн / м2
Приміщення
м. Київ, вул. Джона Маккейна, №40, оренда – приміщення 2-го поверху, площею 920,80 м2 (В)
Україна, м.Київ, Київ, вул. Джона Маккейна, 40
01.04.2025
м. Київ, бульвар Амвросія Бучми, 5 (Дніпровський р-н), літ. «А». Оренда – частина нежилої будівлі літ. «А», приміщення підвалу, 1,2,3 та 5 поверхів площею 1512,80 кв.м. (В)
170 492.56 грн
112.70 грн / м2
Приміщення
м. Київ, бульвар Амвросія Бучми, 5 (Дніпровський р-н), літ. «А». Оренда – частина нежилої будівлі літ. «А», приміщення підвалу, 1,2,3 та 5 поверхів площею 1512,80 кв.м. (В)
Україна, м.Київ, Київ, 02152, м. Київ, бульв. Амвросія Бучми, 5 (Дніпровський р-н), літ. «А»
30.04.2025
м. Київ, вул. Джона Маккейна, 40, літ. «В» (Печерський р-н). Оренда – гаражі, загальною площею - 314,90 кв.м. (В)
90 505.41 грн
287.41 грн / м2
Приміщення
м. Київ, вул. Джона Маккейна, 40, літ. «В» (Печерський р-н). Оренда – гаражі, загальною площею - 314,90 кв.м. (В)
Україна, м.Київ, Київ, 01042, м. Київ, вул. Джона Маккейна, 40, літ. «В» (Печерський р-н)
Переглянуті пропозиції
 м. Київ, вул. Джона Маккейна, №40, оренда – приміщення 2-го поверху, площею 920,80 кв.м. (В)
179 749.37 грн
195.21 грн / м2
Приміщення
м. Київ, вул. Джона Маккейна, №40, оренда – приміщення 2-го поверху, площею 920,80 кв.м. (В)
Україна, м.Київ, Київ, вул. Джона Маккейна, 40
Дніпропетровська обл., м. Дніпро, вул. Січових Стрільців, 10. Оренда – приміщення цокольного поверху площею 47,90 кв.м. (В)
8 559.25 грн
178.69 грн / м2
Приміщення
Дніпропетровська обл., м. Дніпро, вул. Січових Стрільців, 10. Оренда – приміщення цокольного поверху площею 47,90 кв.м. (В)
Україна, Дніпропетровська обл., м. Дніпро, вул. Січових Стрільців, 10