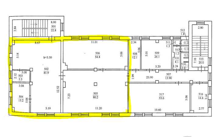
Дніпропетровська обл., м. Кам’янське, просп. Свободи, 44. Оренда – приміщення 5-го поверху загальною площею 237,20 кв.м (В)

6 034.37 грн
25.44 грн / м2
Україна, Дніпропетровська обл., м. Кам’янське, просп. Свободи, 44
Перейти до аукціону на сайті
  • Інформація
  • Опис
  • Документи
Дата оголошення пропозиції:
18 липня 2024
Площа:
237.20 м2
Тип об’єкта:
Приміщення
Тип аукціону:
Англійський аукціон
Статус аукціону:
Аукціон не відбувся
Тип угоди:
Оренда
Розмір мінімального кроку:
500.00 ₴
Розмір гарантійного внеску:
3 620.62 ₴
Початок прийому пропозицій:
18.07.2024 14:23:12
Завершення прийому пропозицій:
19.08.2024 20:00:00
Проведення аукціону:
20.08.2024 11:00:00
Лот:
CLE001-UA-20240718-83592
№ лоту (УТК):
UTK230224_16P
Лот виставляється на торги (раз):
5
Стислий опис майна:
Пропонується до оренди приміщення 5-го поверху площею 237,20 кв.м (прим.№№502-506). Будівля в центрі міста. Поруч знаходяться об’єкти соціальної інфраструктури: відділення пошти та банку, клініка, магазини, ринок тощо. Стан приміщення відмінний, підходить для офісу, ідеальне місце під розвиток будь-якого бізнесу. Зручна транспортна розв’язка та інфраструктура. Характеристики: Кількість поверхів – 5 Загальна площа – 2506,00 кв.м Площа запропонована до оренди – 237,20 кв.м Електропостачання, водопостачання, теплопостачання Земельна ділянка – 0,2324 га (договір оренди) Ресурсні податки – 2,68 грн за 1 кв.м
Адреса місцезнаходження майна:
Україна, Дніпропетровська обл., м. Кам’янське, просп. Свободи, 44
Схожі пропозиції
Дніпропетровська обл., м. Дніпро, вулиця Князя Ярослава Мудрого, 3. Оренда – приміщення 5-го поверху, площею 39,70 кв.м. (В)
1 969.91 грн
49.62 грн / м2
Приміщення
Дніпропетровська обл., м. Дніпро, вулиця Князя Ярослава Мудрого, 3. Оренда – приміщення 5-го поверху, площею 39,70 кв.м. (В)
Україна, Дніпропетровська обл., м. Дніпро, вулиця Князя Ярослава Мудрого, 3
11.08.2022
Дніпропетровська обл., м. Дніпро, вул. Панікахи, 27. Оренда – приміщення 1-го поверху площею 92,70 кв.м.(В)
4 814.84 грн
51.94 грн / м2
Приміщення
Дніпропетровська обл., м. Дніпро, вул. Панікахи, 27. Оренда – приміщення 1-го поверху площею 92,70 кв.м.(В)
Україна, Дніпропетровська обл., Дніпро, вул. Панікахи, 27
20.08.2024
Дніпропетровська обл., м. Кам’янське, просп. Героїв АТО, 1. Оренда – приміщення 3-го поверху загальною площею 133,60 кв.м (В)
2 805.60 грн
21.00 грн / м2
Приміщення
Дніпропетровська обл., м. Кам’янське, просп. Героїв АТО, 1. Оренда – приміщення 3-го поверху загальною площею 133,60 кв.м (В)
Україна, Дніпропетровська обл., м. Кам’янське, просп. Героїв АТО, 1
09.09.2025
Дніпропетровська обл., м. Дніпро, бул. Рубіновий, 18. Оренда –групаприміщень2-го поверху загальноюплощею692,90 кв.м. (В)
20 787.00 грн
30.00 грн / м2
Приміщення
Дніпропетровська обл., м. Дніпро, бул. Рубіновий, 18. Оренда –групаприміщень2-го поверху загальноюплощею692,90 кв.м. (В)
Україна, Дніпропетровська обл., Дніпро, Рубіновий бульвар, 18
Переглянуті пропозиції
03.09.2025
Дніпропетровська обл., м. Кам’янське, просп. Свободи, 44. Оренда – приміщення 5-го поверху загальною площею 26,10 кв.м (В)
522.00 грн
20.00 грн / м2
Приміщення
Дніпропетровська обл., м. Кам’янське, просп. Свободи, 44. Оренда – приміщення 5-го поверху загальною площею 26,10 кв.м (В)
Україна, Дніпропетровська обл., м. Кам’янське, просп. Свободи, 44