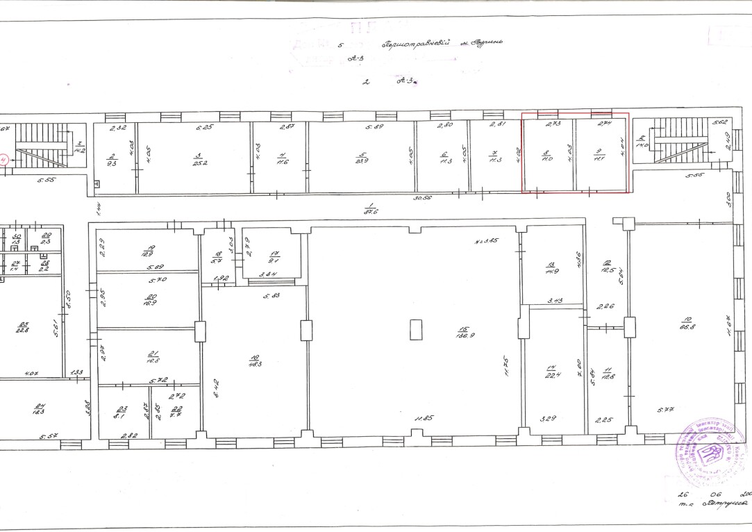
Сумська обл., м. Буринь, вул. Першотравнева, 5. Оренда – офісні приміщення 2-го поверху площею 22,10 кв.м. (В)

502.33 грн
22.73 грн / м2
Україна, Сумська обл., м. Буринь, вул. Першотравнева, 5
Перейти до аукціону на сайті
  • Інформація
  • Опис
  • Документи
Дата оголошення пропозиції:
05 липня 2023
Площа:
22.10 м2
Тип об’єкта:
Офіс
Тип аукціону:
Англійський аукціон
Статус аукціону:
Аукціон не відбувся
Тип угоди:
Оренда
Розмір мінімального кроку:
20.00 ₴
Розмір гарантійного внеску:
301.40 ₴
Початок прийому пропозицій:
05.07.2023 11:50:00
Завершення прийому пропозицій:
03.08.2023 20:00:00
Проведення аукціону:
04.08.2023 11:35:00
Лот:
CLE001-UA-20230705-13359
№ лоту (УТК):
UTK190922_07P
Лот виставляється на торги (раз):
10
Стислий опис майна:
Пропонується до оренди офісні приміщення 2-го поверху площею 22,10 кв.м. триповерхової будівлі. Знаходиться в центральній частині міста. Добра візуалізація з дороги. Вхід в приміщення з тильної сторони будівлі. Можливість передачі приміщення в суборенду. Доступ 24/7. Характеристики: Кількість поверхів – 3; Загальна площа – 2212,0; Площа запропонована до оренди – 22,10 кв.м.; Водопостачання – відсутнє (наявний санвузол загального користування); Опалення та електропостачання – наявне; Земельна ділянка – 0,7542 га (договір оренди).
Адреса місцезнаходження майна:
Україна, Сумська обл., м. Буринь, вул. Першотравнева, 5
Схожі пропозиції
20.12.2023
Сумська обл., смт. Велика Писарівка, вул. Грайворонська, 11. Оренда – офісне приміщення на 2-му поверсі площею 20,40 кв.м. (В)
501.84 грн
24.60 грн / м2
Офіс
Сумська обл., смт. Велика Писарівка, вул. Грайворонська, 11. Оренда – офісне приміщення на 2-му поверсі площею 20,40 кв.м. (В)
Україна, Сумська обл., смт. Велика Писарівка, вул. Грайворонська, 11
13.05.2025
Сумська область, м.Лебедин, вул. Героїв Майдану, буд. 25. Оренда – офісні приміщення, площею 66,5 кв.м. (В)
1 411.80 грн
21.23 грн / м2
Офіс
Сумська область, м.Лебедин, вул. Героїв Майдану, буд. 25. Оренда – офісні приміщення, площею 66,5 кв.м. (В)
Україна, Сумська обл., Лебедин, 42200, Сумська область, м.Лебедин, вул. Героїв Майдану, 25
05.06.2024
Сумська обл., Роменський р-н, смт. Липова Долина, вул. Загорянка, 2;  Оренда – офісні приміщення 1-го поверху площею 25,7 кв.м. (В)
514.00 грн
20.00 грн / м2
Офіс
Сумська обл., Роменський р-н, смт. Липова Долина, вул. Загорянка, 2; Оренда – офісні приміщення 1-го поверху площею 25,7 кв.м. (В)
Україна, Сумська обл., смт. Липова Долина, вулиця Загорянка, 2
30.04.2024
Сумська обл., Сумський р-н, смт. Краснопілля, вул. Сумська, 5. Оренда – офісне приміщення 1-го поверху площею 20,10 кв.м. (В)
530.64 грн
26.40 грн / м2
Офіс
Сумська обл., Сумський р-н, смт. Краснопілля, вул. Сумська, 5. Оренда – офісне приміщення 1-го поверху площею 20,10 кв.м. (В)
Україна, Сумська обл., Сумський р-н, смт. Краснопілля, вул. Сумська, 5
Переглянуті пропозиції
Вінницька обл., м. Вінниця, вул. Соборна, 8. Оренда – приміщення 1-го та 2-го поверху площею 164,30 кв.м. (В)
9 836.64 грн
59.87 грн / м2
Приміщення
Вінницька обл., м. Вінниця, вул. Соборна, 8. Оренда – приміщення 1-го та 2-го поверху площею 164,30 кв.м. (В)
Україна, Вінницька обл., Вінниця, вул. Соборна, 8
12.11.2024
Рівненська обл., м. Здолбунів, вул. Грушевського,15:  Оренда – приміщення 2 –го поверху площею 360,50.кв.м. (В)
13 605.27 грн
37.74 грн / м2
Приміщення
Рівненська обл., м. Здолбунів, вул. Грушевського,15: Оренда – приміщення 2 –го поверху площею 360,50.кв.м. (В)
Україна, Рівненська обл., Здолбунів, вулиця Михайла Грушевського, 15
28.10.2025
Волинська обл., Володимирський р-н, м. Нововолинськ, вул. Митрополита Шептицького, 6. Оренда – приміщення 3-го поверху площею 80,20 кв.м (В)
2 646.80 грн
33.00 грн / м2
Приміщення
Волинська обл., Володимирський р-н, м. Нововолинськ, вул. Митрополита Шептицького, 6. Оренда – приміщення 3-го поверху площею 80,20 кв.м (В)
Україна, Волинська обл., Нововолинськ, вулиця Митрополита Шептицького, 6
Полтавська обл., м. Решетилівка, вул. Полтавська, 50. Оренда - підсобне приміщення та гараж площею 50,3 кв.м.
618.19 грн
12.29 грн / м2
Приміщення
Полтавська обл., м. Решетилівка, вул. Полтавська, 50. Оренда - підсобне приміщення та гараж площею 50,3 кв.м.
Україна, Полтавська обл., м. Решетилівка, вул. Полтавська, буд. 50