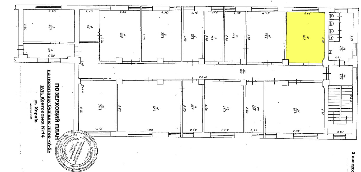
м. Харків, вул. Конторська,14.Оренда – приміщення 2-го поверху площею 26,3 кв.м (В)

2 603.70 грн
99.00 грн / м2
Україна, Харківська обл., м. Харків, вул. Конторська,14
Перейти до аукціону на сайті
  • Інформація
  • Опис
  • Документи
Дата оголошення пропозиції:
07 липня 2023
Площа:
26.30 м2
Тип об’єкта:
Приміщення
Тип аукціону:
Англійський аукціон
Статус аукціону:
Аукціон не відбувся
Тип угоди:
Оренда
Розмір мінімального кроку:
50.00 ₴
Розмір гарантійного внеску:
1 562.22 ₴
Початок прийому пропозицій:
07.07.2023 11:59:32
Завершення прийому пропозицій:
08.08.2023 20:00:00
Проведення аукціону:
09.08.2023 11:35:00
Лот:
CLE001-UA-20230707-78750
№ лоту (УТК):
UTK070723_11P
Лот виставляється на торги (раз):
1
Стислий опис майна:
Пропонується до оренди приміщення 2-го поверху площею 26,3 кв.м. Будівля в центрі міста Харкова. 15 хв до метро Центральний ринок. Характеристики: Кількість поверхів – 4; Загальна площа – 5611,00 кв.м_ Площа запропонована до оренди – 26,3 кв.м Дозволена потужність – 4 кВт Теплопостачання - відсутнє Земельна ділянка – 0,5169 га
Адреса місцезнаходження майна:
Україна, Харківська обл., м. Харків, вул. Конторська,14
Схожі пропозиції
03.06.2025
Харківська обл., м. Харків, вул. Коцарська, 45, літер «А-4». Оренда – приміщення на 2-му поверсі загальною площею 48,70 кв.м. (В)
1 461.00 грн
30.00 грн / м2
Приміщення
Харківська обл., м. Харків, вул. Коцарська, 45, літер «А-4». Оренда – приміщення на 2-му поверсі загальною площею 48,70 кв.м. (В)
Україна, Харківська обл., Харків, м. Харків, вул. Коцарська, 45, літер «А-4»
Харківська обл., Харківський р-н, смт. Вільшани, вул. Центральна, 18. Оренда – окремі приміщення 1-го та 2-го поверху площею 251,10 кв.м. (В)
1 918.40 грн
7.64 грн / м2
Приміщення
Харківська обл., Харківський р-н, смт. Вільшани, вул. Центральна, 18. Оренда – окремі приміщення 1-го та 2-го поверху площею 251,10 кв.м. (В)
Україна, Харківська обл., Харківський р-н, смт. Вільшани, вул. Центральна, 18
19.12.2023
Харківська обл., Красноградський р-н, м. Красноград, вул. Соборна, 56 . Оренда – приміщення 5-го поверху площею 21,20кв.м. (В)
1 272.00 грн
60.00 грн / м2
Приміщення
Харківська обл., Красноградський р-н, м. Красноград, вул. Соборна, 56 . Оренда – приміщення 5-го поверху площею 21,20кв.м. (В)
Україна, Харківська обл., Красноградський р-н, м. Красноград, вул. Соборна, 56
Харківська обл., м. Харків, вул. Нетіченська набережна, 8. Оренда – приміщення дев'ятого поверху площею 135,1 кв.м. (В)
6 241.62 грн
46.20 грн / м2
Приміщення
Харківська обл., м. Харків, вул. Нетіченська набережна, 8. Оренда – приміщення дев'ятого поверху площею 135,1 кв.м. (В)
Україна, Харківська обл., м. Харків, вул. Нетіченська набережна, 8