Харківська обл., Харківський р-н, смт. Вільшани, вул. Центральна, 18. Оренда – окремі приміщення 1-го та 2-го поверху площею 251,10 кв.м. (В)

1 918.40 грн
7.64 грн / м2
Україна, Харківська обл., Харківський р-н, смт. Вільшани, вул. Центральна, 18
Перейти до аукціону на сайті
  • Інформація
  • Опис
  • Документи
Дата оголошення пропозиції:
06 травня 2022
Площа:
251.10 м2
Тип об’єкта:
Приміщення
Тип аукціону:
Англійський аукціон
Статус аукціону:
Аукціон не відбувся
Тип угоди:
Оренда
Розмір мінімального кроку:
50.00 ₴
Розмір гарантійного внеску:
1 151.04 ₴
Початок прийому пропозицій:
06.05.2022 09:32:00
Завершення прийому пропозицій:
08.06.2022 20:00:00
Лот:
UA-PS-2022-05-06-000002-1
№ лоту (УТК):
UTK300721_19Р
Лот виставляється на торги (раз):
8
Стислий опис майна:
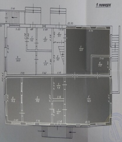
Пропонуються до оренди окремі приміщення 1-го та 2-го поверхів будівлі А-2 площею 251,10 кв.м. Будівля знаходиться у центральній частині селища, в районі з частково розвиненою інфраструктурою. Стан приміщення задовільний. Характеристики: Кількість поверхів – 2; кількість приміщень, пропонованих до оренди – 9; В приміщенні присутні опалення, електроенергія, водопостачання.
Адреса місцезнаходження майна:
Україна, Харківська обл., Харківський р-н, смт. Вільшани, вул. Центральна, 18
Схожі пропозиції
06.02.2024
м. Харків,  пр-т  Ювілейний, 66;   Оренда – приміщення 2-го поверху площею 10,9 кв.м (В)
849.55 грн
77.94 грн / м2
Приміщення
м. Харків, пр-т Ювілейний, 66; Оренда – приміщення 2-го поверху площею 10,9 кв.м (В)
Україна, Харківська обл., Харків, проспект Ювілейний, 66
02.09.2025
м. Харків, вул. Конторська,14.Оренда – приміщення 4-го поверху площею 25,9 кв.м (В)
777.00 грн
30.00 грн / м2
Приміщення
м. Харків, вул. Конторська,14.Оренда – приміщення 4-го поверху площею 25,9 кв.м (В)
Україна, Харківська обл., м. Харків, вул. Конторська,14
05.11.2024
м. Харків, пр-т. Г. Сталінграду, 3. Оренда – приміщення 3-го поверху площею 344,7 кв.м. (В)
18 820.62 грн
54.60 грн / м2
Приміщення
м. Харків, пр-т. Г. Сталінграду, 3. Оренда – приміщення 3-го поверху площею 344,7 кв.м. (В)
Україна, Харківська обл., м. Харків, пр-т. Г. Сталінграду, 3
26.03.2024
Харківська обл., Красноградський р-н, смт. Сахновщина, вул. Поштова, 6. Оренда – приміщення на 1-го поверху площею 57,0 кв.м. (В)
600.78 грн
10.54 грн / м2
Приміщення
Харківська обл., Красноградський р-н, смт. Сахновщина, вул. Поштова, 6. Оренда – приміщення на 1-го поверху площею 57,0 кв.м. (В)
Україна, Харківська обл., Красноградський р-н, смт. Сахновщина, вул. Поштова, 6