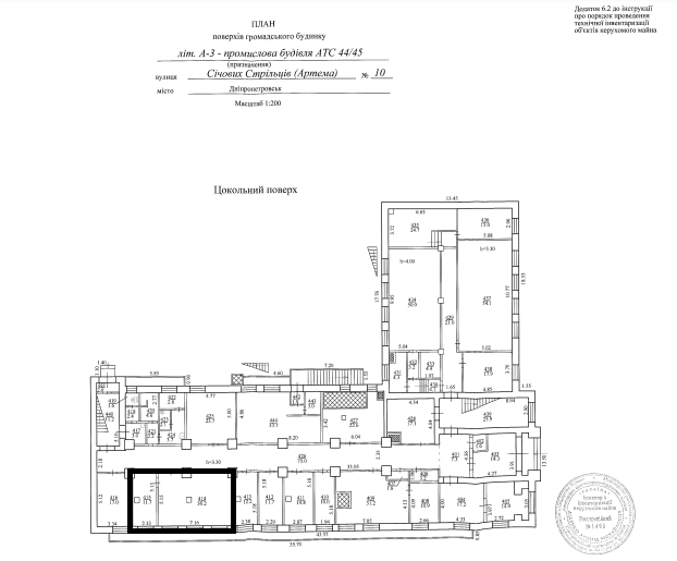
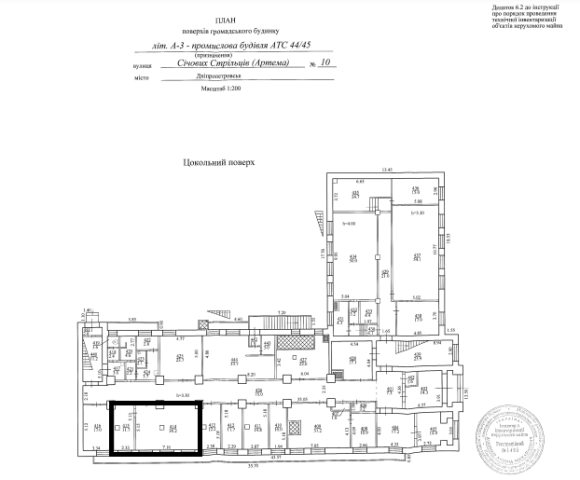
Дніпропетровська обл., м. Дніпро, вул. Січових Стрільців, 10. Оренда – приміщення цокольного поверху площею 47,90 кв.м. (В)

5 006.51 грн
104.52 грн / м2
Україна, Дніпропетровська обл., м. Дніпро, вул. Січових Стрільців, 10
Перейти до аукціону на сайті
  • Інформація
  • Опис
  • Документи
Дата оголошення пропозиції:
13 серпня 2023
Площа:
47.90 м2
Тип об’єкта:
Приміщення
Тип аукціону:
Англійський аукціон
Статус аукціону:
Аукціон не відбувся
Тип угоди:
Оренда
Розмір мінімального кроку:
100.00 ₴
Розмір гарантійного внеску:
3 003.90 ₴
Початок прийому пропозицій:
13.08.2023 23:43:31
Завершення прийому пропозицій:
11.09.2023 20:00:00
Проведення аукціону:
12.09.2023 12:45:00
Лот:
CLE001-UA-20230813-29265
№ лоту (УТК):
UTK281221_04P
Лот виставляється на торги (раз):
10
Стислий опис майна:
Пропонується до оренди приміщення цокольного поверху площею 47,90кв.м. Розташування - будівля знаходиться в центральному районі міста. Поруч знаходяться відділення банку, високий автомобільний і пішохідний потоки. Стан приміщення задовільний, підходить для офісу, студії, Ідеальне місце під розвиток будь-якого бізнесу. Можливість передачі приміщень в суборенду. Характеристики: - Кількість поверхів – 3 - Загальна площа – 2854,80 кв.м. - Площа запропонована до оренди – 47,90 кв.м. - Електропостачання, водопостачання, теплопостачання, охорона та обслуговування пожежної сигналізації, вивіз сміття, прибирання загальних місць та території; - Земельна ділянка – 0, 1636 га (договір оренди)
Адреса місцезнаходження майна:
Україна, Дніпропетровська обл., м. Дніпро, вул. Січових Стрільців, 10
Схожі пропозиції
10.11.2023
Дніпропетровська обл., м. Жовті Води, вул. Свободи, 39. Оренда – приміщення 3-го поверху площею 104,40 кв.м. (В)
552.28 грн
5.29 грн / м2
Приміщення
Дніпропетровська обл., м. Жовті Води, вул. Свободи, 39. Оренда – приміщення 3-го поверху площею 104,40 кв.м. (В)
Україна, Дніпропетровська обл., м. Жовті Води, вул. Свободи, 39
09.04.2024
Дніпропетровська обл., м. Дніпро, вул. Панікахи, 27;   Оренда – приміщення 1-го поверху площею 92,7 кв.м.(В)
8 520.06 грн
91.91 грн / м2
Приміщення
Дніпропетровська обл., м. Дніпро, вул. Панікахи, 27; Оренда – приміщення 1-го поверху площею 92,7 кв.м.(В)
Україна, Дніпропетровська обл., Дніпро, вулиця Панікахи, 27
18.10.2024
Дніпропетровська обл., м. Кривий Ріг, вул. Водоп`янова, 1а;  Оренда – приміщення 3-го поверху, площею 812,3 кв.м. (В)
7 310.70 грн
9.00 грн / м2
Приміщення
Дніпропетровська обл., м. Кривий Ріг, вул. Водоп`янова, 1а; Оренда – приміщення 3-го поверху, площею 812,3 кв.м. (В)
Україна, Дніпропетровська обл., Кривий Ріг, вулиця Водоп'янова, 1а
Дніпропетровська обл., м. Кривий Ріг, вул. Головка Адмірала, 71. Оренда – приміщення 2-го поверху, площею 306,9 кв.м. (В)
11 232.54 грн
36.60 грн / м2
Приміщення
Дніпропетровська обл., м. Кривий Ріг, вул. Головка Адмірала, 71. Оренда – приміщення 2-го поверху, площею 306,9 кв.м. (В)
Україна, Дніпропетровська обл., м. Кривий Ріг, вул. Головка Адмірала, 71