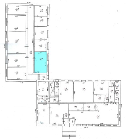
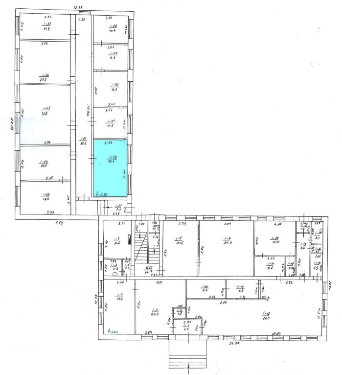
Вінницька обл., Вінницький р_н, смт. Тиврів, вул. Тиверська, 55. Оренда – приміщення 1го поверху площею 22,4 кв.м. (В)

268.80 грн
12.00 грн / м2
Україна, Вінницька обл., Вінницький р_н, смт. Тиврів, вул. Тиверська, 55
Перейти до аукціону на сайті
  • Інформація
  • Опис
  • Документи
Дата оголошення пропозиції:
16 серпня 2023
Площа:
22.40 м2
Тип об’єкта:
Приміщення
Тип аукціону:
Англійський аукціон
Статус аукціону:
Аукціон не відбувся
Тип угоди:
Оренда
Розмір мінімального кроку:
10.00 ₴
Розмір гарантійного внеску:
161.28 ₴
Початок прийому пропозицій:
16.08.2023 15:41:03
Завершення прийому пропозицій:
18.09.2023 20:00:00
Проведення аукціону:
19.09.2023 12:20:00
Лот:
CLE001-UA-20230816-50142
№ лоту (УТК):
UTK080721_04P
Лот виставляється на торги (раз):
10
Стислий опис майна:
До оренди пропонуються приміщення 1го поверху площею 22,4 кв.м. Будівля знаходиться в діловому центрі смт. Тиврів Поруч знаходяться магазини, відділення банків, в пішохідній доступності – парк. Характеристики: Кількість поверхів – 2; Загальна площа – 862,4 кв. м; Площа пропонована до оренди – 22,4 кв. м; Електропостачання, водопостачання
Адреса місцезнаходження майна:
Україна, Вінницька обл., Вінницький р_н, смт. Тиврів, вул. Тиверська, 55
Схожі пропозиції
30.08.2024
Вінницька обл., Вінницький р-н, с. Івча, вул. Центральна, 35;   Оренда – приміщення площею 35,0 кв.м. (В)
350.00 грн
10.00 грн / м2
Приміщення
Вінницька обл., Вінницький р-н, с. Івча, вул. Центральна, 35; Оренда – приміщення площею 35,0 кв.м. (В)
Україна, Вінницька обл., Івча, вул. Центральна, 35
12.01.2024
Вінницька обл., Вінницький р-н., м. Липовець, вул. В. Липківського, 37;   Оренда – нежитлові приміщення площею 86,7 кв.м. (В)
2 314.89 грн
26.70 грн / м2
Приміщення
Вінницька обл., Вінницький р-н., м. Липовець, вул. В. Липківського, 37; Оренда – нежитлові приміщення площею 86,7 кв.м. (В)
Україна, Вінницька обл., Липовець, вул. В. Липківського, 37
02.09.2022
Вінницька обл., Гайсинський р-н, с. Ольгопіль, вул. Центральна, 131. Оренда – приміщення підвалу площею 86,10 кв.м. (В)
656.94 грн
7.63 грн / м2
Приміщення
Вінницька обл., Гайсинський р-н, с. Ольгопіль, вул. Центральна, 131. Оренда – приміщення підвалу площею 86,10 кв.м. (В)
Україна, Вінницька обл., Гайсинський р-н, с. Ольгопіль, вул. Центральна, 131