Вінницька обл., Вінницький р-н, с. Івча, вул. Центральна, 35; Оренда – приміщення площею 35,0 кв.м. (В)

350.00 грн
10.00 грн / м2
Україна, Вінницька обл., Івча, вул. Центральна, 35
Перейти до аукціону на сайті
  • Інформація
  • Опис
  • Документи
Дата оголошення пропозиції:
28 липня 2024
Площа:
35.00 м2
Тип об’єкта:
Приміщення
Тип аукціону:
Англійський аукціон
Статус аукціону:
Аукціон не відбувся
Тип угоди:
Оренда
Розмір мінімального кроку:
10.00 ₴
Розмір гарантійного внеску:
210.00 ₴
Початок прийому пропозицій:
28.07.2024 21:22:01
Завершення прийому пропозицій:
29.08.2024 20:00:00
Проведення аукціону:
30.08.2024 12:10:00
Лот:
CLE001-UA-20240728-25709
№ лоту (УТК):
UTK200522_10T
Лот виставляється на торги (раз):
10
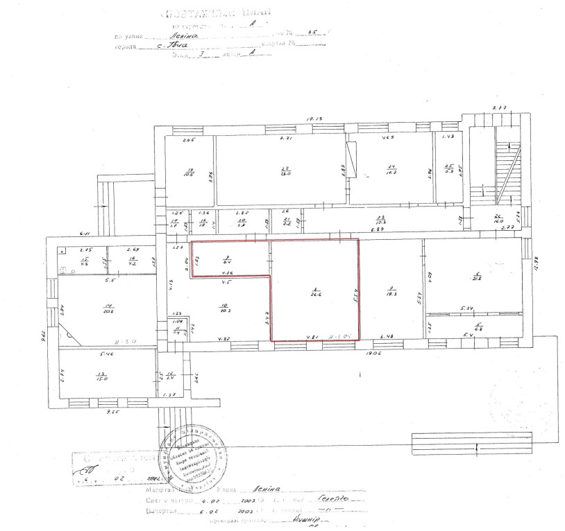
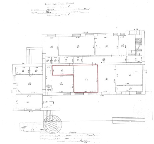
Стислий опис майна:
Пропонується до оренди приміщення площею 35,0 кв.м. Будівля знаходиться в центральній частині с. Івча в зоні житлової забудови на спільній території із селищною радою. Характеристики - Кількість поверхів – 2; - Загальна площа – 35,0 кв.м; - Площа запропонована до оренди – 35,0 кв.м. - Водопостачання та електропостачання відсутнє.
Адреса місцезнаходження майна:
Україна, Вінницька обл., Івча, вул. Центральна, 35
Схожі пропозиції
Вінницька обл., смт. Чечельник, вул. Свято-Михайлівська, 11. Оренда приміщення дизельної
579.60 грн
18.00 грн / м2
Приміщення
Вінницька обл., смт. Чечельник, вул. Свято-Михайлівська, 11. Оренда приміщення дизельної
Україна, Вінницька обл., смт. Чечельник, вул. Свято-Михайлівська, 11
30.05.2025
Вінницька обл., Могилів-Подільський р-н, с. Юрківці, вул. Молодіжна, 24. Оренда – приміщення площею 28,22 кв.м. (В)
507.96 грн
18.00 грн / м2
Приміщення
Вінницька обл., Могилів-Подільський р-н, с. Юрківці, вул. Молодіжна, 24. Оренда – приміщення площею 28,22 кв.м. (В)
Україна, Вінницька обл., Юрківці, Юрківці, вул. Молодіжна, 24
Вінницька обл., м. Вінниця, вул. Соборна, 8, оренда – Приміщення 1го поверху площею 154,5 кв.м. (В)
15 416.01 грн
99.78 грн / м2
Приміщення
Вінницька обл., м. Вінниця, вул. Соборна, 8, оренда – Приміщення 1го поверху площею 154,5 кв.м. (В)
Україна, Вінницька обл., Вінниця, вул. Соборна, 8
Вінницька обл., Тульчинський р-н, смт. Піщанка, вул. Муравського, 1, оренда – приміщення 1-го поверху площею 27,80 кв.м. (В)
550.44 грн
19.80 грн / м2
Приміщення
Вінницька обл., Тульчинський р-н, смт. Піщанка, вул. Муравського, 1, оренда – приміщення 1-го поверху площею 27,80 кв.м. (В)
Україна, Вінницька обл., Піщанка, вул. Муравського, 1