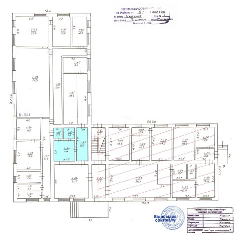
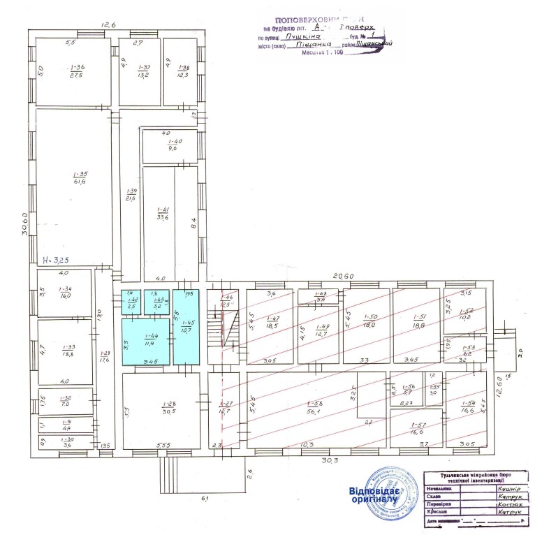
Вінницька обл., Тульчинський р-н, смт. Піщанка, вул. Муравського, 1, оренда – приміщення 1-го поверху площею 27,80 кв.м. (В)

550.44 грн
19.80 грн / м2
Україна, Вінницька обл., Піщанка, вул. Муравського, 1
Перейти до аукціону на сайті
  • Інформація
  • Опис
  • Документи
Дата оголошення пропозиції:
28 січня 2022
Площа:
27.80 м2
Тип об’єкта:
Приміщення
Тип аукціону:
Англійський аукціон
Статус аукціону:
Аукціон не відбувся
Тип угоди:
Оренда
Розмір мінімального кроку:
30.00 ₴
Розмір гарантійного внеску:
330.26 ₴
Початок прийому пропозицій:
28.01.2022 11:36:28
Завершення прийому пропозицій:
01.03.2022 20:00:00
Лот:
UA-PS-2022-01-28-000053-1
№ лоту (УТК):
UTK170721_06T
Лот виставляється на торги (раз):
7
Стислий опис майна:
Пропонуються до оренди приміщення першого поверху площею 27,80 кв.м. будівлі, що знаходиться в центральній частині смт. Піщанка. В пішій доступності розташовані Піщанська райдержадміністрація, Піщанська районна лікарня, торговельні та банківські заклади. Характеристики: - Кількість поверхів –2; - Загальна площа – 1365,80 кв.м; - Площа запропонована до оренди – 27,80 кв.м; - Електропостачання.
Адреса місцезнаходження майна:
Україна, Вінницька обл., Піщанка, вул. Муравського, 1
Схожі пропозиції
Вінницька обл., м. Вінниця, вул. М. Оводова, 22. Оренда – приміщення 3-го поверху площею 19,0 кв.м.
1 590.49 грн
83.71 грн / м2
Приміщення
Вінницька обл., м. Вінниця, вул. М. Оводова, 22. Оренда – приміщення 3-го поверху площею 19,0 кв.м.
Україна, Вінницька обл., м. Вінниця, вул. М. Оводова, 22
Вінницька обл., м. Вінниця, вул. Соборна, 8. Оренда – приміщення 2-го поверху площею 18,6 кв.м. (В)
1 409.51 грн
75.78 грн / м2
Приміщення
Вінницька обл., м. Вінниця, вул. Соборна, 8. Оренда – приміщення 2-го поверху площею 18,6 кв.м. (В)
Україна, Вінницька обл., м. Вінниця, вул. Соборна, 8
24.12.2024
Вінницька обл., м. Вінниця, вул. О. Береста, 6;   Оренда – Навіс площею 109,0 кв.м. (В)
5 166.60 грн
47.40 грн / м2
Приміщення
Вінницька обл., м. Вінниця, вул. О. Береста, 6; Оренда – Навіс площею 109,0 кв.м. (В)
Україна, Вінницька обл., Вінниця, вулиця Олексія Береста, 6
14.11.2024
Вінницька обл., Гайсинський р-н., м. Гайсин, вул. Жовтнева, 28-А;  Оренда – приміщення 3-го поверху площею 177,80 кв.м. (В)
1 066.80 грн
6.00 грн / м2
Приміщення
Вінницька обл., Гайсинський р-н., м. Гайсин, вул. Жовтнева, 28-А; Оренда – приміщення 3-го поверху площею 177,80 кв.м. (В)
Україна, Вінницька обл., Гайсин, вул. Жовтнева, 28-А
Переглянуті пропозиції
Сумська обл., Шосткинський р-н, м. Середино-Буда, вул. Європейська, буд. 10. Оренда – офісні приміщення 1-го поверху площею 79,30 кв.м. (В)
7 930.00 грн
100.00 грн / м2
Офіс
Сумська обл., Шосткинський р-н, м. Середино-Буда, вул. Європейська, буд. 10. Оренда – офісні приміщення 1-го поверху площею 79,30 кв.м. (В)
Україна, Сумська обл., Шосткинський р-н, м. Середино-Буда, вул. Європейська, буд. 10
15.07.2025
Полтавська обл., Миргородський район, смт. Комишня, вул. Миру, 101. Оренда – приміщення загальною площею 552,90 кв.м. (В)
10 018.55 грн
18.12 грн / м2
Приміщення
Полтавська обл., Миргородський район, смт. Комишня, вул. Миру, 101. Оренда – приміщення загальною площею 552,90 кв.м. (В)
Україна, Полтавська обл., Миргородський район, смт. Комишня, вул. Миру, 101
26.11.2025
Полтавська обл., Миргородський р-н, м. Лохвиця, вулиця Перемоги, 7. Оренда – приміщення 3-го поверху загальною площею 170,20 кв.м. (В)