Рівненська обл., Сарненський р-н, с. Орв’яниця, вул. Центральна, 128. Оренда – нежитлові приміщення 1-го поверху площею 29,9 кв.м. (П)

1 854.70 грн
62.03 грн / м2
Україна, Рівненська обл., с. Орв’яниця, вул. Центральна, 128
Перейти до аукціону на сайті
  • Інформація
  • Опис
  • Документи
Дата оголошення пропозиції:
22 серпня 2023
Площа:
29.90 м2
Тип об’єкта:
Приміщення
Тип аукціону:
Англійський аукціон
Статус аукціону:
Аукціон не відбувся
Тип угоди:
Оренда
Розмір мінімального кроку:
100.00 ₴
Розмір гарантійного внеску:
1 112.82 ₴
Початок прийому пропозицій:
22.08.2023 13:19:12
Завершення прийому пропозицій:
21.09.2023 20:00:00
Проведення аукціону:
22.09.2023 11:05:00
Лот:
CLE001-UA-20230822-10758
№ лоту (УТК):
UTK220823_15P
Лот виставляється на торги (раз):
1
Стислий опис майна:
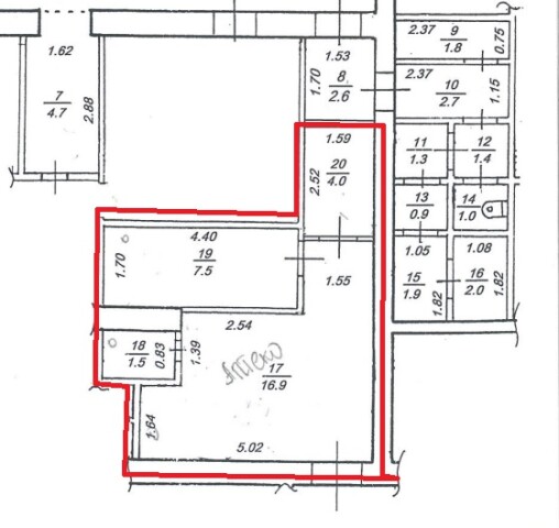
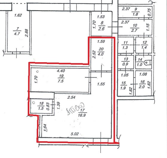
Пропонуються до оренди нежитлові приміщення площею 29,9 кв.м. Будівля знаходяться в центральній частині села , інфраструктура досить розвинена . Можливість передачі приміщень в суборенду. Характеристики: Кількість поверхів – 2. Загальна площа – 388 кв.м. Площа, запропонована до оренди – 29,9 кв.м. Опалення –відсутнє. Земельна ділянка - площа 0,1457 га.
Адреса місцезнаходження майна:
Україна, Рівненська обл., с. Орв’яниця, вул. Центральна, 128
Схожі пропозиції
20.10.2023
Рівненська обл., Рівненський р-н, с. Моквин, вул. Шевченка, 3. Оренда – виробничі приміщення загальною площею 144,7 м.кв. (В)
2 144.45 грн
14.82 грн / м2
Приміщення
Рівненська обл., Рівненський р-н, с. Моквин, вул. Шевченка, 3. Оренда – виробничі приміщення загальною площею 144,7 м.кв. (В)
Україна, Рівненська обл., Рівненський р-н, с. Моквин, вул. Шевченка, 3
м. Рівне, вул. В. Чорновола, 1. Оренда – приміщення 2-го поверху
4 825.58 грн
67.68 грн / м2
Приміщення
м. Рівне, вул. В. Чорновола, 1. Оренда – приміщення 2-го поверху
Україна, Рівненська обл., м. Рівне, вул. В. Чорновола, буд. 1
23.02.2024
Рівненська обл., Рівненський р-н, с. Пустомити, вул. Радянська, 41. Оренда – виробничі приміщення площею 21,80 кв.м. (В)
261.60 грн
12.00 грн / м2
Приміщення
Рівненська обл., Рівненський р-н, с. Пустомити, вул. Радянська, 41. Оренда – виробничі приміщення площею 21,80 кв.м. (В)
Україна, Рівненська обл., Рівненський р-н, с. Пустомити, вул. Радянська, 41
20.10.2023
Рівненська обл., м. Рівне вул. Орлова, 37. Оренда – приміщення 4го поверху площею 326,3 м. кв. (В)
25 856.01 грн
79.24 грн / м2
Приміщення
Рівненська обл., м. Рівне вул. Орлова, 37. Оренда – приміщення 4го поверху площею 326,3 м. кв. (В)
Україна, Рівненська обл., м. Рівне, вул. Орлова, 37
Переглянуті пропозиції
06.06.2023
Чернігівська обл., м. Чернігів, проспект Миру, 35Б. Оренда – офісні приміщення 1 та 2 поверхів загальною площею 242,8 кв.м. (В)
18 865.56 грн
77.70 грн / м2
Офіс
Чернігівська обл., м. Чернігів, проспект Миру, 35Б. Оренда – офісні приміщення 1 та 2 поверхів загальною площею 242,8 кв.м. (В)
Україна, Чернігівська обл., м. Чернігів, проспект Миру, 35Б
26.08.2025
м. Харків, вул. Амосова,13 в. Оренда – приміщення 4-го поверху площею 55,3 кв.м (В)
1 659.00 грн
30.00 грн / м2
Приміщення
м. Харків, вул. Амосова,13 в. Оренда – приміщення 4-го поверху площею 55,3 кв.м (В)
Україна, Харківська обл., м. Харків, вул. Амосова,13 в
05.06.2024
Полтавська обл., Кременчуцький р-н, с. Іванове Селище, вул. Новоукраїнська, буд.7. Оренда – Гараж площею 24,20 кв.м. (В)
508.20 грн
21.00 грн / м2
Гараж
Полтавська обл., Кременчуцький р-н, с. Іванове Селище, вул. Новоукраїнська, буд.7. Оренда – Гараж площею 24,20 кв.м. (В)
Україна, Полтавська обл., Кременчуцький р-н, с. Іванове Селище, вул. Новоукраїнська, буд.7
23.11.2023
ДОВГОСТРОКОВА ОРЕНДА! Рівненська обл., м.Рівне вул. В.Чорновола,1; Оренда – приміщення 5-го поверху загальною площею 483,4 кв.м. (В)
47 305.52 грн
97.86 грн / м2
Приміщення
ДОВГОСТРОКОВА ОРЕНДА! Рівненська обл., м.Рівне вул. В.Чорновола,1; Оренда – приміщення 5-го поверху загальною площею 483,4 кв.м. (В)
Україна, Рівненська обл., Рівне, вул. Вячеслава Чорновола, 1