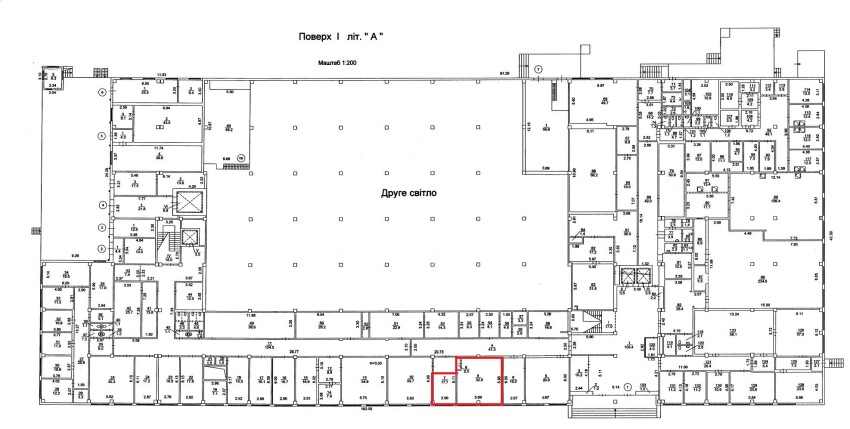
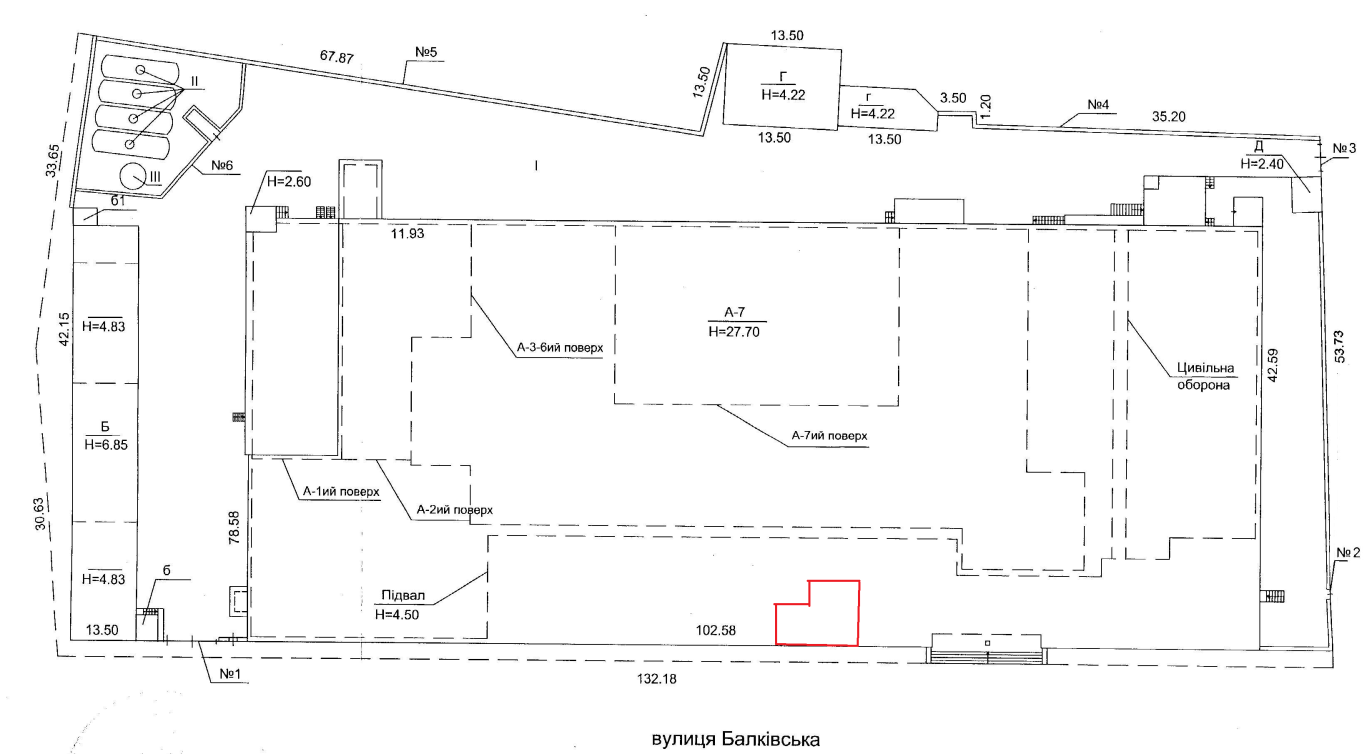
Одеська обл., м. Одеса, вул. Балківська, 100. Оренда – приміщення 1-го поверху загальною площею 45,19 кв.м. (П)

8 784.94 грн
194.40 грн / м2
Україна, Одеська обл., м. Одеса, вул. Балківська, 100
Перейти до аукціону на сайті
  • Інформація
  • Опис
  • Документи
Дата оголошення пропозиції:
11 вересня 2023
Площа:
45.19 м2
Тип об’єкта:
Приміщення
Тип аукціону:
Англійський аукціон
Статус аукціону:
Аукціон не відбувся
Тип угоди:
Оренда
Розмір мінімального кроку:
200.00 ₴
Розмір гарантійного внеску:
5 270.96 ₴
Початок прийому пропозицій:
11.09.2023 11:22:27
Завершення прийому пропозицій:
10.10.2023 20:00:00
Проведення аукціону:
11.10.2023 12:30:00
Лот:
CLE001-UA-20230911-61871
№ лоту (УТК):
UTK110923_02P
Лот виставляється на торги (раз):
1
Стислий опис майна:
Пропонуються до оренди приміщення 1-го поверху загальною площею 45,19 кв.м. Об'єкт знаходиться у Малиновському районі. Приміщення під офіс. Здійснюється пропускний режим, цілодобова фізична охорона, поряд безкоштовна парковка на 15 авто. Високий пішохідний та автомобільний трафік. Характеристики : кількість поверхів будівлі – 7; загальна площа – 16585,10 кв.м площа запропонована до оренди – 45,19 кв.м теплопостачання - централізоване; водопостачання – водопровід дозволена потужність – до 5 кВт земельна ділянка – 0,7329 га.
Адреса місцезнаходження майна:
Україна, Одеська обл., м. Одеса, вул. Балківська, 100
Схожі пропозиції
05.04.2024
Одеська обл., м. Подільськ, вул. Соборна, буд.№72. Оренда – приміщення 3-го поверху площею 14,30 кв.м. (В)
257.40 грн
18.00 грн / м2
Приміщення
Одеська обл., м. Подільськ, вул. Соборна, буд.№72. Оренда – приміщення 3-го поверху площею 14,30 кв.м. (В)
Україна, Одеська обл., м. Подільськ, вул. Соборна, буд.№72
04.07.2023
Одеська обл., Білгород-Дністровський район, м. Татарбунари, вул. Центральна, буд.№25. Оренда – приміщення 2-го поверху площею 89,30 кв.м (В)
7 157.40 грн
80.15 грн / м2
Приміщення
Одеська обл., Білгород-Дністровський район, м. Татарбунари, вул. Центральна, буд.№25. Оренда – приміщення 2-го поверху площею 89,30 кв.м (В)
Україна, Одеська обл., Білгород-Дністровський район, м. Татарбунари, вул. Центральна, буд.№25
10.05.2024
Одеська обл., м. Білгород-Дністровський, вул. Першотравнева, буд.№70. Оренда – приміщення 2-го поверху площею 15,30 кв.м (В)
260.10 грн
17.00 грн / м2
Приміщення
Одеська обл., м. Білгород-Дністровський, вул. Першотравнева, буд.№70. Оренда – приміщення 2-го поверху площею 15,30 кв.м (В)
Україна, Одеська обл., м. Білгород-Дністровський, вул. Першотравнева, буд.№70
27.02.2024
Одеська обл., Березівський р-н, смт. Миколаївка, вул. Карпішина, 53. Оренда – приміщення 1-го поверху площею 18,90 кв.м (В)
283.50 грн
15.00 грн / м2
Приміщення
Одеська обл., Березівський р-н, смт. Миколаївка, вул. Карпішина, 53. Оренда – приміщення 1-го поверху площею 18,90 кв.м (В)
Україна, Одеська обл., Березівський р-н, смт. Миколаївка, вул. Карпішина, 53