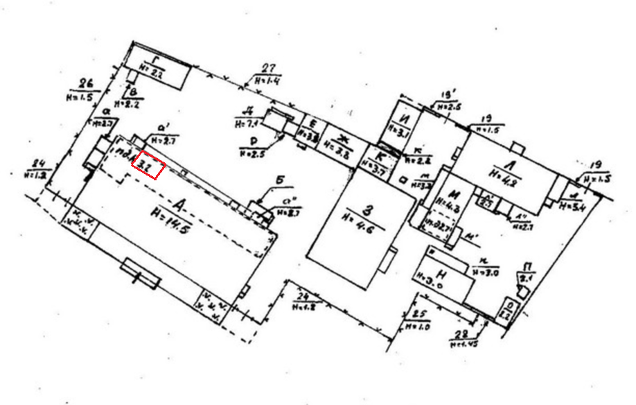
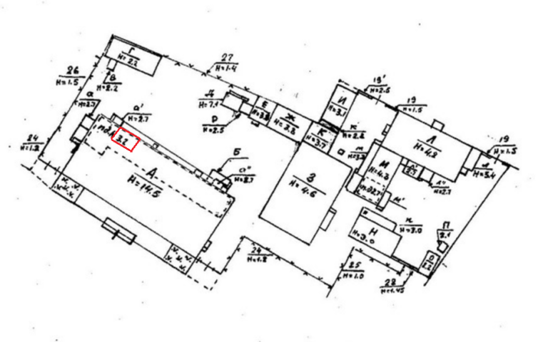
Одеська обл., Березівський р-н, смт. Миколаївка, вул. Карпішина, 53. Оренда – приміщення 1-го поверху площею 18,90 кв.м (В)

283.50 грн
15.00 грн / м2
Україна, Одеська обл., Березівський р-н, смт. Миколаївка, вул. Карпішина, 53
Перейти до аукціону на сайті
  • Інформація
  • Опис
  • Документи
Дата оголошення пропозиції:
27 січня 2024
Площа:
18.90 м2
Тип об’єкта:
Приміщення
Тип аукціону:
Англійський аукціон
Статус аукціону:
Аукціон не відбувся
Тип угоди:
Оренда
Розмір мінімального кроку:
20.00 ₴
Розмір гарантійного внеску:
170.10 ₴
Початок прийому пропозицій:
27.01.2024 21:05:26
Завершення прийому пропозицій:
26.02.2024 20:00:00
Проведення аукціону:
27.02.2024 12:15:00
Лот:
CLE001-UA-20240127-66637
№ лоту (УТК):
UTK150222_13P
Лот виставляється на торги (раз):
10
Стислий опис майна:
Пропонується до оренди приміщення 1-го поверху площею 18,90 кв.м. Об'єкт знаходиться у центрі селища. Приміщення забезпечені електропостачанням, теплопостачанням, санвузол загальний на поверсі, потребують косметичного ремонту. В приміщення вхід з двору. Високий пішохідний та автомобільний трафік. Характеристики: кількість поверхів будівлі – 3; площа будівлі – 1605,10 кв. м; Площа оренди – 18,90 кв. м; теплопостачання - електричне; водопостачання – водопровід; дозволена потужність – 3 кВт земельна ділянка – 0,4876 га
Адреса місцезнаходження майна:
Україна, Одеська обл., Березівський р-н, смт. Миколаївка, вул. Карпішина, 53
Схожі пропозиції
Одеська обл., м. Подільськ, вул. Соборна, буд.№72. Оренда – приміщення 2-го поверху площею 23,00 кв.м. (В)
792.12 грн
34.44 грн / м2
Приміщення
Одеська обл., м. Подільськ, вул. Соборна, буд.№72. Оренда – приміщення 2-го поверху площею 23,00 кв.м. (В)
Україна, Одеська обл., м. Подільськ, вул. Соборна, буд.№72
26.07.2024
Одеська обл., Білгород-Дністровський р-н, смт. Сарата, вул. Кр. Вернера, буд.№1/49 А. Оренда – приміщення будівлі загальною площею 33,40 кв.м (В)
801.60 грн
24.00 грн / м2
Приміщення
Одеська обл., Білгород-Дністровський р-н, смт. Сарата, вул. Кр. Вернера, буд.№1/49 А. Оренда – приміщення будівлі загальною площею 33,40 кв.м (В)
Україна, Одеська обл., Білгород-Дністровський р-н., смт. Сарата, вул. Кр. Вернера, буд.№1/49 А
24.12.2024
Одеська обл., Ізмаїльський р-н., смт. Кілія, вул.Миру, буд.56;   Оренда–приміщення 1-го поверху площею 130,2 кв.м. (В)
1 562.40 грн
12.00 грн / м2
Приміщення
Одеська обл., Ізмаїльський р-н., смт. Кілія, вул.Миру, буд.56; Оренда–приміщення 1-го поверху площею 130,2 кв.м. (В)
Україна, Одеська обл., Кілія, вул. Миру, буд. 56
07.03.2025
Одеська обл., Подільський р-н, смт. Саврань, вул. Миру, буд.66. Оренда – приміщення будівлі загальною площею 112,40 кв.м (В)
1 348.80 грн
12.00 грн / м2
Приміщення
Одеська обл., Подільський р-н, смт. Саврань, вул. Миру, буд.66. Оренда – приміщення будівлі загальною площею 112,40 кв.м (В)
Україна, Одеська обл., Подільський р-н, смт. Саврань, вул. Миру, буд.66
Переглянуті пропозиції
30.11.2023
м. Харків, просп. Олександрівський, 83. Оренда – приміщення 2-го поверху площею 117,1 кв.м. (В)
9 133.80 грн
78.00 грн / м2
Приміщення
м. Харків, просп. Олександрівський, 83. Оренда – приміщення 2-го поверху площею 117,1 кв.м. (В)
Україна, Харківська обл., м. Харків, просп. Олександрівський, 83