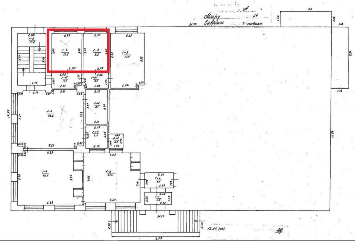
Одеська обл., Подільський р-н, смт. Саврань, вул. Миру, буд.64. Оренда – приміщення 1-го поверху площею 20,20 кв.м (В)

557.52 грн
27.60 грн / м2
Україна, Одеська обл., Подільський р-н, смт. Саврань, вул. Миру, буд.64
Перейти до аукціону на сайті
  • Інформація
  • Опис
  • Документи
Дата оголошення пропозиції:
15 вересня 2023
Площа:
20.20 м2
Тип об’єкта:
Приміщення
Тип аукціону:
Англійський аукціон
Статус аукціону:
Аукціон не відбувся
Тип угоди:
Оренда
Розмір мінімального кроку:
20.00 ₴
Розмір гарантійного внеску:
334.51 ₴
Початок прийому пропозицій:
15.09.2023 14:21:00
Завершення прийому пропозицій:
16.10.2023 20:00:00
Проведення аукціону:
17.10.2023 12:30:00
Лот:
CLE001-UA-20230915-04973
№ лоту (УТК):
UTK280423_04P
Лот виставляється на торги (раз):
5
Стислий опис майна:
Пропонуються до оренди приміщення 1-го поверху площею 20,20 кв.м. Об'єкт знаходиться у центрі селища. Приміщення сухі, вхід до приміщень загальний з двору у робочій час в робочі дні з 08.00 до 17.00. Приміщення потребують косметичного ремонту. Двір не асфальтований, заїзд до двору через ворота. Туалет загального користування у дворі. Характеристики: кількість поверхів будівлі – 2; загальна площа – 932,20 кв. м; площа, пропонована до оренди – 20,20 кв. м; електропостачання – до 5 кВт; опалення – не опалюється; водопостачання – відсутнє.
Адреса місцезнаходження майна:
Україна, Одеська обл., Подільський р-н, смт. Саврань, вул. Миру, буд.64
Схожі пропозиції
Одеська обл., м. Біляївка, вул. Отамана Головатого, 150. Оренда – приміщення 1го та 2го поверхів
2 795.52 грн
25.60 грн / м2
Приміщення
Одеська обл., м. Біляївка, вул. Отамана Головатого, 150. Оренда – приміщення 1го та 2го поверхів
Україна, Одеська обл., м. Біляївка, вул. Отамана Головатого, буд. 150
30.09.2022
Одеська обл., Одеський р-н., м. Біляївка, вул. Отамана Головатого, 150 А. Оренда – приміщення 1-го поверху загальною площею 59,30 кв.м. (В)
990.31 грн
16.70 грн / м2
Приміщення
Одеська обл., Одеський р-н., м. Біляївка, вул. Отамана Головатого, 150 А. Оренда – приміщення 1-го поверху загальною площею 59,30 кв.м. (В)
Україна, Одеська обл., Одеський р-н., м. Біляївка, вул. Отамана Головатого, 150 А
Одеська обл., м. Одеса, вул. 19 км Старокиївської дороги, буд. 33. Оренда – приміщення 2-го поверху площею 45,30 кв.м. (В)
1 817.44 грн
40.12 грн / м2
Приміщення
Одеська обл., м. Одеса, вул. 19 км Старокиївської дороги, буд. 33. Оренда – приміщення 2-го поверху площею 45,30 кв.м. (В)
Україна, Одеська обл., м. Одеса, вул. 19 км Старокиївської дороги, буд. 33
07.03.2025
Одеська обл., м. Одеса, вул. Катерининська, 37. Оренда – приміщення 5-го поверху загальною площею 215,90 кв.м. (В)
53 975.00 грн
250.00 грн / м2
Приміщення
Одеська обл., м. Одеса, вул. Катерининська, 37. Оренда – приміщення 5-го поверху загальною площею 215,90 кв.м. (В)
Україна, Одеська обл., м. Одеса, вул. Катерининська, 37