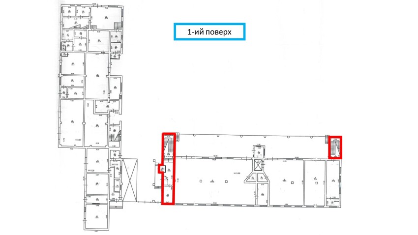
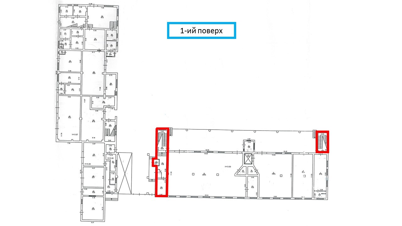
Івано-Франківська обл., м. Івано-Франківськ, вул. Ребета, 2. Оренда – Приміщення 2-го та 3-го поверху адміністративно-складської будівлі, площею 1518,3 кв.м. (В)

90 642.51 грн
59.70 грн / м2
Україна, Івано-Франківська обл., Івано-Франківськ, вулиця Ребета, 2
Перейти до аукціону на сайті
  • Інформація
  • Опис
  • Документи
Дата оголошення пропозиції:
19 вересня 2023
Площа:
1518.30 м2
Тип об’єкта:
Приміщення
Тип аукціону:
Англійський аукціон
Статус аукціону:
Аукціон не відбувся
Тип угоди:
Оренда
Розмір мінімального кроку:
1 000.00 ₴
Розмір гарантійного внеску:
54 385.51 ₴
Початок прийому пропозицій:
19.09.2023 21:17:48
Завершення прийому пропозицій:
19.10.2023 20:00:00
Проведення аукціону:
20.10.2023 11:10:00
Лот:
CLE001-UA-20230919-14906
№ лоту (УТК):
UTK060721_12Т
Лот виставляється на торги (раз):
10
Стислий опис майна:
Пропонуються до оренди приміщення 2-го та 3-го поверху адміністративно-складської будівлі, площею 1518,3 кв.м. Будівля знаходиться на околиці міста в промисловій зоні, розвинена інфраструктура, поруч склади, товарні бази, виробничі цехи. Приміщення можуть використовуватись під склад, виробництво, тощо. • кількість поверхів – 3; • опалення газове; • земельна ділянка – 0,6744 га (договір оренди)
Адреса місцезнаходження майна:
Україна, Івано-Франківська обл., Івано-Франківськ, вулиця Ребета, 2
Схожі пропозиції
Івано-Франківська обл., Косівський р-н., смт. Яблунів, вул. Шевченка, 58. Оренда – приміщення 1-го поверху та складу, площею 74,10 кв.м. (В)
1 867.32 грн
25.20 грн / м2
Приміщення
Івано-Франківська обл., Косівський р-н., смт. Яблунів, вул. Шевченка, 58. Оренда – приміщення 1-го поверху та складу, площею 74,10 кв.м. (В)
Україна, Івано-Франківська обл., Косівський р-н., смт. Яблунів, вул. Шевченка, 58
Івано-Франківська обл., Коломийський р-н, смт.Заболотів, вул.Грушевського, 5. Оренда – Приміщення 2-го поверху, площею 304,1 м.кв. (В)
13 462.51 грн
44.27 грн / м2
Приміщення
Івано-Франківська обл., Коломийський р-н, смт.Заболотів, вул.Грушевського, 5. Оренда – Приміщення 2-го поверху, площею 304,1 м.кв. (В)
Україна, Івано-Франківська обл., Коломийський р-н, смт.Заболотів, вул.Грушевського, 5
Івано-Франківська обл., смт. Рожнятів, площа Єдності, 9. Оренда – Приміщення 3-го поверху 109,6 кв.м.
874.61 грн
7.98 грн / м2
Приміщення
Івано-Франківська обл., смт. Рожнятів, площа Єдності, 9. Оренда – Приміщення 3-го поверху 109,6 кв.м.
Україна, Івано-Франківська обл., смт. Рожнятів, площа Єдності, 9
03.03.2023
Івано-Франківська обл., Івано-Франківський р-н, с.Росільна, вул. Шевченка, 145а. Оренда – Нежитлове приміщення І-го поверху, площею 33,4 м.кв. (В)
500.33 грн
14.98 грн / м2
Приміщення
Івано-Франківська обл., Івано-Франківський р-н, с.Росільна, вул. Шевченка, 145а. Оренда – Нежитлове приміщення І-го поверху, площею 33,4 м.кв. (В)
Україна, Івано-Франківська обл., Івано-Франківський р-н, с.Росільна, вул. Шевченка, 145а