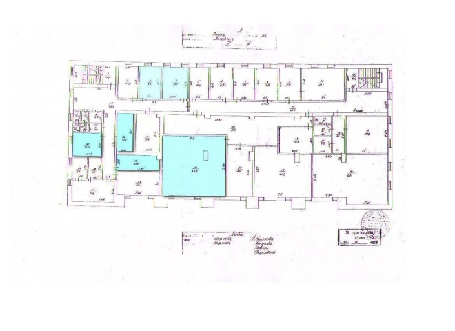
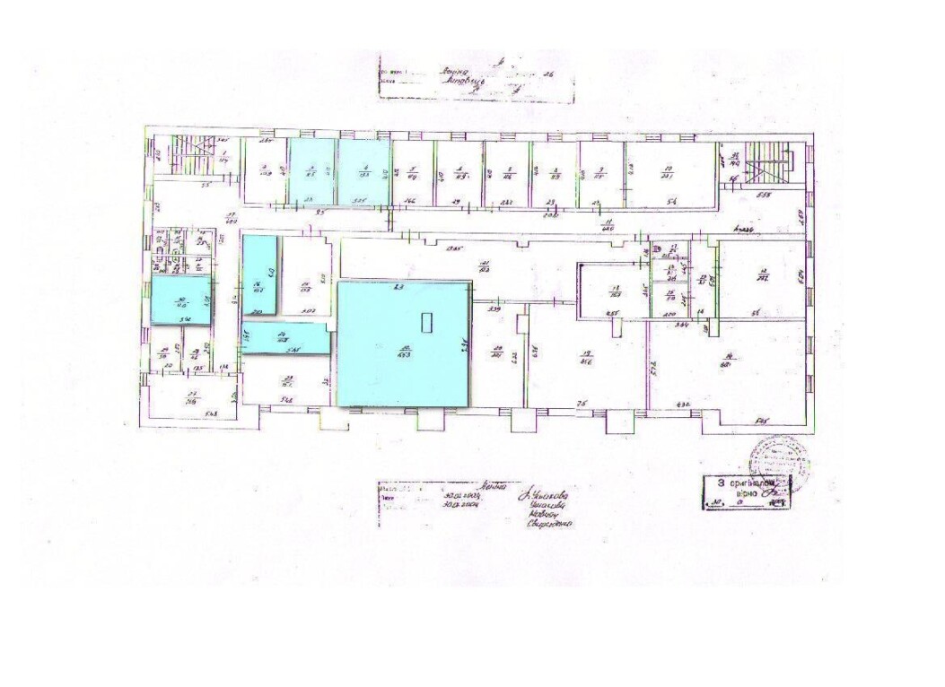
Вінницька обл., Вінницький р-н., м. Липовець, вул. В. Липківського, 26. Оренда – Приміщення 3-го поверху площею 123,7 кв.м.(В)

629.63 грн
5.09 грн / м2
Україна, Вінницька обл., Липовець, вулиця Василя Липківського, 26
Перейти до аукціону на сайті
  • Інформація
  • Опис
  • Документи
Дата оголошення пропозиції:
25 вересня 2023
Площа:
123.70 м2
Тип об’єкта:
Приміщення
Тип аукціону:
Англійський аукціон
Статус аукціону:
Аукціон не відбувся
Тип угоди:
Оренда
Розмір мінімального кроку:
10.00 ₴
Розмір гарантійного внеску:
377.78 ₴
Початок прийому пропозицій:
25.09.2023 13:54:08
Завершення прийому пропозицій:
25.10.2023 20:00:00
Проведення аукціону:
26.10.2023 11:45:00
Лот:
CLE001-UA-20230925-34715
№ лоту (УТК):
UTK070721_15Т
Лот виставляється на торги (раз):
10
Стислий опис майна:
До оренди пропонуються приміщення 3го поверху площею 123,7 кв.м. Будівля знаходиться в центральній частині м. Липовець, поруч Липовецька міська рада, ринок та торговельні заклади. Віддаленість від магістрального шосе та зупинки громадського транспорту орієнтовно 200 м. Характеристики - Кількість поверхів –3; - Електропостачання; - Відсутня візуалізація входу.
Адреса місцезнаходження майна:
Україна, Вінницька обл., Липовець, вулиця Василя Липківського, 26
Схожі пропозиції
23.07.2024
Вінницька обл., м.Вінниця, вул.Соборна, 8;   Оренда – приміщення підвалу будівлі ЛТУ-3, площею 88,4 кв.м. (В)
4 190.16 грн
47.40 грн / м2
Приміщення
Вінницька обл., м.Вінниця, вул.Соборна, 8; Оренда – приміщення підвалу будівлі ЛТУ-3, площею 88,4 кв.м. (В)
Україна, Вінницька обл., Вінниця, вулиця Соборна, 8
31.03.2023
Вінницька обл., Хмільницький р-н, м. Козятин, вул. Незалежності 39. Оренда – приміщення 3-го поверху площею 288,4 кв.м. (В)
3 896.28 грн
13.51 грн / м2
Приміщення
Вінницька обл., Хмільницький р-н, м. Козятин, вул. Незалежності 39. Оренда – приміщення 3-го поверху площею 288,4 кв.м. (В)
Україна, Вінницька обл., Козятин, вул. Незалежності 39
Вінницька обл., м. Козятин, вул. 8-ма Гвардійська 9/2. Оренда приміщень будівлі
391.50 грн
12.67 грн / м2
Приміщення
Вінницька обл., м. Козятин, вул. 8-ма Гвардійська 9/2. Оренда приміщень будівлі
Україна, Вінницька обл., м. Козятин, вул. 8-ма Гвардійська 9/2
18.08.2022
Вінницька обл., смт. Томашпіль, вул. Криворучка, 1. Оренда – приміщення 3 поверху площею 248,20 кв.м. (В)
1 521.47 грн
6.13 грн / м2
Приміщення
Вінницька обл., смт. Томашпіль, вул. Криворучка, 1. Оренда – приміщення 3 поверху площею 248,20 кв.м. (В)
Україна, Вінницька обл., Томашпіль, вул. Криворучка, 1
Переглянуті пропозиції
03.04.2024
Львівська обл., м. Городок, вул. Львівська, 16. Оренда – приміщення 3-го поверху площею 161,40 кв.м. (В)
823.14 грн
5.10 грн / м2
Приміщення
Львівська обл., м. Городок, вул. Львівська, 16. Оренда – приміщення 3-го поверху площею 161,40 кв.м. (В)
Україна, Львівська обл., м. Городок, вул. Львівська, 16
Полтавська обл., Лубенський р-н, с. Засулля, вул. Молодіжна, буд.20. Оренда – двоповерхова будівля площею 368,90 кв.м. (В)
5 577.77 грн
15.12 грн / м2
Будівля
Полтавська обл., Лубенський р-н, с. Засулля, вул. Молодіжна, буд.20. Оренда – двоповерхова будівля площею 368,90 кв.м. (В)
Україна, Полтавська обл., Лубенський р-н, с. Засулля, вул. Молодіжна, буд.20
Івано-Франківська обл., Надвірнянський р-н, м. Надвірна, вул. Мазепи, 1. Оренда – приміщення 5-го поверху, площею 249,8 м.кв (В)
5 805.35 грн
23.24 грн / м2
Приміщення
Івано-Франківська обл., Надвірнянський р-н, м. Надвірна, вул. Мазепи, 1. Оренда – приміщення 5-го поверху, площею 249,8 м.кв (В)
Україна, Івано-Франківська обл., м. Надвірна, вул. Мазепи, 1