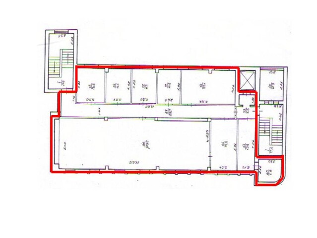
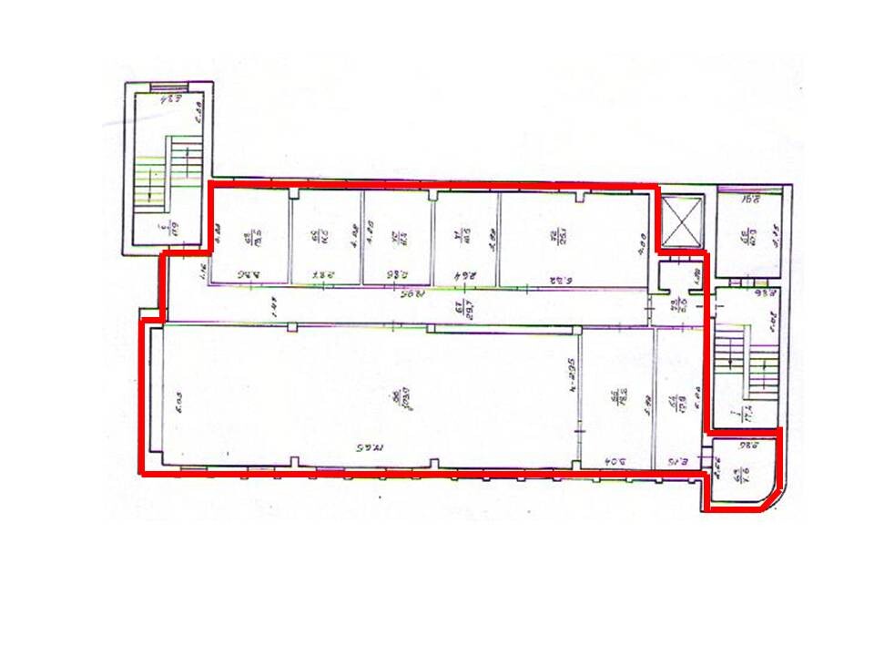
Івано-Франківська обл., Надвірнянський р-н, м. Надвірна, вул. Мазепи, 1. Оренда – приміщення 5-го поверху, площею 249,8 м.кв (В)

5 805.35 грн
23.24 грн / м2
Україна, Івано-Франківська обл., м. Надвірна, вул. Мазепи, 1
Перейти до аукціону на сайті
  • Інформація
  • Опис
  • Документи
Дата оголошення пропозиції:
08 вересня 2021
Площа:
249.80 м2
Тип об’єкта:
Приміщення
Тип аукціону:
Англійський аукціон
Статус аукціону:
Аукціон не відбувся
Тип угоди:
Оренда
Розмір мінімального кроку:
300.00 ₴
Розмір гарантійного внеску:
3 483.21 ₴
Початок прийому пропозицій:
08.09.2021 15:19:41
Завершення прийому пропозицій:
06.10.2021 20:00:00
Лот:
UA-PS-2021-09-08-000024-1
№ лоту (УТК):
UTK160621_06С
Лот виставляється на торги (раз):
5
Стислий опис майна:
Пропонуються до оренди приміщення 5-го поверху. Будівля знаходиться в центральній частині міста, розвинена інфраструктура, високий пішохідний потік. Характеристики кількість поверхів – 5 опалення газове; земельна ділянка – 0,3877 га
Адреса місцезнаходження майна:
Україна, Івано-Франківська обл., м. Надвірна, вул. Мазепи, 1
Схожі пропозиції
08.10.2025
м. Івано-Франківськ, вул. Довга, 58. Оренда – приміщення підвалу виробничого будинку, площею 57,6 кв.м. (В)
4 298.11 грн
74.62 грн / м2
Приміщення
м. Івано-Франківськ, вул. Довга, 58. Оренда – приміщення підвалу виробничого будинку, площею 57,6 кв.м. (В)
Україна, Івано-Франківська обл., м. Івано-Франківськ, вул. Довга, 58
Івано-Франківська обл., Калуський район, смт.Рожнятів, площа Єдності, 9, оренда – Приміщення 3-го поверху площею 109,6 м.кв. (В)
500.87 грн
4.57 грн / м2
Приміщення
Івано-Франківська обл., Калуський район, смт.Рожнятів, площа Єдності, 9, оренда – Приміщення 3-го поверху площею 109,6 м.кв. (В)
Україна, Івано-Франківська обл., Рожнятів, площа Єдності, 9
17.03.2023
Івано-Франківська обл., Калуський район, смт. Рожнятів, площа Єдності, 9, оренда – Приміщення 3-го поверху площею 100,8 м.кв. (В)
1 257.98 грн
12.48 грн / м2
Приміщення
Івано-Франківська обл., Калуський район, смт. Рожнятів, площа Єдності, 9, оренда – Приміщення 3-го поверху площею 100,8 м.кв. (В)
Україна, Івано-Франківська обл., смт. Рожнятів, площа Єдності, 9
21.06.2023
Івано-Франківська обл., Калуський район, смт. Рожнятів, площа Єдності, 9, оренда – Приміщення 3-го поверху площею 109,6 м.кв. (В)
500.87 грн
4.57 грн / м2
Приміщення
Івано-Франківська обл., Калуський район, смт. Рожнятів, площа Єдності, 9, оренда – Приміщення 3-го поверху площею 109,6 м.кв. (В)
Україна, Івано-Франківська обл., Рожнятів, площа Єдності, 9
Переглянуті пропозиції
25.10.2023
м.Харків, вул. Старошишківська, 5а. Оренда – приміщення четвертого поверху площею 454,40 кв.м (П)
35 352.32 грн
77.80 грн / м2
Приміщення
м.Харків, вул. Старошишківська, 5а. Оренда – приміщення четвертого поверху площею 454,40 кв.м (П)
Україна, Харківська обл., м.Харків, вул. Старошишківська, 5а
м. Київ, вул. Н. Ужвій, 1, Оренда – приміщення 2-го поверху площею 215,40 кв.м. (В)
19 722.02 грн
91.56 грн / м2
Приміщення
м. Київ, вул. Н. Ужвій, 1, Оренда – приміщення 2-го поверху площею 215,40 кв.м. (В)
Україна, м.Київ, Київ, вул. Н. Ужвій 1
23.03.2023
Рівненська обл., Рівненський р-н, с.Тучин, вул.Поштова, 4. Оренда – виробничі приміщення загальною площею 243,1 кв.м. (В)
3 882.31 грн
15.97 грн / м2
Приміщення
Рівненська обл., Рівненський р-н, с.Тучин, вул.Поштова, 4. Оренда – виробничі приміщення загальною площею 243,1 кв.м. (В)
Україна, Рівненська обл., Рівненський р-н, с.Тучин, вул.Поштова, 4
Сумська обл., смт. Недригайлів, вул. Шевченка, 62. Оренда – частина приміщення з погребом та гаражем площею 140,9 кв.м. (В)
1 545.67 грн
10.97 грн / м2
Приміщення
Сумська обл., смт. Недригайлів, вул. Шевченка, 62. Оренда – частина приміщення з погребом та гаражем площею 140,9 кв.м. (В)
Україна, Сумська обл., смт. Недригайлів, вул. Шевченка, 62