Івано-Франківська обл., Калуський район, смт. Рожнятів, площа Єдності, 9, оренда – Приміщення 3-го поверху площею 100,8 м.кв. (В)

1 257.98 грн
12.48 грн / м2
Україна, Івано-Франківська обл., смт. Рожнятів, площа Єдності, 9
Перейти до аукціону на сайті
  • Інформація
  • Опис
  • Документи
Дата оголошення пропозиції:
15 лютого 2023
Площа:
100.80 м2
Тип об’єкта:
Приміщення
Тип аукціону:
Англійський аукціон
Статус аукціону:
Аукціон не відбувся
Тип угоди:
Оренда
Розмір мінімального кроку:
100.00 ₴
Розмір гарантійного внеску:
754.79 ₴
Початок прийому пропозицій:
15.02.2023 16:24:00
Завершення прийому пропозицій:
16.03.2023 20:00:00
Проведення аукціону:
17.03.2023 12:10:00
Лот:
CLE001-UA-20230215-55245
№ лоту (УТК):
UTK080721_11Т
Лот виставляється на торги (раз):
10
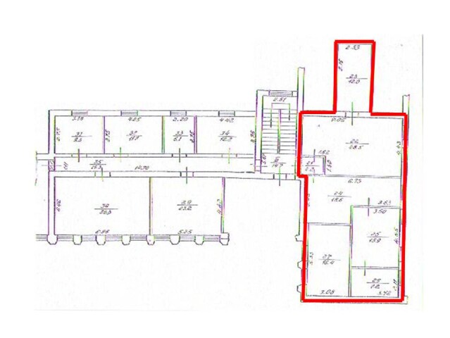
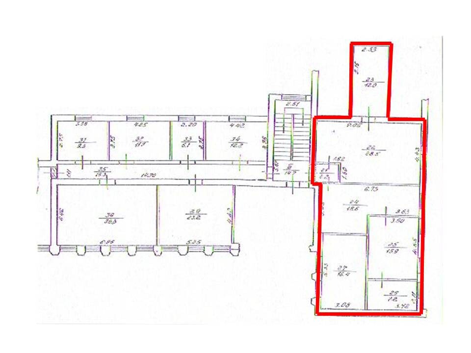
Стислий опис майна:
Пропонуються до оренди приміщення 3-го поверху площею 100,8 м.кв.. Будівля знаходиться в центральній частині населеного пункту. Високі пішохідний та транспортний потоки. Характеристики кількість поверхів – 3 опалення газове земельна ділянка – 0,1126 га (договір оренди)
Адреса місцезнаходження майна:
Україна, Івано-Франківська обл., смт. Рожнятів, площа Єдності, 9
Схожі пропозиції
30.09.2022
Івано-Франківська обл., м. Івано-Франківськ, вул. В.Симоненка, 1. Оренда – приміщення цокольного поверху, площею 250,7 м.кв. (В)
12 885.98 грн
51.40 грн / м2
Приміщення
Івано-Франківська обл., м. Івано-Франківськ, вул. В.Симоненка, 1. Оренда – приміщення цокольного поверху, площею 250,7 м.кв. (В)
Україна, Івано-Франківська обл., м. Івано-Франківськ, вул. В.Симоненка, 1
Івано-Франківська обл., м. Рогатин, вул. Галицька, 73. Оренда – Приміщення 2-го поверху площею 46,5 кв.м.(В)
246.45 грн
5.30 грн / м2
Приміщення
Івано-Франківська обл., м. Рогатин, вул. Галицька, 73. Оренда – Приміщення 2-го поверху площею 46,5 кв.м.(В)
Україна, Івано-Франківська обл., Рогатин, вул. Галицька, 73
28.12.2023
м. Івано-Франківськ, вул. Довга, 58;   Оренда – приміщення підвалу виробничого будинку, площею 57,6 кв.м. (В)
4 298.11 грн
74.62 грн / м2
Приміщення
м. Івано-Франківськ, вул. Довга, 58; Оренда – приміщення підвалу виробничого будинку, площею 57,6 кв.м. (В)
Україна, Івано-Франківська обл., м. Івано-Франківськ, вулиця Довга, 58
04.11.2022
Івано-Франківська обл., м. Івано-Франківськ, вул. Ребета, 2. Оренда – приміщення складу площею 36,5 кв.м. (В)
2 367.39 грн
64.86 грн / м2
Приміщення
Івано-Франківська обл., м. Івано-Франківськ, вул. Ребета, 2. Оренда – приміщення складу площею 36,5 кв.м. (В)
Україна, Івано-Франківська обл., Івано-Франківськ, вулиця Ребета, 2
Переглянуті пропозиції
06.04.2023
м. Київ, вул. Ореста Васкула (Феодори Пушиної), 27-А. Оренда – приміщення 3-го поверху, площею 34,5 кв.м. (В)
7 160.13 грн
207.54 грн / м2
Приміщення
м. Київ, вул. Ореста Васкула (Феодори Пушиної), 27-А. Оренда – приміщення 3-го поверху, площею 34,5 кв.м. (В)
Україна, м.Київ, м. Київ, вулиця Ореста Васкула, 27
м. Київ, вул. Феодори Пушиної, 27-А, оренда – приміщення 3-го поверху, площею 7,50 кв.м. (В)
1 630.65 грн
217.42 грн / м2
Приміщення
м. Київ, вул. Феодори Пушиної, 27-А, оренда – приміщення 3-го поверху, площею 7,50 кв.м. (В)
Україна, м.Київ, Київ, вул. Феодори Пушиної, 27
Рівненська обл., м. Рівне, вул. Міцкевича, 2. Оренда – приміщення 2-го поверху
2 468.88 грн
60.96 грн / м2
Приміщення
Рівненська обл., м. Рівне, вул. Міцкевича, 2. Оренда – приміщення 2-го поверху
Україна, Рівненська обл., м. Рівне, вул. Міцкевича, 2
19.09.2023
Вінницька обл., Вінницький р_н, смт. Тиврів, вул. Тиверська, 55. Оренда – приміщення 1го поверху площею 22,4 кв.м. (В)
268.80 грн
12.00 грн / м2
Приміщення
Вінницька обл., Вінницький р_н, смт. Тиврів, вул. Тиверська, 55. Оренда – приміщення 1го поверху площею 22,4 кв.м. (В)
Україна, Вінницька обл., Вінницький р_н, смт. Тиврів, вул. Тиверська, 55