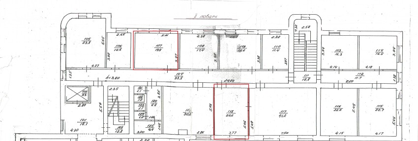
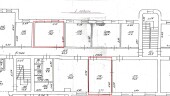
Рівненська обл., м. Рівне, вул. Міцкевича, 2. Оренда – приміщення 2-го поверху

2 468.88 грн
60.96 грн / м2
Україна, Рівненська обл., м. Рівне, вул. Міцкевича, 2
Перейти до аукціону на сайті
  • Інформація
  • Опис
  • Документи
Дата оголошення пропозиції:
21 квітня 2020
Площа:
40.50 м2
Тип об’єкта:
Приміщення
Тип аукціону:
Англійський аукціон
Статус аукціону:
Аукціон не відбувся
Тип угоди:
Оренда
Розмір мінімального кроку:
200.00 ₴
Розмір гарантійного внеску:
1 481.33 ₴
Початок прийому пропозицій:
21.04.2020 16:41:31
Завершення прийому пропозицій:
20.05.2020 20:00:00
Лот:
UA-PS-2020-04-21-000015-2
№ лоту (УТК):
UTK190320_12
Лот виставляється на торги (раз):
2
Стислий опис майна:
Пропонуються до оренди приміщення 2-го поверху. Будівля знаходиться в центральній частині міста, розвинена інфраструктура, високі автомобільний та пішохідний потоки. Поруч знаходиться автомобільна стоянка, відділення «Нової пошти». Привабливе місце для розміщення офісу, дитячої студії , освітніх курсів.
Адреса місцезнаходження майна:
Україна, Рівненська обл., м. Рівне, вул. Міцкевича, 2
Схожі пропозиції
26.07.2023
Рівненська обл., м. Рівне, вул. Дубенська, 44б. Оренда – приміщення 1-го поверху одноповерхової будівлі площею 65,1 кв.м. (В)
7 575.04 грн
116.36 грн / м2
Приміщення
Рівненська обл., м. Рівне, вул. Дубенська, 44б. Оренда – приміщення 1-го поверху одноповерхової будівлі площею 65,1 кв.м. (В)
Україна, Рівненська обл., м. Рівне, вул. Дубенська, 44б
02.08.2023
Рівненська обл., Рівненський р-н, с. Здовбиця, вул. Шосова, 107. Оренда – нежитлові приміщення площею 80,3 м. кв. (В)
1 388.39 грн
17.29 грн / м2
Приміщення
Рівненська обл., Рівненський р-н, с. Здовбиця, вул. Шосова, 107. Оренда – нежитлові приміщення площею 80,3 м. кв. (В)
Україна, Рівненська обл., Рівненський р-н, с. Здовбиця, вул. Шосова, 107
Рівненська обл., м. Сарни, Широка 33 Оренда приміщення 1 пов.
758.16 грн
23.40 грн / м2
Приміщення
Рівненська обл., м. Сарни, Широка 33 Оренда приміщення 1 пов.
Україна, Рівненська обл., м. Сарни, вул. Широка, буд. 33
17.03.2023
Рівненська обл., Вараський р-н. смт. Зарічне, вул. Центральна, 6а. Оренда – приміщення 2-го поверху площею 68,4 кв.м. (В)
1 280.45 грн
18.72 грн / м2
Приміщення
Рівненська обл., Вараський р-н. смт. Зарічне, вул. Центральна, 6а. Оренда – приміщення 2-го поверху площею 68,4 кв.м. (В)
Україна, Рівненська обл., Зарічне, вулиця Центральна, 6а
Переглянуті пропозиції
19.09.2023
Вінницька обл., Вінницький р_н, смт. Тиврів, вул. Тиверська, 55. Оренда – приміщення 1го поверху площею 22,4 кв.м. (В)
268.80 грн
12.00 грн / м2
Приміщення
Вінницька обл., Вінницький р_н, смт. Тиврів, вул. Тиверська, 55. Оренда – приміщення 1го поверху площею 22,4 кв.м. (В)
Україна, Вінницька обл., Вінницький р_н, смт. Тиврів, вул. Тиверська, 55