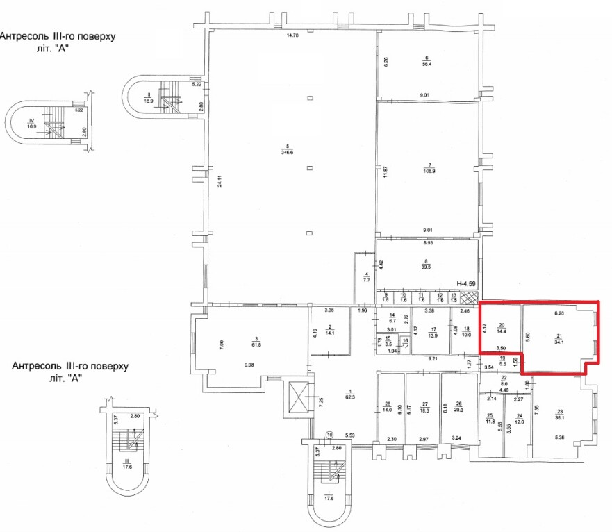
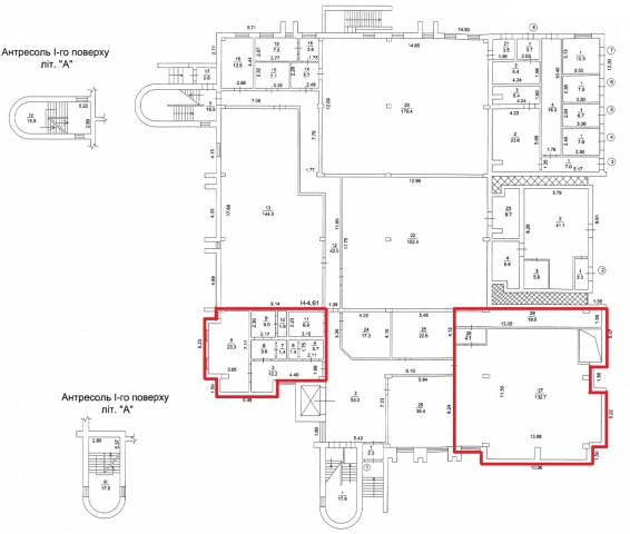
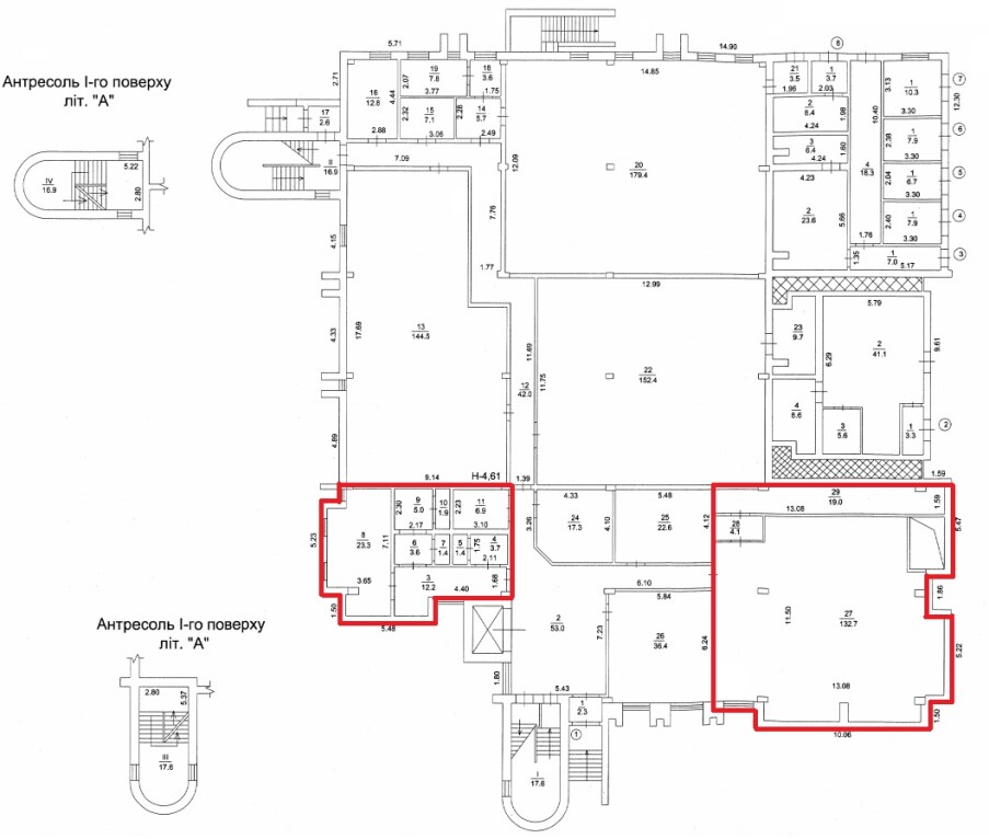
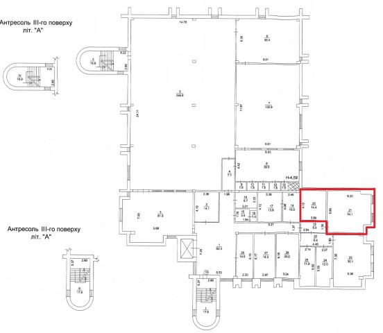
м. Київ, вул. Архітектора Вербицького, 3. Оренда – приміщення 1-го та 3-го поверху площею 263,7 кв.м. (В)

25 251.91 грн
95.76 грн / м2
Україна, м.Київ, Київ, вулиця Архітектора Вербицького, 3
Перейти до аукціону на сайті
  • Інформація
  • Опис
  • Документи
Дата оголошення пропозиції:
25 вересня 2023
Площа:
263.70 м2
Тип об’єкта:
Приміщення
Тип аукціону:
Англійський аукціон
Статус аукціону:
Аукціон не відбувся
Тип угоди:
Оренда
Розмір мінімального кроку:
260.00 ₴
Розмір гарантійного внеску:
15 151.15 ₴
Початок прийому пропозицій:
25.09.2023 20:15:39
Завершення прийому пропозицій:
25.10.2023 20:00:00
Проведення аукціону:
26.10.2023 12:55:00
Лот:
CLE001-UA-20230925-71508
№ лоту (УТК):
UTK181122_01T
Лот виставляється на торги (раз):
9
Стислий опис майна:
Пропонується до оренди приміщення 1-го та 3-го поверху площею 263,7 кв.м . Будівля знаходиться в Дарницькому районі міста Києва, житловий масив Харківський. Зупинки маршрутного транспорту, супермаркети, торгово-розважальні центри. Найближчі станції метро «Харківська», «Вирлиця». Вхід з двору. Характеристики: • загальна площа будівлі – 4804,7 м2 ; • кількість поверхів – 5; • опалення централізоване (міське); • земельна ділянка – 0,5530 га; • каналізація, водозабезпечення, сан. вузол – присутні
Адреса місцезнаходження майна:
Україна, м.Київ, Київ, вулиця Архітектора Вербицького, 3
Схожі пропозиції
05.12.2023
м. Київ, вул. Будівельників, 8-Б;   Оренда – приміщення підвалу, площею 452,6 кв.м. (В)
42 300.00 грн
93.46 грн / м2
Приміщення
м. Київ, вул. Будівельників, 8-Б; Оренда – приміщення підвалу, площею 452,6 кв.м. (В)
Україна, м.Київ, Київ, вулиця Будівельників, 8Б
22.03.2023
ДОВГОСТРОКОВА ОРЕНДА! м. Київ, вул. Ісаакяна, 3. Оренда – Приміщення 3-го поверху площею 501,5 кв.м. (В)
75 957.19 грн
151.46 грн / м2
Приміщення
ДОВГОСТРОКОВА ОРЕНДА! м. Київ, вул. Ісаакяна, 3. Оренда – Приміщення 3-го поверху площею 501,5 кв.м. (В)
Україна, м.Київ, Київ, вулиця Ісаакяна, 3
19.05.2023
м. Київ, вул. Ореста Васкула (Феодори Пушиної), 27. Оренда – приміщення 3-го поверху, площею 7,5 кв.м (В)
1 556.55 грн
207.54 грн / м2
Приміщення
м. Київ, вул. Ореста Васкула (Феодори Пушиної), 27. Оренда – приміщення 3-го поверху, площею 7,5 кв.м (В)
Україна, м.Київ, м. Київ, вул. Ореста Васкула (Феодори Пушиної), 27
Переглянуті пропозиції
Сумська обл., м. Шостка, вул. Озерна, 39-А. Оренда частини будівлі
1 290.00 грн
10.75 грн / м2
Будівля
Сумська обл., м. Шостка, вул. Озерна, 39-А. Оренда частини будівлі
Україна, Сумська обл., м. Шостка, вул. Озерна, 39-А
08.08.2023
ДОВГОСТРОКОВА ОРЕНДА! Дніпропетровська обл., м. Дніпро, бульвар Рубіновий, буд.18. Оренда – будівля площею 3 932,40 кв.м (В)
186 395.76 грн
47.40 грн / м2
Будівля
ДОВГОСТРОКОВА ОРЕНДА! Дніпропетровська обл., м. Дніпро, бульвар Рубіновий, буд.18. Оренда – будівля площею 3 932,40 кв.м (В)
Україна, Дніпропетровська обл., м. Дніпро, бульвар Рубіновий, буд.18
23.04.2024
Полтавська обл., Кременчуцький р-н, м. Горішні Плавні, вулиця Миру, 18. Оренда – приміщення 3-го поверху площею 15,90 кв.м. (В)
508.80 грн
32.00 грн / м2
Приміщення
Полтавська обл., Кременчуцький р-н, м. Горішні Плавні, вулиця Миру, 18. Оренда – приміщення 3-го поверху площею 15,90 кв.м. (В)
Україна, Полтавська обл., Кременчуцький р-н, м. Горішні Плавні, вулиця Миру, 18
Харківська обл., м. Харків, вул. Нетіченська набережна, 8. Оренда – приміщення восьмого поверху, площею 125,1 кв.м. (В)
6 755.40 грн
54.00 грн / м2
Приміщення
Харківська обл., м. Харків, вул. Нетіченська набережна, 8. Оренда – приміщення восьмого поверху, площею 125,1 кв.м. (В)
Україна, Харківська обл., м. Харків, вул. Нетіченська набережна, 8