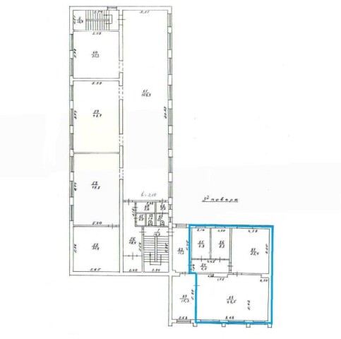
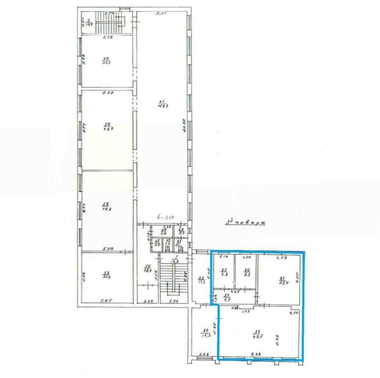
Львівська обл., м. Яворів, вул. Львівська, 10.Оренда – приміщення 3-го поверху площею 97,00 кв. м (В)

8 864.83 грн
91.39 грн / м2
Україна, Львівська обл., м. Яворів, вул. Львівська, 10
Перейти до аукціону на сайті
  • Інформація
  • Опис
  • Документи
Дата оголошення пропозиції:
16 жовтня 2023
Площа:
97.00 м2
Тип об’єкта:
Приміщення
Тип аукціону:
Англійський аукціон
Статус аукціону:
Аукціон не відбувся
Тип угоди:
Оренда
Розмір мінімального кроку:
100.00 ₴
Розмір гарантійного внеску:
5 318.90 ₴
Початок прийому пропозицій:
16.10.2023 15:34:01
Завершення прийому пропозицій:
15.11.2023 20:00:00
Проведення аукціону:
16.11.2023 11:00:00
Лот:
CLE001-UA-20231016-88561
№ лоту (УТК):
UTK161023_30P
Лот виставляється на торги (раз):
1
Стислий опис майна:
Пропонуються до оренди приміщення 3-го поверху площею 97,00 кв. м. Будівля знаходиться у центральній частині міста, в районі з розвиненою інфраструктурою і відмінною транспортною розв’язкою. Стан приміщень задовільний. Характеристики: кількість поверхів – 3 водопостачання, електропостачання, каналізаційна мережа Опалення (газ) Вільне до споживання електропостачання – 10 кВт земельна ділянка – 0,38 га (податок)
Адреса місцезнаходження майна:
Україна, Львівська обл., м. Яворів, вул. Львівська, 10
Схожі пропозиції
04.02.2025
Львівська обл. м. Дрогобич, вул. Д. Галицького, 21;    Оренда – приміщення першого поверху площею 86,40 кв. м (В)
5 723.14 грн
66.24 грн / м2
Приміщення
Львівська обл. м. Дрогобич, вул. Д. Галицького, 21; Оренда – приміщення першого поверху площею 86,40 кв. м (В)
Україна, Львівська обл., м.Дрогобич, вулиця Данила Галицького, 21
05.07.2023
Львівська обл., м. Стрий, вул. Поштова, 5. Оренда – приміщення 1-го поверху площею 28,90 кв.м. (В)
1 675.04 грн
57.96 грн / м2
Приміщення
Львівська обл., м. Стрий, вул. Поштова, 5. Оренда – приміщення 1-го поверху площею 28,90 кв.м. (В)
Україна, Львівська обл., м. Стрий, вул. Поштова, 5
01.11.2023
Львівська обл. м. Радехів, вул. Львівська, 24. Оренда – приміщення 2- го поверху площею 105,20 кв.м. (В)
1 256.09 грн
11.94 грн / м2
Приміщення
Львівська обл. м. Радехів, вул. Львівська, 24. Оренда – приміщення 2- го поверху площею 105,20 кв.м. (В)
Україна, Львівська обл., м. Радехів, вул. Львівська, 24
16.01.2024
Львівська обл., м. Дрогобич, вул. Д.Галицького, 21. Оренда – приміщення 2-го поверху площею 83,40 кв. м (В)
1 401.12 грн
16.80 грн / м2
Приміщення
Львівська обл., м. Дрогобич, вул. Д.Галицького, 21. Оренда – приміщення 2-го поверху площею 83,40 кв. м (В)
Україна, Львівська обл., м. Дрогобич, ул. Д.Галицького, 21
Переглянуті пропозиції
26.11.2025
Сумська обл., м. Суми, вул. Івана Сірка, буд. 9. Оренда – частина 3-го поверху нежитлової будівлі площею 134,30 кв. м. (В)
4 029.00 грн
30.00 грн / м2
Будівля
Сумська обл., м. Суми, вул. Івана Сірка, буд. 9. Оренда – частина 3-го поверху нежитлової будівлі площею 134,30 кв. м. (В)
Україна, Сумська обл., м. Суми, вул. Івана Сірка, буд. 9