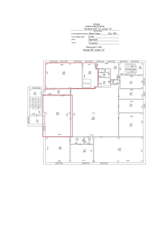
Сумська обл., м. Суми, вул. Івана Сірка, буд. 9. Оренда – частина 3-го поверху нежитлової будівлі площею 134,30 кв. м. (В)

4 029.00 грн
30.00 грн / м2
Україна, Сумська обл., м. Суми, вул. Івана Сірка, буд. 9
Перейти до аукціону на сайті
  • Інформація
  • Опис
  • Документи
Дата оголошення пропозиції:
24 жовтня 2025
Площа:
134.30 м2
Тип об’єкта:
Будівля
Тип аукціону:
Англійський аукціон
Статус аукціону:
Прийняття заяв на участь
Тип угоди:
Оренда
Розмір мінімального кроку:
200.00 ₴
Розмір гарантійного внеску:
2 417.40 ₴
Початок прийому пропозицій:
24.10.2025 15:16:06
Завершення прийому пропозицій:
25.11.2025 20:00:00
Проведення аукціону:
26.11.2025 11:15:00
Лот:
CLE001-UA-20251024-88803
№ лоту (УТК):
UTK051022_03P
Лот виставляється на торги (раз):
10
Стислий опис майна:
Пропонується до оренди частина 3-го поверху нежитлової будівлі площею 134,30 кв. м. Будівля знаходиться в прицентральній частині міста. Можливість передачі приміщень в суборенду. Можливість внутрішніх перепланувань. Окремий вхід з вулиці (з тильної сторони будівлі). Доступ вільний 24/7. Характеристики: Кількість поверхів – 3; Загальна площа – 2543,30 кв.м. Площа запропонована до оренди - 134,30 кв.м.; Опалення, електропостачання, водопостачання (санвузол загального користування на 1-му поверсі) – наявні; Дозволена потужність – 5кВт. Земельна ділянка – 0,2970 га (договір оренди)
Адреса місцезнаходження майна:
Україна, Сумська обл., м. Суми, вул. Івана Сірка, буд. 9
Схожі пропозиції
18.11.2022
Сумська обл., Шосткинський р-н, с. Каліївка, вул. Садова (Жовтнева), буд.14, Оренда – частина будівлі та сарай площею 103,70 кв.м. (В)
361.91 грн
3.49 грн / м2
Будівля
Сумська обл., Шосткинський р-н, с. Каліївка, вул. Садова (Жовтнева), буд.14, Оренда – частина будівлі та сарай площею 103,70 кв.м. (В)
Україна, Сумська обл., Каліївка, вул. Садова (Жовтнева), буд.14
Сумська обл., м. Конотоп, вул. Вирівська, 21. Оренда – комплекс будівель
7 423.02 грн
13.80 грн / м2
Будівля
Сумська обл., м. Конотоп, вул. Вирівська, 21. Оренда – комплекс будівель
Україна, Сумська обл., м. Конотоп, вул. Вирівська, 21
21.01.2025
Сумська обл., м. Конотоп, вул. Вирівська, 21. Оренда – нежитлові будівлі площею 527,70 кв.м. (В)
8 970.90 грн
17.00 грн / м2
Будівля
Сумська обл., м. Конотоп, вул. Вирівська, 21. Оренда – нежитлові будівлі площею 527,70 кв.м. (В)
Україна, Сумська обл., м. Конотоп, вул. Вирівська, 21
10.01.2024
Сумська обл., Шосткинський р-н, с. Макове, вул. Озерна, буд.1;  Оренда – частина будівлі площею 101,3 кв.м. (В)
506.50 грн
5.00 грн / м2
Будівля
Сумська обл., Шосткинський р-н, с. Макове, вул. Озерна, буд.1; Оренда – частина будівлі площею 101,3 кв.м. (В)
Україна, Сумська обл., с. Макове, вул. Озерна, буд. 1