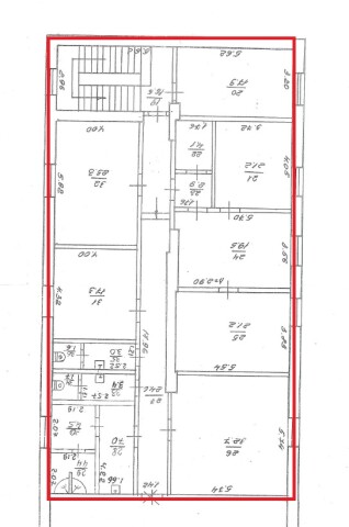
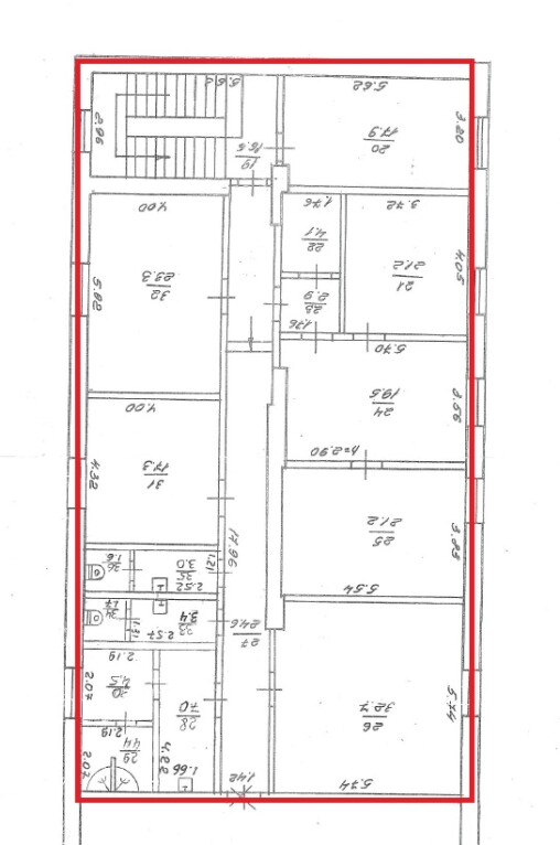
Рівненська обл., м. Рівне, вул. Транспортна, 14.Оренда – приміщення 1-го та 2-го поверху площею 296,4 м. кв. (П)

22 642.00 грн
76.39 грн / м2
Україна, Рівненська обл., м. Рівне, вул. Транспортна, 14
Перейти до аукціону на сайті
  • Інформація
  • Опис
  • Документи
Дата оголошення пропозиції:
20 жовтня 2023
Площа:
296.40 м2
Тип об’єкта:
Приміщення
Тип аукціону:
Англійський аукціон
Статус аукціону:
Аукціон не відбувся
Тип угоди:
Оренда
Розмір мінімального кроку:
500.00 ₴
Розмір гарантійного внеску:
13 585.20 ₴
Початок прийому пропозицій:
20.10.2023 16:00:48
Завершення прийому пропозицій:
21.11.2023 20:00:00
Проведення аукціону:
22.11.2023 11:55:00
Лот:
CLE001-UA-20231020-32593
№ лоту (УТК):
UTK201023_28P
Лот виставляється на торги (раз):
1
Стислий опис майна:
Пропонується до оренди приміщення 1 поверху площею 296,4 м.кв. Будівлі знаходиться в східній частині міста (район 12 школи). Щільність транспортних та пішохідних потоків середня. Територія огороджена та впорядкована. Характеристики: Кількість поверхів – 3 ; Загальна площа – 3742,9 м.кв.; Площа, запропонована до оренди – 296,4 м. кв.; Земельна ділянка - площа 0,6348 га.
Адреса місцезнаходження майна:
Україна, Рівненська обл., м. Рівне, вул. Транспортна, 14
Схожі пропозиції
14.10.2022
Рівненська обл., Рівненський р-н, с. Пустомити, вул. Радянська, 41. Оренда – виробничі приміщення площею 21,80 кв.м. (В)
500.09 грн
22.94 грн / м2
Приміщення
Рівненська обл., Рівненський р-н, с. Пустомити, вул. Радянська, 41. Оренда – виробничі приміщення площею 21,80 кв.м. (В)
Україна, Рівненська обл., Рівненський р-н, с. Пустомити, вул. Радянська, 41
27.05.2025
Рівненська обл., Вараський р-н, с. Більська Воля, вул. Шкільна, 14. Оренда – нежитлові приміщення площею 62,8 кв.м. (В)
753.60 грн
12.00 грн / м2
Приміщення
Рівненська обл., Вараський р-н, с. Більська Воля, вул. Шкільна, 14. Оренда – нежитлові приміщення площею 62,8 кв.м. (В)
Україна, Рівненська обл., Більська Воля, вулиця Шкільна, 14
Рівненська обл., м. Дубровиця, вул. Шевченка, 53. Оренда – приміщення 2-го поверху площею 91,8 кв.м. (В)
996.95 грн
10.86 грн / м2
Приміщення
Рівненська обл., м. Дубровиця, вул. Шевченка, 53. Оренда – приміщення 2-го поверху площею 91,8 кв.м. (В)
Україна, Рівненська обл., м. Дубровиця, вул. Шевченка, 53
24.11.2023
Рівненська обл., Вараський р-н. смт. Володимирець вул. Поштова, 23. Оренда – приміщення 1-го поверху площею 52,8 кв.м. (В)
456.72 грн
8.65 грн / м2
Приміщення
Рівненська обл., Вараський р-н. смт. Володимирець вул. Поштова, 23. Оренда – приміщення 1-го поверху площею 52,8 кв.м. (В)
Україна, Рівненська обл., Вараський р-н. смт. Володимирець, смт. Володимирець вул. Поштова, 23
Переглянуті пропозиції
19.09.2023
м. Київ, бульвар Бучми Амвросія, 5. Оренда – приміщення 3-го та 4-го поверхів технічної будівлі АТС-550 (літ. «Б»), площею 1006,83 кв. м. (В)
15.10.2025
м. Харків, вул. Амосова,13-в. Оренда - приміщення 2-го поверху площею 36,4 кв.м (В)
1 092.00 грн
29.92 грн / м2
Приміщення
м. Харків, вул. Амосова,13-в. Оренда - приміщення 2-го поверху площею 36,4 кв.м (В)
Україна, Харківська обл., м. Харків, вул. Амосова,13-в