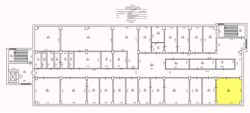
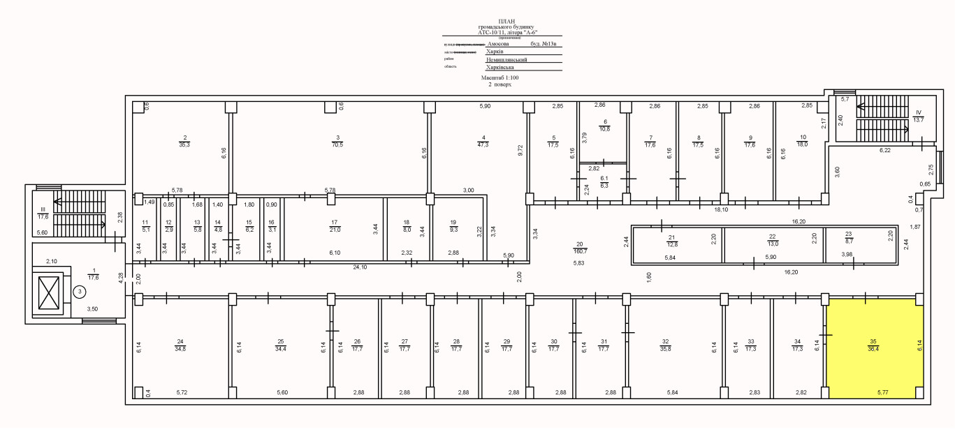
м. Харків, вул. Амосова,13-в. Оренда - приміщення 2-го поверху площею 36,4 кв.м (В)

2 210.94 грн
60.57 грн / м2
Україна, Харківська обл., м. Харків, вул. Амосова,13-в
Перейти до аукціону на сайті
  • Інформація
  • Опис
  • Документи
Дата оголошення пропозиції:
20 листопада 2023
Площа:
36.50 м2
Тип об’єкта:
Приміщення
Тип аукціону:
Англійський аукціон
Статус аукціону:
Аукціон не відбувся
Тип угоди:
Оренда
Розмір мінімального кроку:
200.00 ₴
Розмір гарантійного внеску:
1 326.56 ₴
Початок прийому пропозицій:
20.11.2023 16:28:30
Завершення прийому пропозицій:
19.12.2023 20:00:00
Проведення аукціону:
20.12.2023 12:30:00
Лот:
CLE001-UA-20231120-73883
№ лоту (УТК):
UTK070723_04P
Лот виставляється на торги (раз):
5
Стислий опис майна:
Пропонується до оренди приміщення 2-го поверху площею 36,4 кв.м. Будівля в спальному районі міста Харкова. 10 хв до зупинки транспорту. Характеристики: Кількість поверхів – 5; Загальна площа – 4838,00 кв.м_ Площа запропонована до оренди -36,4 кв.м Дозволена потужність – 5 кВт Теплопостачання-централізоване Земельна ділянка – 0,4825 га
Адреса місцезнаходження майна:
Україна, Харківська обл., м. Харків, вул. Амосова,13-в
Схожі пропозиції
26.11.2025
м. Харків, пр-т Ювілейний, 66. Оренда – приміщення 2-го поверху площею 35,3 кв.м. (В)
1 059.00 грн
30.00 грн / м2
Приміщення
м. Харків, пр-т Ювілейний, 66. Оренда – приміщення 2-го поверху площею 35,3 кв.м. (В)
Україна, Харківська обл., Харків, Ювілейний проспект, 66
08.11.2022
Вінницька обл., Вінницький р_н, смт. Тиврів, вул. Тиверська, 55. Оренда – приміщення 1го поверху площею 22,4 кв.м. (В)
500.19 грн
22.33 грн / м2
Приміщення
Вінницька обл., Вінницький р_н, смт. Тиврів, вул. Тиверська, 55. Оренда – приміщення 1го поверху площею 22,4 кв.м. (В)
Україна, Харківська обл., Вінницький р_н, смт. Тиврів, вул. Тиверська, 55
Харківська обл., смт. Борова, вул. Центральна, 3, будівля літ. А. Оренда – приміщення 1-го поверху площею 65 кв.м.
468.00 грн
7.20 грн / м2
Приміщення
Харківська обл., смт. Борова, вул. Центральна, 3, будівля літ. А. Оренда – приміщення 1-го поверху площею 65 кв.м.
Україна, Харківська обл., м. Борова, вул. Центральна, 3
Харківська обл., м. Харків, вул. Амосова, 13-в. Оренда – приміщення 1-го, 3-го та 4-го поверхів, площею 309,5 кв.м. (П)
12 788.18 грн
41.32 грн / м2
Приміщення
Харківська обл., м. Харків, вул. Амосова, 13-в. Оренда – приміщення 1-го, 3-го та 4-го поверхів, площею 309,5 кв.м. (П)
Україна, Харківська обл., м. Харків, вул. Амосова, 13-в
Переглянуті пропозиції
Харківська обл., м. Харків, просп. Героїв Сталінграду, 169. Оренда – приміщення 2-го поверху 34,7 кв.м.
1 388.00 грн
40.00 грн / м2
Приміщення
Харківська обл., м. Харків, просп. Героїв Сталінграду, 169. Оренда – приміщення 2-го поверху 34,7 кв.м.
Україна, Харківська обл., м. Харків, просп. Героїв Сталінграду, 169