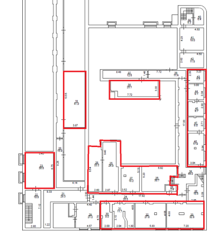
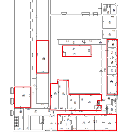
Рівненська обл., м. Рівне, вул. Соборна, 56. Оренда – цокольні приміщення загальною площею 334,1 кв.м. (В)

32 695.03 грн
97.86 грн / м2
Україна, Рівненська обл., м. Рівне, вул. Соборна, 56
Перейти до аукціону на сайті
  • Інформація
  • Опис
  • Документи
Дата оголошення пропозиції:
23 січня 2024
Площа:
334.10 м2
Тип об’єкта:
Приміщення
Тип аукціону:
Англійський аукціон
Статус аукціону:
Аукціон не відбувся
Тип угоди:
Оренда
Розмір мінімального кроку:
500.00 ₴
Розмір гарантійного внеску:
19 617.02 ₴
Початок прийому пропозицій:
23.01.2024 12:04:20
Завершення прийому пропозицій:
22.02.2024 20:00:00
Проведення аукціону:
23.02.2024 11:40:00
Лот:
CLE001-UA-20240123-63229
№ лоту (УТК):
UTK110823_07P
Лот виставляється на торги (раз):
5
Стислий опис майна:
Пропонується до оренди цокольні приміщення загальною площею 334,1 кв.м. Будівля знаходиться в центральній частині міста. Розвинена інфраструктура, високі автомобільний та пішохідний потоки. Поряд центральна площа та міський парк. Окремий вхід відсутній. Потребує реконструкції електромережі. Характеристики: Кількість поверхів – 3. Загальна площа – 4 240 кв.м. Площа, запропонована до оренди – 334,1 кв.м. Земельна ділянка - площа 0,2097 га. (договір оренди).
Адреса місцезнаходження майна:
Україна, Рівненська обл., м. Рівне, вул. Соборна, 56
Схожі пропозиції
26.10.2022
Рівненська обл., м. Рівне, вул. В. Чорновола, 1. Оренда – приміщення 5-го поверху загальною площею 331,7 кв.м. (В)
23 069.74 грн
69.55 грн / м2
Приміщення
Рівненська обл., м. Рівне, вул. В. Чорновола, 1. Оренда – приміщення 5-го поверху загальною площею 331,7 кв.м. (В)
Україна, Рівненська обл., м. Рівне, вул. В. Чорновола, 1
Рівненська обл., м. Корець, вул. Київська, 67а. Оренда – приміщення 2-го поверху
724.79 грн
11.98 грн / м2
Приміщення
Рівненська обл., м. Корець, вул. Київська, 67а. Оренда – приміщення 2-го поверху
Україна, Рівненська обл., м. Корець, вул. Київська, буд. 67а
24.01.2023
Рівненська обл., Вараський р-н, с. Воронки, вул. Чкалова, 14. Оренда – нежитлові приміщення площею 24,9 кв.м. (В)
500.24 грн
20.09 грн / м2
Приміщення
Рівненська обл., Вараський р-н, с. Воронки, вул. Чкалова, 14. Оренда – нежитлові приміщення площею 24,9 кв.м. (В)
Україна, Рівненська обл., Воронки, вул. Чкалова, 14
26.12.2024
Рівненська обл., Дубнівський р-н., м. Дубно, вул. Данила Галицького, 15. Оренда – приміщення 4-го поверху площею 501,1 кв.м. (В)
3 006.60 грн
6.00 грн / м2
Приміщення
Рівненська обл., Дубнівський р-н., м. Дубно, вул. Данила Галицького, 15. Оренда – приміщення 4-го поверху площею 501,1 кв.м. (В)
Україна, Рівненська обл., Дубнівський р-н., м. Дубно, вул. Данила Галицького, 15
Переглянуті пропозиції
14.02.2023
Сумська обл., м. Охтирка, вул. Чкалова, буд. 2. Оренда – офісна будівля площею 183,90 кв.м. (В)
1 701.08 грн
9.25 грн / м2
Офіс
Сумська обл., м. Охтирка, вул. Чкалова, буд. 2. Оренда – офісна будівля площею 183,90 кв.м. (В)
Україна, Сумська обл., м. Охтирка, вул. Чкалова, буд. 2
16.12.2022
Рівненська обл., м. Рівне вул.Соборна,56. Оренда – цокольні приміщення загальною площею 334,1 м.кв. (В)
15 435.42 грн
46.20 грн / м2
Приміщення
Рівненська обл., м. Рівне вул.Соборна,56. Оренда – цокольні приміщення загальною площею 334,1 м.кв. (В)
Україна, Рівненська обл., м. Рівне, вул.Соборна,56
26.11.2025
Чернігівська обл., м. Чернігів, проспект Миру, 35Б. Оренда – приміщення 2 -го поверху площею 77,00 кв.м. (В)
2 310.00 грн
30.00 грн / м2
Приміщення
Чернігівська обл., м. Чернігів, проспект Миру, 35Б. Оренда – приміщення 2 -го поверху площею 77,00 кв.м. (В)
Україна, Чернігівська обл., Чернігів, проспект Миру, 35Б
06.04.2023
Полтавська обл., м. Полтава, провулок Латишева, буд. 11-А. Оренда – Частина будівлі площею 1287,60 кв.м. (В)
59 487.12 грн
46.20 грн / м2
Будівля
Полтавська обл., м. Полтава, провулок Латишева, буд. 11-А. Оренда – Частина будівлі площею 1287,60 кв.м. (В)
Україна, Полтавська обл., м. Полтава, провулок Латишева, буд. 11-А