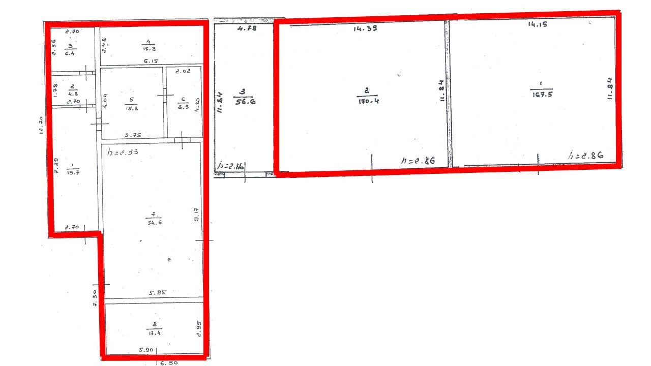
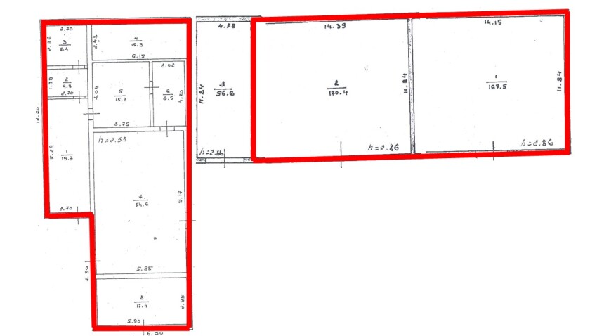
Івано-Франківська обл., Косівський р-н, м.Косів, вул. Небесної Сотні (вул.Гвардійська), 15. Оренда – нежитлові приміщення, площею 479,8 м.кв. (П)

27 223.85 грн
56.74 грн / м2
Україна, Івано-Франківська обл., Косівський р-н, м.Косів, вул. Небесної Сотні (вул.Гвардійська), 15
Перейти до аукціону на сайті
  • Інформація
  • Опис
  • Документи
Дата оголошення пропозиції:
16 лютого 2024
Площа:
479.80 м2
Тип об’єкта:
Приміщення
Тип аукціону:
Англійський аукціон
Статус аукціону:
Аукціон не відбувся
Тип угоди:
Оренда
Розмір мінімального кроку:
300.00 ₴
Розмір гарантійного внеску:
16 334.31 ₴
Початок прийому пропозицій:
16.02.2024 11:44:19
Завершення прийому пропозицій:
18.03.2024 20:00:00
Проведення аукціону:
19.03.2024 11:55:00
Лот:
CLE001-UA-20240216-62189
№ лоту (УТК):
UTK160224_11P
Лот виставляється на торги (раз):
1
Стислий опис майна:
Пропонуються до оренди нежитлові приміщення, площею 479,8 м.кв. Будівля знаходиться в центральній частині міста, розвинена інфраструктура, високі автомобільний та пішохідний потоки. Характеристики кількість поверхів – 1 опалення відсутнє; земельна ділянка – 0,2244 га (договір оренди землі)
Адреса місцезнаходження майна:
Україна, Івано-Франківська обл., Косівський р-н, м.Косів, вул. Небесної Сотні (вул.Гвардійська), 15
Схожі пропозиції
17.06.2025
Івано-Франківська обл., м. Івано-Франківськ, вул. Ю.Целевича, 18а. Оренда – приміщення 1-го та 2-го поверху, площею 46,7 кв.м. (П)
4 314.61 грн
92.39 грн / м2
Приміщення
Івано-Франківська обл., м. Івано-Франківськ, вул. Ю.Целевича, 18а. Оренда – приміщення 1-го та 2-го поверху, площею 46,7 кв.м. (П)
Україна, Івано-Франківська обл., Івано-Франківськ, вулиця Юліана Целевича, 18
28.02.2024
Івано-Франківська обл. м.Івано-Франківськ, вул. В.Симоненка, 1;  Оренда – приміщення 1-го поверху, площею 16,9 м.кв. (П)
2 283.02 грн
135.09 грн / м2
Приміщення
Івано-Франківська обл. м.Івано-Франківськ, вул. В.Симоненка, 1; Оренда – приміщення 1-го поверху, площею 16,9 м.кв. (П)
Україна, Івано-Франківська обл., Івано-Франківськ, вулиця Василя Симоненка, 1
Івано-Франківська обл., смт. Верховина, вул. Франка, 6. Оренда приміщення 2-го поверху
272.30 грн
14.88 грн / м2
Приміщення
Івано-Франківська обл., смт. Верховина, вул. Франка, 6. Оренда приміщення 2-го поверху
Україна, Івано-Франківська обл., смт. Верховина, вул. Франка, 6
15.02.2023
Івано-Франківська обл., Івано-Франківський р-н, м. Бурштин, вул. Січових Стрільців, 17. Оренда – пприміщення 1-го поверху площею 21,0 кв.м. (В)
2 022.72 грн
96.32 грн / м2
Приміщення
Івано-Франківська обл., Івано-Франківський р-н, м. Бурштин, вул. Січових Стрільців, 17. Оренда – пприміщення 1-го поверху площею 21,0 кв.м. (В)
Україна, Івано-Франківська обл., Івано-Франківський р-н, м. Бурштин, вул. Січових Стрільців, 17
Переглянуті пропозиції
25.06.2024
Дніпропетровська обл., м. Кам’янське, вул. Героїв АТО, 1;  Оренда – приміщення 3-го поверху площею 17,3 кв.м. (В)
259.50 грн
15.00 грн / м2
Приміщення
Дніпропетровська обл., м. Кам’янське, вул. Героїв АТО, 1; Оренда – приміщення 3-го поверху площею 17,3 кв.м. (В)
Україна, Дніпропетровська обл., Кам’янське, Героїв АТО, 1
м. Рівне, вул. Транспортна,14. Оренда – приміщення 1-го та 2-го поверху
5 317.43 грн
17.66 грн / м2
Приміщення
м. Рівне, вул. Транспортна,14. Оренда – приміщення 1-го та 2-го поверху
Україна, Рівненська обл., м. Рівне, вул. Транспортна,14
05.09.2023
Полтавська обл., Лубенський р-н, с. Засулля, вул. Молодіжна, буд.20. Оренда – одноповерхова будівля площею 189,80 кв.м. (В)
1 275.46 грн
6.72 грн / м2
Будівля
Полтавська обл., Лубенський р-н, с. Засулля, вул. Молодіжна, буд.20. Оренда – одноповерхова будівля площею 189,80 кв.м. (В)
Україна, Полтавська обл., Лубенський р-н, с. Засулля, вул. Молодіжна, буд.20