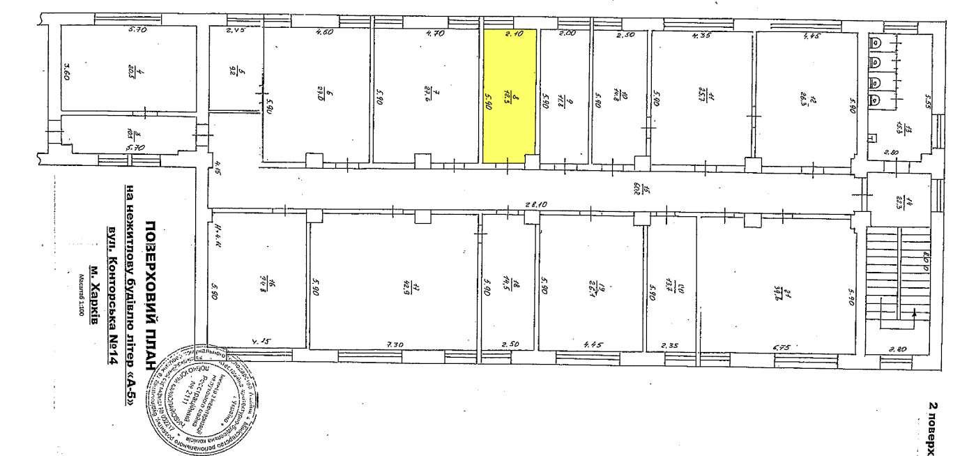
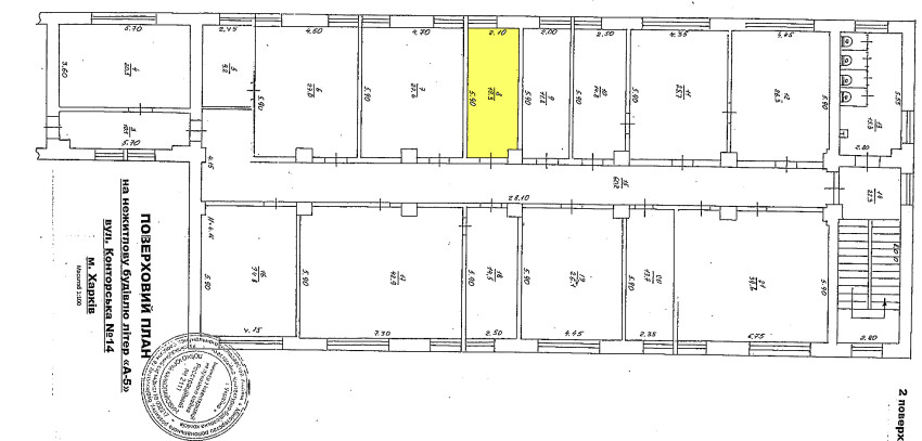
м.Харків, вул.Конторська,14; Оренда–приміщення 2-го поверху площею 12,3 кв.м (В)

852.39 грн
69.30 грн / м2
Україна, Харківська обл., Харків, вулиця Конторська, 14
Перейти до аукціону на сайті
  • Інформація
  • Опис
  • Документи
Дата оголошення пропозиції:
18 лютого 2024
Площа:
12.30 м2
Тип об’єкта:
Приміщення
Тип аукціону:
Англійський аукціон
Статус аукціону:
Аукціон не відбувся
Тип угоди:
Оренда
Розмір мінімального кроку:
50.00 ₴
Розмір гарантійного внеску:
511.43 ₴
Початок прийому пропозицій:
18.02.2024 18:09:40
Завершення прийому пропозицій:
20.03.2024 20:00:00
Проведення аукціону:
21.03.2024 11:40:00
Лот:
CLE001-UA-20240218-10023
№ лоту (УТК):
UTK070723_05T
Лот виставляється на торги (раз):
7
Стислий опис майна:
Пропонується до оренди приміщення 2-го поверху площею 12,3 кв.м. Будівля в центрі міста Харкова.15 хв до метро Центральний ринок. Характеристики: Кількість поверхів – 4; Загальна площа – 5611,00 кв.м_ Площа запропонована до оренди - 12,3 кв.м Дозволена потужність – 4 кВт Теплопостачання - відсутнє Земельна ділянка – 0,5169 га
Адреса місцезнаходження майна:
Україна, Харківська обл., Харків, вулиця Конторська, 14
Схожі пропозиції
04.08.2023
м. Харків, просп. Олександрівський, 83. Оренда – приміщення 3 поверху площею 16,40 кв.м. (В)
777.36 грн
47.40 грн / м2
Приміщення
м. Харків, просп. Олександрівський, 83. Оренда – приміщення 3 поверху площею 16,40 кв.м. (В)
Україна, Харківська обл., м. Харків, просп. Олександрівський, 83
Харківська обл., м. Красноград, вул. Соборна, 56. Оренда – окремі приміщення (2 гаражі) площею 61,9 кв.м. (В)
2 832.54 грн
45.76 грн / м2
Приміщення
Харківська обл., м. Красноград, вул. Соборна, 56. Оренда – окремі приміщення (2 гаражі) площею 61,9 кв.м. (В)
Україна, Харківська обл., м. Красноград, вул. Соборна, 56
09.08.2023
м. Харків, вул. Конторська,14.Оренда – приміщення 2-го поверху площею 26,3 кв.м (В)
2 603.70 грн
99.00 грн / м2
Приміщення
м. Харків, вул. Конторська,14.Оренда – приміщення 2-го поверху площею 26,3 кв.м (В)
Україна, Харківська обл., м. Харків, вул. Конторська,14
15.10.2025
Харківська обл., м. Харків, вул. Рибалка, 3-А. Оренда – приміщення одноповерхової будівлі площею 10,00 кв.м. (В)
502.60 грн
50.26 грн / м2
Приміщення
Харківська обл., м. Харків, вул. Рибалка, 3-А. Оренда – приміщення одноповерхової будівлі площею 10,00 кв.м. (В)
Україна, Харківська обл., м. Харків, вул. Рибалка, 3-А