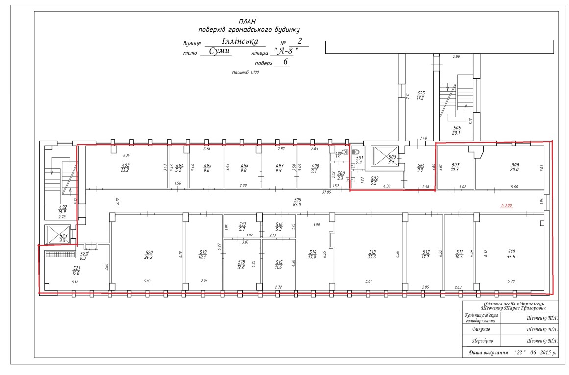
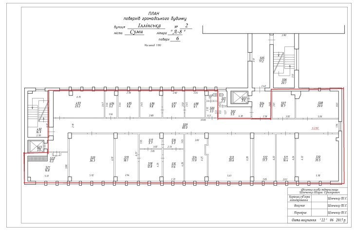
Сумська обл., м. Суми, вул. Іллінська, буд. 2. Оренда – офісні приміщення 6-го поверху площею 415,40 кв. м. (В)

19 689.96 грн
47.40 грн / м2
Україна, Сумська обл., м. Суми, вул. Іллінська, буд. 2
Перейти до аукціону на сайті
  • Інформація
  • Опис
  • Документи
Дата оголошення пропозиції:
19 лютого 2024
Площа:
415.40 м2
Тип об’єкта:
Офіс
Тип аукціону:
Англійський аукціон
Статус аукціону:
Аукціон не відбувся
Тип угоди:
Оренда
Розмір мінімального кроку:
500.00 ₴
Розмір гарантійного внеску:
11 813.98 ₴
Початок прийому пропозицій:
19.02.2024 15:02:52
Завершення прийому пропозицій:
20.03.2024 20:00:00
Проведення аукціону:
21.03.2024 11:30:00
Лот:
CLE001-UA-20240219-31062
№ лоту (УТК):
UTK130323_04P
Лот виставляється на торги (раз):
10
Стислий опис майна:
Пропонується до оренди офісні приміщення 6-го поверху площею 415,40 кв.м. восьмиповерхового будинку зв`язку в центральній частині міста. Вхід з фасаду будівлі. Чудова візуалізація з дороги, поруч зупинки, магазини, аптеки, універмаг. Відсутній доступ до приміщення маломобільних груп населення. Характеристики: кількість поверхів – 8 Загальна площа – 11 677,00 кв.м; Площа запропонована до оренди – 415,40 кв.м; Опалення, електропостачання, санвузол та водопостачання, ліфт, охорона - наявні; земельна ділянка – 0.6776 га (договір оренди ЗД); стан приміщення – добрий
Адреса місцезнаходження майна:
Україна, Сумська обл., м. Суми, вул. Іллінська, буд. 2
Схожі пропозиції
21.01.2025
Сумська обл., м. Буринь, вул. Першотравнева, 5;  Оренда – офісні приміщення 2-го поверху площею 129,9 кв.м. (В)
1 279.52 грн
9.85 грн / м2
Офіс
Сумська обл., м. Буринь, вул. Першотравнева, 5; Оренда – офісні приміщення 2-го поверху площею 129,9 кв.м. (В)
Україна, Сумська обл., Буринь, вул. Першотравнева, 5
Сумська обл., м. Суми, вул. Нижньосироватська, буд. 64. Оренда – офісні приміщення 2-го поверху площею 31,30 кв.м. (В)
1 446.06 грн
46.20 грн / м2
Офіс
Сумська обл., м. Суми, вул. Нижньосироватська, буд. 64. Оренда – офісні приміщення 2-го поверху площею 31,30 кв.м. (В)
Україна, Сумська обл., м. Суми, вул. Нижньосироватська, буд. 64
31.03.2023
Сумська обл., м. Суми, вул. Іллінська, буд. 2. Оренда – офісні приміщення 8-го поверху площею 81,30 кв.м. (В)
3 756.06 грн
46.20 грн / м2
Офіс
Сумська обл., м. Суми, вул. Іллінська, буд. 2. Оренда – офісні приміщення 8-го поверху площею 81,30 кв.м. (В)
Україна, Сумська обл., м. Суми, вул. Іллінська, буд. 2
Сумська обл., смт. Липова Долина, вул. Загорянка, буд. 2. Оренда – офісні приміщення 1-го та 2-го поверху площею 55,40 кв.м. (В)
1 243.18 грн
22.44 грн / м2
Офіс
Сумська обл., смт. Липова Долина, вул. Загорянка, буд. 2. Оренда – офісні приміщення 1-го та 2-го поверху площею 55,40 кв.м. (В)
Україна, Сумська обл., смт. Липова Долина, вул. Загорянка, буд. 2