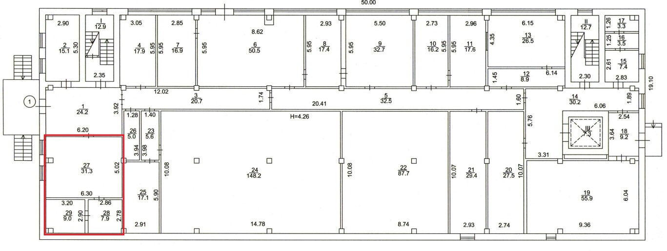
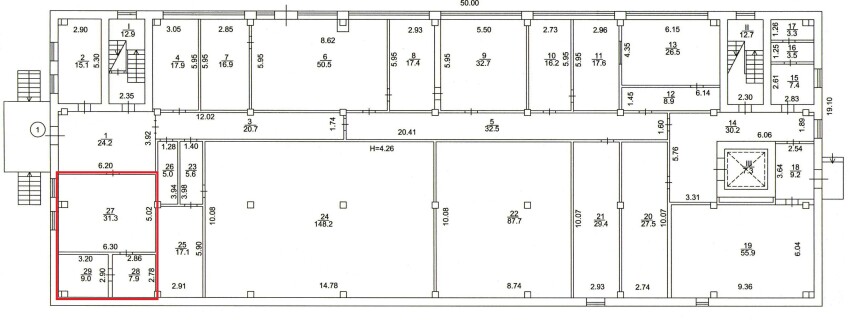
Вінницька обл. м. Могилів-Подільський, вул. Київська, 41; Оренда – приміщення 1-го поверху, площею 48,2 кв.м. (В)

706.61 грн
14.66 грн / м2
Україна, Вінницька обл., Могилів-Подільський, вулиця Київська, 41
Перейти до аукціону на сайті
  • Інформація
  • Опис
  • Документи
Дата оголошення пропозиції:
28 лютого 2024
Площа:
48.20 м2
Тип об’єкта:
Приміщення
Тип аукціону:
Англійський аукціон
Статус аукціону:
Аукціон не відбувся
Тип угоди:
Оренда
Розмір мінімального кроку:
10.00 ₴
Розмір гарантійного внеску:
423.97 ₴
Початок прийому пропозицій:
28.02.2024 19:40:41
Завершення прийому пропозицій:
28.03.2024 20:00:00
Проведення аукціону:
29.03.2024 11:20:00
Лот:
CLE001-UA-20240228-48104
№ лоту (УТК):
UTK050821_03T
Лот виставляється на торги (раз):
10
Стислий опис майна:
Пропонуються до оренди-приміщення 1-го поверху, площею 48,2 кв.м. Будівля знаходиться в центрі м. Могилів-Подільський. Поруч розташовані супермаркети, міська рада, міський парк, пошта. Вхід в будівлю з двору. Характеристики: - Кількість поверхів – 4; - Загальна площа будівлі – 3363,3 кв.м.; - Площа до оренди – 48,2 кв.м.
Адреса місцезнаходження майна:
Україна, Вінницька обл., Могилів-Подільський, вулиця Київська, 41
Схожі пропозиції
12.01.2024
ДОВГОСТРОКОВА ОРЕНДА!   Вінницька обл., м. Вінниця, пр-т. Коцюбинського, 28;    Оренда – приміщення 3-го та 4-го поверхів площею 1770,10 кв.м. (В)
111 197.68 грн
62.82 грн / м2
Приміщення
ДОВГОСТРОКОВА ОРЕНДА! Вінницька обл., м. Вінниця, пр-т. Коцюбинського, 28; Оренда – приміщення 3-го та 4-го поверхів площею 1770,10 кв.м. (В)
Україна, Вінницька обл., Вінниця, проспект Коцюбинського, 28
Вінницька обл., смт. Теплик, вул. Незалежності, 5. Оренда – приміщення 1-го поверху площею 116,2 кв.м.
942.38 грн
8.11 грн / м2
Приміщення
Вінницька обл., смт. Теплик, вул. Незалежності, 5. Оренда – приміщення 1-го поверху площею 116,2 кв.м.
Україна, Вінницька обл., смт. Теплик, вул. Незалежності, буд. 5
23.07.2024
Вінницька обл., Гайсинський р-н., м. Тростянець, вул. Соборна, 47. Оренда – приміщення 3 поверху площею 66,20 кв.м. (В)
331.00 грн
5.00 грн / м2
Приміщення
Вінницька обл., Гайсинський р-н., м. Тростянець, вул. Соборна, 47. Оренда – приміщення 3 поверху площею 66,20 кв.м. (В)
Україна, Вінницька обл., Гайсинський р-н., м. Тростянець, вул. Соборна, 47
10.11.2022
Вінницька обл., м. Вінниця, вул. М. Оводова, 22. Оренда – приміщення 2-го поверху площею 14,40 кв.м. (В)
2 851.20 грн
198.00 грн / м2
Приміщення
Вінницька обл., м. Вінниця, вул. М. Оводова, 22. Оренда – приміщення 2-го поверху площею 14,40 кв.м. (В)
Україна, Вінницька обл., Вінниця, вулиця Миколи Оводова, 22
Переглянуті пропозиції
03.06.2025
м. Харків, вул. Конторська,14.Оренда – приміщення 2-го поверху площею 36,2 кв.м (В)
1 086.00 грн
30.00 грн / м2
Приміщення
м. Харків, вул. Конторська,14.Оренда – приміщення 2-го поверху площею 36,2 кв.м (В)
Україна, Харківська обл., м. Харків, вул. Конторська,14
Полтавська обл., м. Решетилівка, вул. Старокиївська, 2 Оренда - приміщення 2го поверху 25,3 кв.м.
1 416.80 грн
56.00 грн / м2
Приміщення
Полтавська обл., м. Решетилівка, вул. Старокиївська, 2 Оренда - приміщення 2го поверху 25,3 кв.м.
Україна, Полтавська обл., м. Решетилівка, вул. Старокиївська, 2