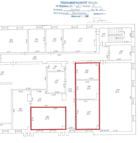
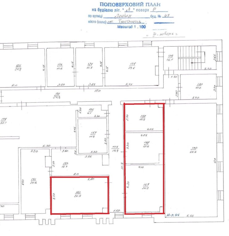
Вінницька обл., Гайсинський р-н., м. Тростянець, вул. Соборна, 47. Оренда – приміщення 3 поверху площею 66,20 кв.м. (В)

331.00 грн
5.00 грн / м2
Україна, Вінницька обл., Гайсинський р-н., м. Тростянець, вул. Соборна, 47
Перейти до аукціону на сайті
  • Інформація
  • Опис
  • Документи
Дата оголошення пропозиції:
19 червня 2024
Площа:
66.20 м2
Тип об’єкта:
Приміщення
Тип аукціону:
Англійський аукціон
Статус аукціону:
Аукціон не відбувся
Тип угоди:
Оренда
Розмір мінімального кроку:
10.00 ₴
Розмір гарантійного внеску:
198.60 ₴
Початок прийому пропозицій:
19.06.2024 15:26:16
Завершення прийому пропозицій:
22.07.2024 20:00:00
Проведення аукціону:
23.07.2024 11:10:00
Лот:
CLE001-UA-20240619-64777
№ лоту (УТК):
UTK251021_01P
Лот виставляється на торги (раз):
10
Стислий опис майна:
Надається в оренду приміщення 3 поверху площею 66,2 кв.м. Будівля знаходиться в центрі м. Тростянець, поруч супермаркети, Міськ.рада, банки, пошта. Характеристики: Кількість поверхів – 3 Загальна площа – 1803,30 кв.м. Площа запропонована до оренди – 66,20 кв.м. Електро, водопостачання.
Адреса місцезнаходження майна:
Україна, Вінницька обл., Гайсинський р-н., м. Тростянець, вул. Соборна, 47
Схожі пропозиції
24.12.2024
Вінницька обл., м. Вінниця, вул. Соборна, 8;   Оренда – приміщення 2-го поверху площею 40,4 кв.м. (В)
5 268.16 грн
130.40 грн / м2
Приміщення
Вінницька обл., м. Вінниця, вул. Соборна, 8; Оренда – приміщення 2-го поверху площею 40,4 кв.м. (В)
Україна, Вінницька обл., Вінниця, вулиця Соборна, 8
20.02.2024
Вінницька обл., Вінницький р-н, м. Немирів, вул. Горького, 20 ;  Оренда – навіс площею 240,6 кв.м. (В)
6 881.16 грн
28.60 грн / м2
Приміщення
Вінницька обл., Вінницький р-н, м. Немирів, вул. Горького, 20 ; Оренда – навіс площею 240,6 кв.м. (В)
Україна, Вінницька обл., Немирів, вулиця Горького, 20
Вінницька обл., Вінницький р-н, м. Немирів, вул. Горького, 20. Оренда – нежитлові приміщення площею 86,3 кв. м (В)
1 712.19 грн
19.84 грн / м2
Приміщення
Вінницька обл., Вінницький р-н, м. Немирів, вул. Горького, 20. Оренда – нежитлові приміщення площею 86,3 кв. м (В)
Україна, Вінницька обл., м. Немирів, вул. Горького, 20
Вінницька обл., м. Вінниця, вул. М. Оводова, 22. Оренда – приміщення 2 поверху площею 6,8 кв.м. (В)
683.06 грн
100.45 грн / м2
Приміщення
Вінницька обл., м. Вінниця, вул. М. Оводова, 22. Оренда – приміщення 2 поверху площею 6,8 кв.м. (В)
Україна, Вінницька обл., м. Вінниця, вул. М. Оводова, 22
Переглянуті пропозиції
Вінницька обл., Вінницький р-н., м. Іллінці, вул. Соборна, 29. Оренда – Приміщення 1-го поверху площею 39,4 кв.м. (В)
780.12 грн
19.80 грн / м2
Приміщення
Вінницька обл., Вінницький р-н., м. Іллінці, вул. Соборна, 29. Оренда – Приміщення 1-го поверху площею 39,4 кв.м. (В)
Україна, Вінницька обл., Вінницький р-н., м. Іллінці, вул. Соборна, 29
Харківська обл., м. Харків, вул. Академіка Вальтера, 3. Оренда – приміщення цокольного поверху, площею 47,9 кв.м. (В)
942.67 грн
19.68 грн / м2
Приміщення
Харківська обл., м. Харків, вул. Академіка Вальтера, 3. Оренда – приміщення цокольного поверху, площею 47,9 кв.м. (В)
Україна, Харківська обл., м. Харків, вул. Ак. Вальтера,3
12.01.2024
Вінницька обл., Гайсинський р-н., м. Тростянець, вул. Соборна, 47. Оренда – приміщення 3 поверху площею 66,20 кв.м. (В)
331.00 грн
5.00 грн / м2
Приміщення
Вінницька обл., Гайсинський р-н., м. Тростянець, вул. Соборна, 47. Оренда – приміщення 3 поверху площею 66,20 кв.м. (В)
Україна, Вінницька обл., Гайсинський р-н., м. Тростянець, вул. Соборна, 47
27.12.2024
Львівська обл., м. Турка, вул. Шевченка,2. Оренда – приміщення 2-го поверху площею 216,10 кв.м. (В)
3 111.84 грн
14.40 грн / м2
Приміщення
Львівська обл., м. Турка, вул. Шевченка,2. Оренда – приміщення 2-го поверху площею 216,10 кв.м. (В)
Україна, Львівська обл., м. Турка, вул. Шевченка, 2