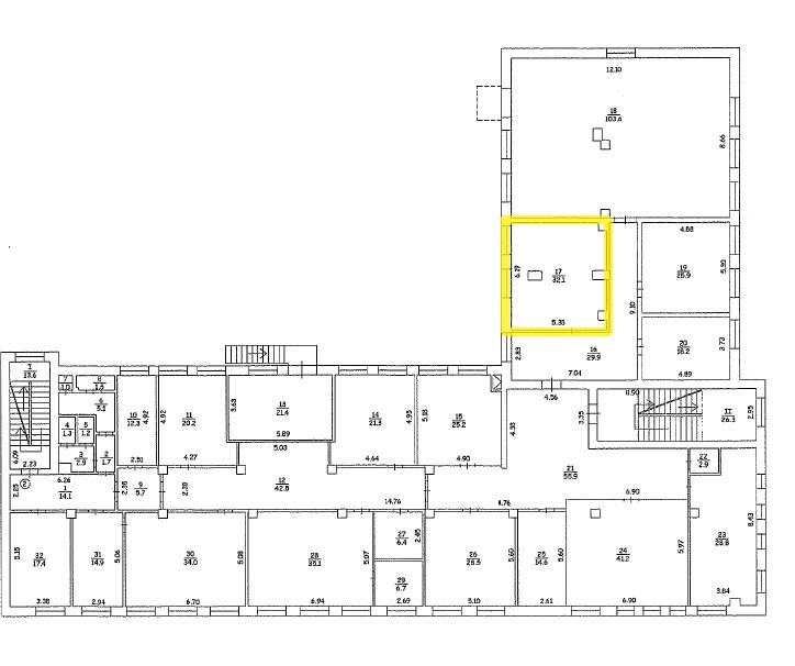
Дніпропетровська обл., м. Дніпро, вул. Січових Стрільців, 10. Оренда – приміщення 2-го поверху площею 32,10 кв.м. (В)

4 815.00 грн
150.00 грн / м2
Україна, Дніпропетровська обл., м. Дніпро, вул. Січових Стрільців, 10
Перейти до аукціону на сайті
  • Інформація
  • Опис
  • Документи
Дата оголошення пропозиції:
06 березня 2024
Площа:
32.10 м2
Тип об’єкта:
Приміщення
Тип аукціону:
Англійський аукціон
Статус аукціону:
Аукціон не відбувся
Тип угоди:
Оренда
Розмір мінімального кроку:
400.00 ₴
Розмір гарантійного внеску:
2 889.00 ₴
Початок прийому пропозицій:
06.03.2024 19:47:41
Завершення прийому пропозицій:
08.04.2024 20:00:00
Проведення аукціону:
09.04.2024 12:10:00
Лот:
CLE001-UA-20240306-34266
№ лоту (УТК):
UTK260623_05P
Лот виставляється на торги (раз):
8
Стислий опис майна:
Пропонується до оренди приміщення 2-го поверху площею 32,10 кв.м. Розташування – будівля (літ. «А-3») знаходиться в центральному районі міста. Поруч знаходяться відділення банку, високий автомобільний і пішохідний потоки. Стан приміщення задовільний, підходить для офісу, для дитячої студії, школи розвитку. Ідеальне місце під розвиток будь-якого бізнесу. Можливість передачі приміщень в суборенду. Характеристики: Кількість поверхів – 4 (враховуючи цокольний поверх) Загальна площа будівель на ЗД – 2876,70 кв.м. Площа запропонована до оренди – 32,10 кв.м. Електропостачання, водопостачання, теплопостачання, охорона та обслуговування пожежної сигналізації, вивіз сміття, прибирання території; Земельна ділянка – 0, 1636 га (договір оренди) Ресурсні податки – 5,55 грн за 1 кв.м
Адреса місцезнаходження майна:
Україна, Дніпропетровська обл., м. Дніпро, вул. Січових Стрільців, 10
Схожі пропозиції
10.09.2024
Дніпропетровська обл., м.Кривий Ріг, вул.Дніпропетровське шосе,48;   Оренда–приміщення 2-го поверху, площею 446,0 кв.м. (В)
6 859.48 грн
15.38 грн / м2
Приміщення
Дніпропетровська обл., м.Кривий Ріг, вул.Дніпропетровське шосе,48; Оренда–приміщення 2-го поверху, площею 446,0 кв.м. (В)
Україна, Дніпропетровська обл., Кривий Ріг, вулиця Дніпровське шосе, 48
07.02.2025
Дніпропетровська обл., м. Кривий Ріг, вул. Водоп`янова, 1а;   Оренда – приміщення 5-го поверху, площею 809,7 кв.м. (В)
7 287.30 грн
9.00 грн / м2
Приміщення
Дніпропетровська обл., м. Кривий Ріг, вул. Водоп`янова, 1а; Оренда – приміщення 5-го поверху, площею 809,7 кв.м. (В)
Україна, Дніпропетровська обл., Кривий Ріг, вулиця Водоп'янова, 1а
Дніпропетровська обл., м. Дніпро, вул. Панікахи, 27 Оренда приміщення 3-го поверху площею 742,0 кв.м.(В)
6 151.18 грн
8.29 грн / м2
Приміщення
Дніпропетровська обл., м. Дніпро, вул. Панікахи, 27 Оренда приміщення 3-го поверху площею 742,0 кв.м.(В)
Україна, Дніпропетровська обл., м. Дніпро, вул. Панікахи, 27
Дніпропетровська обл., м. Дніпро, вул. Князя Ярослава Мудрого, 3. Оренда – приміщення  2-го  поверху площею 41,20 кв.м. (В)
4 449.60 грн
108.00 грн / м2
Приміщення
Дніпропетровська обл., м. Дніпро, вул. Князя Ярослава Мудрого, 3. Оренда – приміщення 2-го поверху площею 41,20 кв.м. (В)
Україна, Дніпропетровська обл., м. Дніпро, вул. Князя Ярослава Мудрого, 3
Переглянуті пропозиції
25.06.2024
Дніпропетровська обл., м. Кам’янське, вул. Героїв АТО, 1;  Оренда – приміщення 3-го поверху площею 17,3 кв.м. (В)
259.50 грн
15.00 грн / м2
Приміщення
Дніпропетровська обл., м. Кам’янське, вул. Героїв АТО, 1; Оренда – приміщення 3-го поверху площею 17,3 кв.м. (В)
Україна, Дніпропетровська обл., Кам’янське, Героїв АТО, 1
м. Рівне, вул. Транспортна,14. Оренда – приміщення 1-го та 2-го поверху
5 317.43 грн
17.66 грн / м2
Приміщення
м. Рівне, вул. Транспортна,14. Оренда – приміщення 1-го та 2-го поверху
Україна, Рівненська обл., м. Рівне, вул. Транспортна,14
05.09.2023
Полтавська обл., Лубенський р-н, с. Засулля, вул. Молодіжна, буд.20. Оренда – одноповерхова будівля площею 189,80 кв.м. (В)
1 275.46 грн
6.72 грн / м2
Будівля
Полтавська обл., Лубенський р-н, с. Засулля, вул. Молодіжна, буд.20. Оренда – одноповерхова будівля площею 189,80 кв.м. (В)
Україна, Полтавська обл., Лубенський р-н, с. Засулля, вул. Молодіжна, буд.20