м. Київ, вул. Героїв Севастополя, 39/8, літ.«В»; Оренда – приміщення 1-го поверху блоку зовнішніх споруд, площею 80,60 кв.м. (В)

15 771.00 грн
195.67 грн / м2
Україна, м.Київ, Київ, вул. Героїв Севастополя, 39/8(В)
Перейти до аукціону на сайті
  • Інформація
  • Опис
  • Документи
Дата оголошення пропозиції:
06 квітня 2024
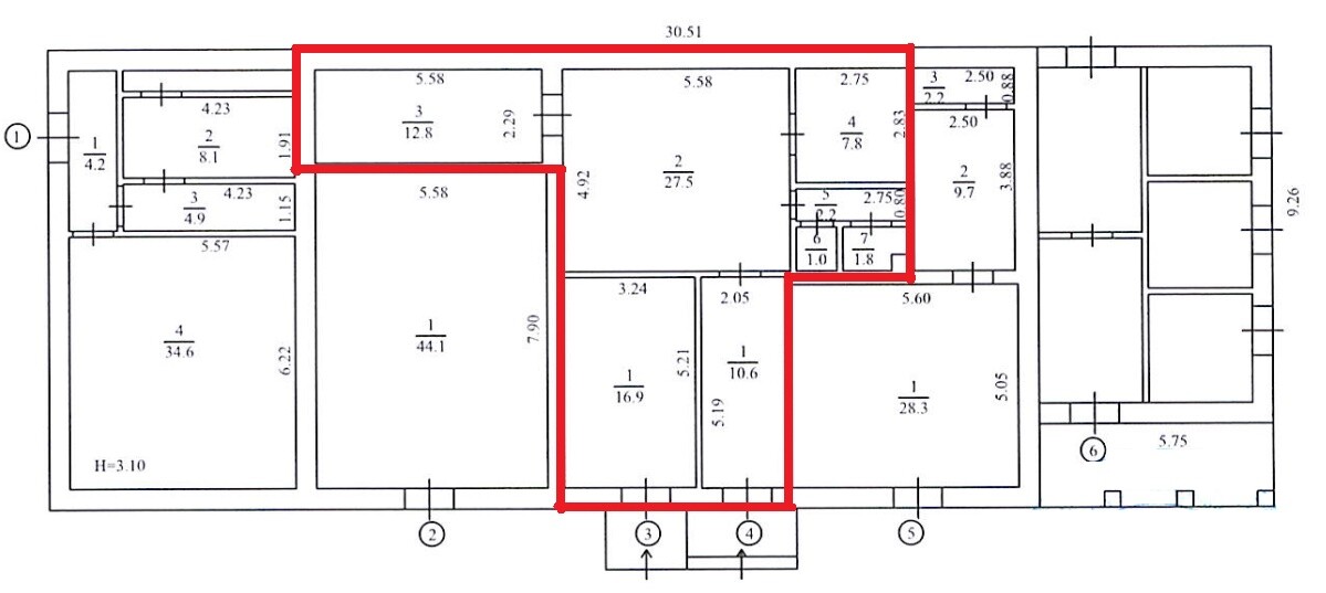
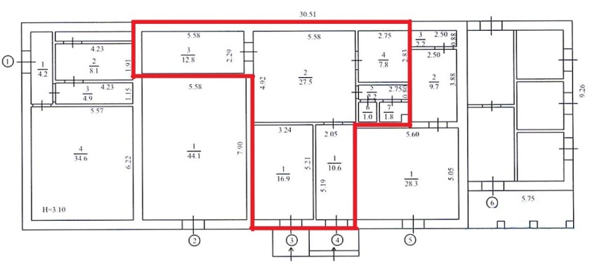
Площа:
80.60 м2
Тип об’єкта:
Приміщення
Тип аукціону:
Англійський аукціон
Статус аукціону:
Аукціон не відбувся
Тип угоди:
Оренда
Розмір мінімального кроку:
500.00 ₴
Розмір гарантійного внеску:
9 462.60 ₴
Початок прийому пропозицій:
06.04.2024 10:44:14
Завершення прийому пропозицій:
07.05.2024 20:00:00
Проведення аукціону:
08.05.2024 11:30:00
Лот:
CLE001-UA-20240406-90372
№ лоту (УТК):
UTK010323_1T
Лот виставляється на торги (раз):
10
Стислий опис майна:
Пропонується до оренди приміщення 1-го поверху блоку зовнішніх споруд, площею 80,60 кв.м.. Розташування будівлі у Солом'янському районі міста Києва, місцевості Відрадний та Новокараваєві дачі. Поруч розвинена інфраструктура, зупинки маршрутного транспорту, трамваю, магазини, кафе, аптеки, середній автомобільний і пішохідний потоки. Вхід з вулиці Героїв Севастополя та з прохідної. Доступ 24/7. Характеристики: - загальна площа будівлі – 216,40 кв.м.; - кількість поверхів – 1; - загальна площа земельної ділянки – 0,9713 га; - опалення – відсутнє; - сан. вузол, каналізація, водопостачання – присутне;
Адреса місцезнаходження майна:
Україна, м.Київ, Київ, вул. Героїв Севастополя, 39/8(В)
Схожі пропозиції
23.07.2024
м. Київ, вул. Джона Маккейна, №40;   Оренда – приміщення підвалу, площею 24,80 м2 (В)
5 882.31 грн
237.19 грн / м2
Приміщення
м. Київ, вул. Джона Маккейна, №40; Оренда – приміщення підвалу, площею 24,80 м2 (В)
Україна, м.Київ, Київ, вулиця Джона Маккейна, 40
26.04.2023
ДОВГОСТРОКОВА ОРЕНДА! м. Київ, вул. Салютна, 5а, літ. «Б». Оренда – приміщення 3-го та 4-го поверхів площею 992,8 кв.м. (В)
23.04.2025
 м. Київ, вул. Макіївська, 3;  Оренда – приміщення 2-го поверху, площею 724,10 кв.м.(В)
80 179.59 грн
110.73 грн / м2
Приміщення
м. Київ, вул. Макіївська, 3; Оренда – приміщення 2-го поверху, площею 724,10 кв.м.(В)
Україна, м.Київ, Київ, вулиця Макіївська, 3
26.10.2023
м. Київ, бульвар Бучми Амвросія, 5. Оренда – приміщення 3-го та 4-го поверхів технічної будівлі АТС-550 (літ. «Б»), площею 1006,83 кв.м. (В)
Переглянуті пропозиції
29.06.2023
Дніпропетровська обл., м. Синельникове, вул. Богми, 4. Оренда – приміщення 2-го поверху, площею 213,5 кв.м. (В)
3 702.09 грн
17.34 грн / м2
Приміщення
Дніпропетровська обл., м. Синельникове, вул. Богми, 4. Оренда – приміщення 2-го поверху, площею 213,5 кв.м. (В)
Україна, Дніпропетровська обл., м. Синельникове, вулиця Богми, 4
13.09.2024
ДОВГОСТРОКОВА ОРЕНДА! м. Київ, вул. Салютна, 5а, літ. «Б»;  Оренда – приміщення 3-го та 4-го поверхів площею 992,8 кв.м. (В)
122 720.01 грн
123.61 грн / м2
Приміщення
ДОВГОСТРОКОВА ОРЕНДА! м. Київ, вул. Салютна, 5а, літ. «Б»; Оренда – приміщення 3-го та 4-го поверхів площею 992,8 кв.м. (В)
Україна, м.Київ, Київ, вулиця Салютна, 5а, літ.Б
25.07.2025
Рівненська обл., м. Рівне вул. В. Чорновола, 1. Оренда – підвальні приміщення загальною площею 261,7 м.кв. (В)
15 702.00 грн
60.00 грн / м2
Приміщення
Рівненська обл., м. Рівне вул. В. Чорновола, 1. Оренда – підвальні приміщення загальною площею 261,7 м.кв. (В)
Україна, Рівненська обл., м. Рівне, вул. В. Чорновола, 1
05.06.2024
Харківська обл., м. Харків, вул. Коцарська, 45, літер «А-4»;  Оренда – приміщення на 2-му поверсі загальною площею 14,30 кв.м. (В)
768.77 грн
53.76 грн / м2
Приміщення
Харківська обл., м. Харків, вул. Коцарська, 45, літер «А-4»; Оренда – приміщення на 2-му поверсі загальною площею 14,30 кв.м. (В)
Україна, Харківська обл., Харків, вулиця Коцарська, 45