ДОВГОСТРОКОВА ОРЕНДА! Рівненська обл., м. Рівне вул. В. Чорновола, 1; Оренда – приміщення 5-го поверху загальною площею 483,4 кв.м. (В)

47 305.52 грн
97.86 грн / м2
Україна, Рівненська обл., Рівне, вул. Вячеслава Чорновола, 1
Перейти до аукціону на сайті
  • Інформація
  • Опис
  • Документи
Дата оголошення пропозиції:
11 квітня 2024
Площа:
483.40 м2
Тип об’єкта:
Приміщення
Тип аукціону:
Англійський аукціон
Статус аукціону:
Аукціон не відбувся
Тип угоди:
Оренда
Розмір мінімального кроку:
500.00 ₴
Розмір гарантійного внеску:
28 383.31 ₴
Початок прийому пропозицій:
11.04.2024 10:36:20
Завершення прийому пропозицій:
13.05.2024 20:00:00
Проведення аукціону:
14.05.2024 11:55:00
Лот:
CLE001-UA-20240411-01014
№ лоту (УТК):
UTK081222_00Т
Лот виставляється на торги (раз):
10
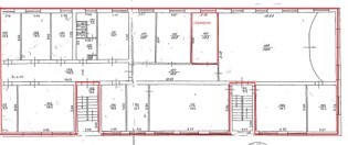
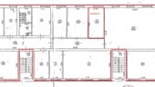
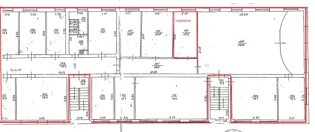
Стислий опис майна:
Пропонується до оренди приміщення 5-го поверху загальною площею 483,4 кв.м. Будівля знаходиться в центральній частині міста. Розвинена інфраструктура, високі автомобільний та пішохідний потоки. Поряд центральна площа та міський парк. Приміщення потребують реконструкції електромережі . Характеристики: • Кількість поверхів – 5; • Загальна площа – 2032,6 кв.м.; • Площа, запропонована до оренди – загальною площею 483,4 кв.м.; • Опалення – централізоване; • Земельна ділянка - площа 0,1652 га. (договір оренди)
Адреса місцезнаходження майна:
Україна, Рівненська обл., Рівне, вул. Вячеслава Чорновола, 1
Схожі пропозиції
Рівненська обл., м. Рівне, вул. Боярка 54-А. Оренда - складські приміщення площею 174,7 кв.м. (В)
2 166.28 грн
12.40 грн / м2
Приміщення
Рівненська обл., м. Рівне, вул. Боярка 54-А. Оренда - складські приміщення площею 174,7 кв.м. (В)
Україна, Рівненська обл., м. Рівне, вул. Боярка 54-А
28.12.2023
Рівненська обл., Рівненський р-н, с.Тучин, вул.Поштова, 4. Оренда – виробничі приміщення загальною площею 243,1 кв.м. (В)
3 882.31 грн
15.97 грн / м2
Приміщення
Рівненська обл., Рівненський р-н, с.Тучин, вул.Поштова, 4. Оренда – виробничі приміщення загальною площею 243,1 кв.м. (В)
Україна, Рівненська обл., Рівненський р-н, с.Тучин, вул.Поштова, 4
21.10.2025
Рівненська обл., Рівненський р-н, с. Пустомити, вул. Радянська, 41. Оренда – виробничі приміщення площею 21,80 кв.м. (В)
523.20 грн
24.00 грн / м2
Приміщення
Рівненська обл., Рівненський р-н, с. Пустомити, вул. Радянська, 41. Оренда – виробничі приміщення площею 21,80 кв.м. (В)
Україна, Рівненська обл., Рівненський р-н, с. Пустомити, вул. Радянська, 41
Рівненська обл., м. Корець, вул. Київська, 67а. Оренда – приміщення 2-го поверху
1 415.70 грн
23.40 грн / м2
Приміщення
Рівненська обл., м. Корець, вул. Київська, 67а. Оренда – приміщення 2-го поверху
Україна, Рівненська обл., м. Корець, вул. Київська, буд. 67а
Переглянуті пропозиції
Рівненьска обл., м. Радивилів, вул. О.Невського, 1. Оренда – підвального приміщення площею 165 кв.м.(В)
2 768.70 грн
16.78 грн / м2
Приміщення
Рівненьска обл., м. Радивилів, вул. О.Невського, 1. Оренда – підвального приміщення площею 165 кв.м.(В)
Україна, Рівненська обл., м. Радивилів, вул. О.Невського, 1