Вінницька обл., м. Ямпіль, вул. Свободи, 122; Оренда – приміщення 1 поверху нежитлової будівлі площею 103,4 кв.м. (В)

3 598.32 грн
34.80 грн / м2
Україна, Вінницька обл., Ямпіль, вулиця Свободи, 122
Перейти до аукціону на сайті
  • Інформація
  • Опис
  • Документи
Дата оголошення пропозиції:
09 травня 2024
Площа:
103.40 м2
Тип об’єкта:
Приміщення
Тип аукціону:
Англійський аукціон
Статус аукціону:
Аукціон не відбувся
Тип угоди:
Оренда
Розмір мінімального кроку:
100.00 ₴
Розмір гарантійного внеску:
2 158.99 ₴
Початок прийому пропозицій:
09.05.2024 11:47:38
Завершення прийому пропозицій:
10.06.2024 20:00:00
Проведення аукціону:
11.06.2024 11:10:00
Лот:
CLE001-UA-20240509-29237
№ лоту (УТК):
UTK050424_04T
Лот виставляється на торги (раз):
2
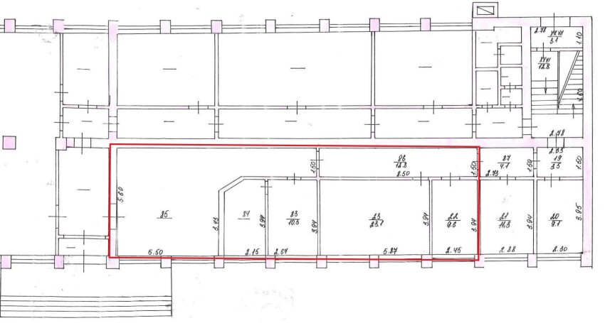
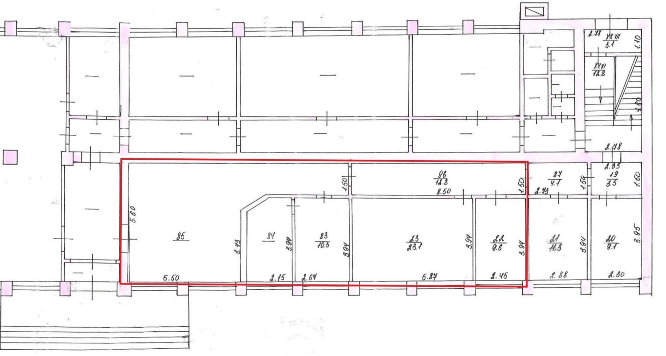
Стислий опис майна:
Пропонується до оренди приміщення 1 поверху нежитлової будівлі площею 103,4 кв.м. Будівля знаходиться в центральній частині м.Ямполя. Ідеальне місце для офісного приміщення, точки роздрібної торгівлі. Характеристики -Кількість поверхів–3; -Загальна площа будівлі–1403,10кв.м.; -Площа, що пропонується в оренду–103,4кв.м.; -Електропостачання. - Теплопостачання – відсутнє - Земельна ділянка – 0,2787 га (постійне користування)
Адреса місцезнаходження майна:
Україна, Вінницька обл., Ямпіль, вулиця Свободи, 122
Схожі пропозиції
14.06.2024
Вінницька обл., Могилів-Подільський р-н, с. Яруга, вул. Дністровська, 62;   Оренда – приміщення площею 58,0 кв.м. (В)
479.66 грн
8.27 грн / м2
Приміщення
Вінницька обл., Могилів-Подільський р-н, с. Яруга, вул. Дністровська, 62; Оренда – приміщення площею 58,0 кв.м. (В)
Україна, Вінницька обл., Яруга, вул. Дністровська, 62
17.04.2025
Вінницька обл., Тульчинський р-н, смт. Вапнярка, вул. Грушевського, 5. Оренда – приміщення 2 поверху площею 38,4 кв.м. (В)
506.88 грн
13.20 грн / м2
Приміщення
Вінницька обл., Тульчинський р-н, смт. Вапнярка, вул. Грушевського, 5. Оренда – приміщення 2 поверху площею 38,4 кв.м. (В)
Україна, Вінницька обл., Тульчинський р-н, смт. Вапнярка, вул. Грушевського, 5
Вінницька обл., м. Вінниця, вул. О. Береста, 6. Оренда – приміщення сараю площею 69,30 кв.м. (В)
2 586.97 грн
37.33 грн / м2
Приміщення
Вінницька обл., м. Вінниця, вул. О. Береста, 6. Оренда – приміщення сараю площею 69,30 кв.м. (В)
Україна, Вінницька обл., Вінниця, вул. О. Береста, 6
10.05.2023
Вінницька обл., Вінницький р-н, м. Немирів, вул. Горького, 20. Оренда – приміщення складу площею 219,7 кв. м (В)
6 283.42 грн
28.60 грн / м2
Приміщення
Вінницька обл., Вінницький р-н, м. Немирів, вул. Горького, 20. Оренда – приміщення складу площею 219,7 кв. м (В)
Україна, Вінницька обл., Немирів, пров. Горького 20
Переглянуті пропозиції
25.05.2023
Рівненська обл., м. Дубровиця, вул. Шевченка, 53. Оренда – приміщення 2-го та 3-го поверху площею 163,7 кв.м. (В)
1 715.58 грн
10.48 грн / м2
Приміщення
Рівненська обл., м. Дубровиця, вул. Шевченка, 53. Оренда – приміщення 2-го та 3-го поверху площею 163,7 кв.м. (В)
Україна, Рівненська обл., м. Дубровиця, вул. Шевченка, 53