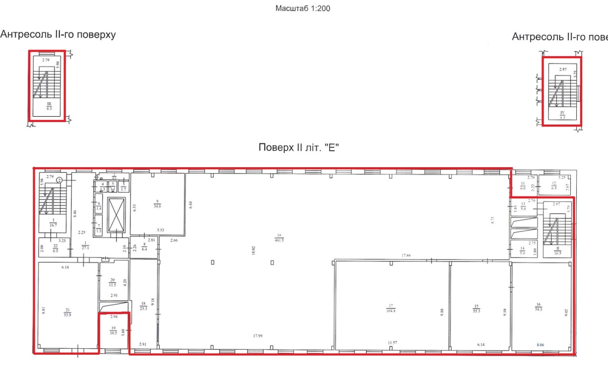
ДОВГОСТРОКОВА ОРЕНДА! м. Київ, вул. Героїв Севастополя, 39/8 літ. «Е»; Оренда – приміщення 2-го та 4-го поверхів, площею 1751,8 кв.м. (В)

239 944.05 грн
136.97 грн / м2
Україна, м.Київ, Київ, вул. Героїв Севастополя, 39/8(Е)
Перейти до аукціону на сайті
  • Інформація
  • Опис
  • Документи
Дата оголошення пропозиції:
09 травня 2024
Площа:
1751.80 м2
Тип об’єкта:
Приміщення
Тип аукціону:
Англійський аукціон
Статус аукціону:
Аукціон не відбувся
Тип угоди:
Оренда
Розмір мінімального кроку:
2 500.00 ₴
Розмір гарантійного внеску:
143 966.43 ₴
Початок прийому пропозицій:
09.05.2024 15:21:23
Завершення прийому пропозицій:
13.06.2024 20:00:00
Проведення аукціону:
14.06.2024 12:15:00
Лот:
CLE001-UA-20240509-55355
№ лоту (УТК):
UTK270522_6T
Лот виставляється на торги (раз):
10
Стислий опис майна:
Пропонується до оренди приміщення 2-го та 4-го поверху площею 1751,80 кв.м. Розташування будівлі у Солом'янському районі міста Києва, місцевості Відрадний та Новокараваєві дачі. Поруч розвинена інфраструктура, зупинки маршрутного транспорту, трамваю, магазини, кафе, аптеки, середній автомобільний і пішохідний потоки. Вхід з вулиці Героїв Севастополя та з прохідної. Доступ 24/7. Характеристики: - загальна площа будівлі – 4607,20 м²; - кількість поверхів – 4; - загальна площа земельної ділянки – 0,9713 га; - опалення – централізоване (міське); - сан. вузол, каналізація, водопостачання – присутне;
Адреса місцезнаходження майна:
Україна, м.Київ, Київ, вул. Героїв Севастополя, 39/8(Е)
Схожі пропозиції
14.06.2024
м. Київ, вул. Будівельників, 8-Б;   Оренда – приміщення підвалу, площею 452,6 кв.м. (В)
42 300.00 грн
93.46 грн / м2
Приміщення
м. Київ, вул. Будівельників, 8-Б; Оренда – приміщення підвалу, площею 452,6 кв.м. (В)
Україна, м.Київ, Київ, вулиця Будівельників, 8-Б
ДОВГОСТРОКОВА ОРЕНДА! м. Київ, вул. Ісаакяна, 3. Оренда – Приміщення 3-го поверху площею 501,50 кв.м. (В)
132 922.58 грн
265.05 грн / м2
Приміщення
ДОВГОСТРОКОВА ОРЕНДА! м. Київ, вул. Ісаакяна, 3. Оренда – Приміщення 3-го поверху площею 501,50 кв.м. (В)
Україна, м.Київ, Київ, вул. Ісаакяна, 3
30.12.2022
м. Київ, пр-т. Оболонський, 32-Б. Оренда – приміщення 4-го поверху, площею 715,6 м2 (В)
87 796.96 грн
122.69 грн / м2
Приміщення
м. Київ, пр-т. Оболонський, 32-Б. Оренда – приміщення 4-го поверху, площею 715,6 м2 (В)
Україна, м.Київ, м. Київ, пр-т. Оболонський, 32-Б
Переглянуті пропозиції
м. Харків, вул. Амосова, 13В. Оренда – приміщення 4-го поверху, площею 134,4 кв.м. (П)
5 322.24 грн
39.60 грн / м2
Приміщення
м. Харків, вул. Амосова, 13В. Оренда – приміщення 4-го поверху, площею 134,4 кв.м. (П)
Україна, Харківська обл., Харків, вул. Амосова, 13В