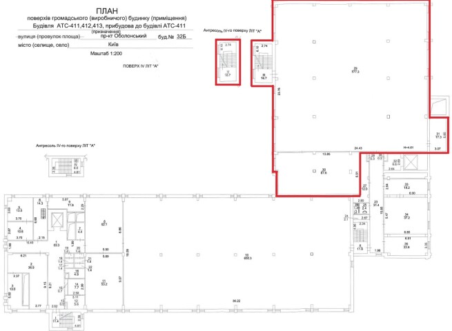
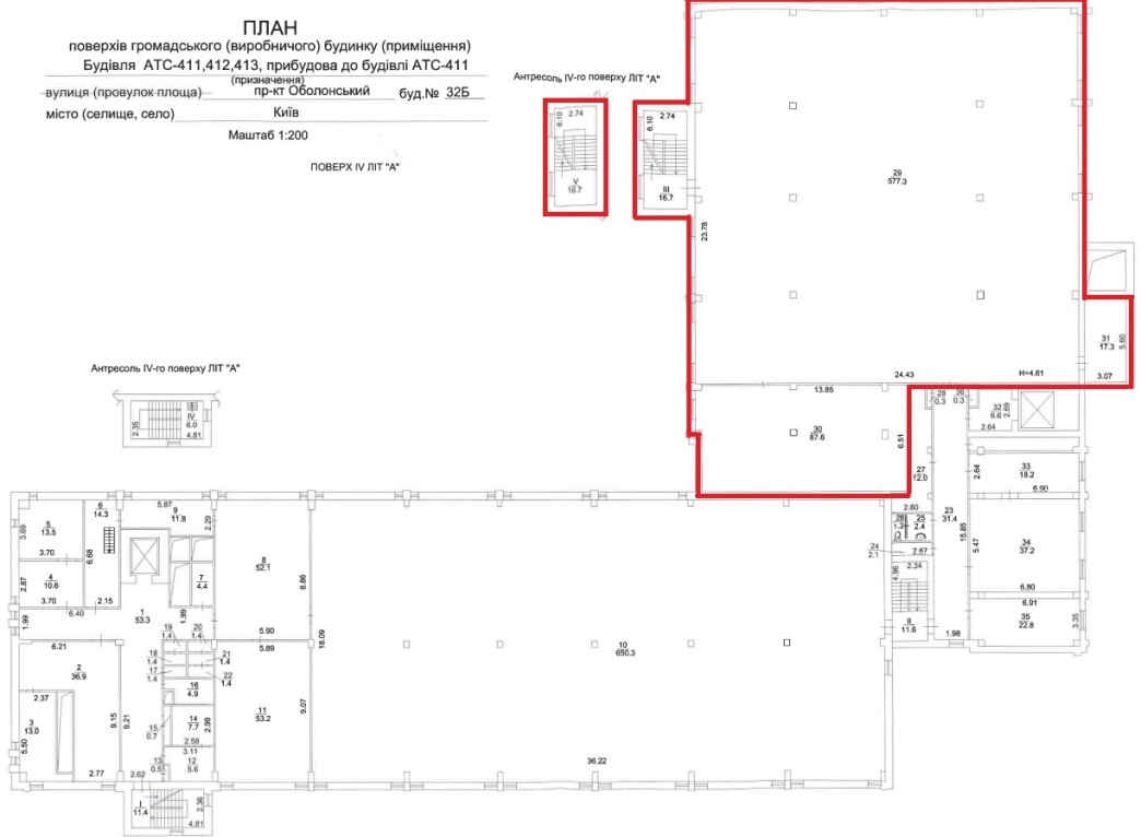
м. Київ, пр-т. Оболонський, 32-Б. Оренда – приміщення 4-го поверху, площею 715,6 м2 (В)

87 796.96 грн
122.69 грн / м2
Україна, м.Київ, м. Київ, пр-т. Оболонський, 32-Б
Перейти до аукціону на сайті
  • Інформація
  • Опис
  • Документи
Дата оголошення пропозиції:
30 листопада 2022
Площа:
715.60 м2
Тип об’єкта:
Приміщення
Тип аукціону:
Англійський аукціон
Статус аукціону:
Аукціон не відбувся
Тип угоди:
Оренда
Розмір мінімального кроку:
900.00 ₴
Розмір гарантійного внеску:
52 678.18 ₴
Початок прийому пропозицій:
30.11.2022 08:40:50
Завершення прийому пропозицій:
29.12.2022 20:00:00
Проведення аукціону:
30.12.2022 12:20:00
Лот:
CLE001-UA-20221130-38492
№ лоту (УТК):
UTK150722_02T
Лот виставляється на торги (раз):
5
Стислий опис майна:
Пропонуються до оренди приміщення 4-го поверху, площею 715,6 м2 Будівля знаходиться в Оболонському районі міста Києва, житловий масив Оболонь, розвинена інфраструктура, високі автомобільний та пішохідний потоки, в 5 хв. від ст. м. Героїв Дніпра та Мінська (синя гілка), Торгівельно-розважальні центри. Характеристики: • загальна площа будівлі – 9462,6 м2 • кількість поверхів – 4; • опалення централізоване (міське); • земельна ділянка – 0,6695 га; • водопостачання, каналізація, сан. вузол – присутнє.
Адреса місцезнаходження майна:
Україна, м.Київ, м. Київ, пр-т. Оболонський, 32-Б
Схожі пропозиції
01.12.2022
Довгострокова оренда. м. Київ, вул. Горького (Антоновича), 40. Оренда – приміщення 1-го поверху, площею 538,5 кв. м. (В)
10.12.2024
ДОВГОСТРОКОВА ОРЕНДА!  м. Київ, вул. Будівельників, 8-Б;  Оренда – приміщення підвалу площею – 493,70 кв.м (В)
56 064.57 грн
113.56 грн / м2
Приміщення
ДОВГОСТРОКОВА ОРЕНДА! м. Київ, вул. Будівельників, 8-Б; Оренда – приміщення підвалу площею – 493,70 кв.м (В)
Україна, м.Київ, Київ, вулиця Будівельників, 8-Б
08.05.2024
м. Київ, вул. Архітектора Вербицького, 3;   Оренда – приміщення 1-го та 3-го поверху площею 263,7 кв.м. (В)
25 251.91 грн
95.76 грн / м2
Приміщення
м. Київ, вул. Архітектора Вербицького, 3; Оренда – приміщення 1-го та 3-го поверху площею 263,7 кв.м. (В)
Україна, м.Київ, Київ, вул. Архітектора Вербицького, 3
24.01.2025
ДОВГОСТРОКОВА ОРЕНДА!  м. Київ, пр-т Оболонський, 32-Б ;  Оренда – приміщення 4-го поверху, площею 772,40 м2 (В)
149 179.01 грн
193.14 грн / м2
Приміщення
ДОВГОСТРОКОВА ОРЕНДА! м. Київ, пр-т Оболонський, 32-Б ; Оренда – приміщення 4-го поверху, площею 772,40 м2 (В)
Україна, м.Київ, Київ, Оболонський проспект, 32-Б